51 Dusenbury Drive, Odessa, Ontario K0H 2H0

Listed for:
$649,900
2 beds
2 baths
Listed 27 days ago
House for rent: 51 Dusenbury Drive, Odessa, Ontario K0H 2H0

View all 4 photos

About

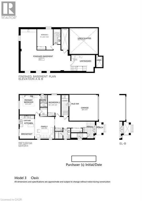
*HOME TO BE BUILT*. CUSTOMIZE your Oasis model in the NEW Golden Haven Community. This exceptionally designed almost 1400 sq ft. 2-bedroom, 2-bath home combines modern style and functionality. The AMAZING open concept floor plan has been perfectly laid out for entertaining or family nights at home. The Liv Rm is a great size for family games or movie nights with family. Plan your dream kitchen with plenty of room for cooking, entertaining and homework for larger dinners there is also a dining space. The master retreat is a perfect space to unwind with walk-in closet to stay organized and a modern ensuite for your convenience. This floor also offers an additional bedroom, 4 pce main bath and a convenience of main flr laundry/mud room. Looking for a home that is practical for everyday but also with some pizzaz this is the ONE for YOU!!!! BONUS: INCENTIVE PACKAGE with $35,000 in FREE upgrades, including a side entrance to the basement making it ideal for an in-law suite or rental potential, granite kitchen countertops, paved driveway, and sodding, along with a voucher for five appliances. But that is is not all buyers receive an EXTRA $5,000 Builder Upgrade Studio credit to PERSONALIZE your home from your neighbours. Have older kids at home, in-laws moving in or need to supplement the mortgage there is an OPTION of a finished basement. ALL THIS and LOCATION LOCATION LOCATION, conveniently located near schools, parks, and Kingston and Highway 401 just minutes away. The Floor plan is for reference only ANY model can be built on this lot. So make Golden Haven YOUR community TODAY!!! (id:27476)

Property Highlights

MLS® Number
40799204
Type
Single Family
Ownership Type
Freehold
Land Size
under 1/2 acre
Parking Space Total
4

Building

Building Type
House
Storeys
1.00
Square Footage
1367 sqft
Bathrooms Total
2
Bedrooms Above Ground
2
Bedrooms Total
2
Amenities
Golf Nearby, Park, Place of Worship, Schools
Exterior Finish
Other, Stone
Fireplace Present
No
Basement Type
Full (Unfinished)
Basement Features
Building Heating Type
Forced air
Heating Fuel
Natural gas
Building Cooling Type
Central air conditioning

Utilities

Water
Municipal water
Utility Sewer
Municipal sewage system

Room Layout

Laundry room
Main level
Measurements not available
4pc Bathroom
Main level
Measurements not available
Full bathroom
Main level
Measurements not available
Bedroom
Main level
8'10'' x 14'8''
Primary Bedroom
Main level
13'9'' x 15'8''
Kitchen
Main level
12'7'' x 16'7''
Dining room
Main level
12'8'' x 10'0''
Living room
Main level
13'7'' x 15'3''

Location

Learn more about this property
Listing provided by:
RE/MAX Escarpment Realty Inc.
MLS® number:
40799204
Agent:
Mary Hamilton
*Indicates required field
Name is required
Email is required
Please enter a valid phone number (e.g., 416-111-1111).