35 Hunter Road, Orangeville, Ontario L9W 5C6

Listed for:
$849,000
4 beds
4 baths
Listed 41 days ago
House for rent: 35 Hunter Road, Orangeville, Ontario L9W 5C6

View all 28 photos

About

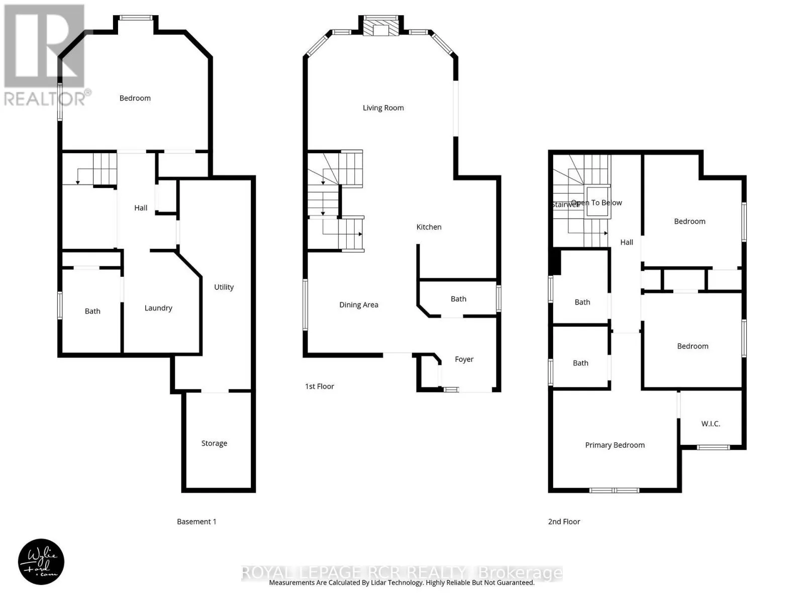
Cross Streets: Fendley/Hunter. ** Directions: Bypass/Montgomery/Fendley/Hunter. Welcome to this beautifully updated home in Orangeville's popular Sherwood Trails neighbourhood - a wonderful place for families to grow and make lasting memories. The open-concept main floor is filled with natural light and anchored by a stunning two-storey great room with a cozy gas fireplace, creating the perfect gathering space for everyday living and special occasions .A spacious formal dining room is ideal for family dinners and celebrations, while the efficient kitchen with newer stainless steel appliances keeps everything within easy reach. From the great room, step out to the covered back porch overlooking a private backyard that backs onto parkland-an ideal spot for kids to play, summer barbecues, or quiet evenings outdoors with no rear neighbours. Upstairs, the primary suite offers parents a peaceful retreat with vaulted ceilings, a 3-piece ensuite, and a large walk-in closet with a window. Two additional bedrooms are generously sized, each with double closets, making them perfect for children, guests, or a home office. The finished lower level adds valuable extra living space with a large fourth bedroom that could also be used as a family room, playroom, or teen retreat. A beautifully finished laundry room makes day-to-day chores easy, and the convenient 3-piece bathroom is ideal for busy households. Located close to parks, trails, schools, and all of Orangeville's amenities, this is a home designed with family life in mind. Appliances 2023-24, Furnace/AC 2023, Upper flooring 2024, Roof 2017, Exterior painting 2022 (id:27476)

Property Highlights

MLS® Number
W12675502
Type
Single Family
Community Name
Orangeville
Ownership Type
Freehold
Land Size
39.4 x 119.1 FT
Parking Space Total
3

Building

Building Type
House
Storeys
2.00
Square Footage
1100 - 1500 sqft
Bathrooms Total
4
Bedrooms Above Ground
3
Bedrooms Total
4
Amenities
Fireplace(s)
Exterior Finish
Brick, Vinyl siding
Fireplace Present
Yes
Basement Type
N/A (Finished)
Basement Features
Building Heating Type
Forced air
Heating Fuel
Natural gas
Building Cooling Type
Central air conditioning

Utilities

Water
Municipal water
Utility Sewer
Sanitary sewer

Room Layout

Family room
Lower level
4 m x 4 m
Laundry room
Lower level
3 m x 3 m
Great room
Main level
4.8 m x 4.65 m
Dining room
Main level
3.5 m x 3.5 m
Kitchen
Main level
4.75 m x 3.15 m
Primary Bedroom
Upper Level
4 m x 3.15 m
Bedroom 2
Upper Level
3.5 m x 3.2 m
Bedroom 3
Upper Level
3.15 m x 3 m

Location

Learn more about this property
Listing provided by:
ROYAL LEPAGE RCR REALTY
MLS® number:
W12675502
Agent:
Debbie Van Wyck
*Indicates required field
Name is required
Email is required
Please enter a valid phone number (e.g., 416-111-1111).

Community Spotlight: Homes For sale in Your Neighborhood