174 West Street S, Orillia, Ontario L3V 6L4

Listed for:
$9,450,000
0 beds
0 baths
Listed 34 days ago
174 West Street S, Orillia, Ontario L3V 6L4

View all 39 photos

Learn more about this property
Listing provided by:
Maven Commercial Real Estate Brokerage
MLS® number:
40615257
Agent:
Stephanie Maye
*Indicates required field
Name is required
Email is required
Please enter a valid phone number (e.g., 416-111-1111).

About

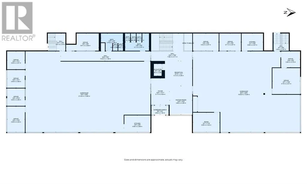
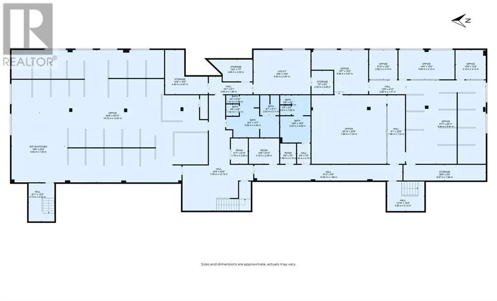
Hwy 400 N, ON 11N, exit ON 12S, Left on West St S Prime Office Building Investment in Orillia Distinguished by its superior maintenance, strategic location, and strong investment potential, the building's strengths are: PEAK MAINTENANCE: Benefit from a property that's in excellent condition, with all capital improvements completed and up-to-date, ensuring a hassle-free investment. SOLID RETURNS: With 100% Occupancy, enjoy a 7.6% cap rate offering immediate cash flow. IDEAL LOCATION: Positioned directly across from the Orillia Recreation Centre and near amenities, this building is one of Orillia's most desirable office locations. GROWTH POTENTIAL: Located in an intensification node, anticipate capital appreciation with the city's forthcoming gentrification. Abutting 19.69 acre land also available as portfolio sale, along with another 23,477sf Orillia office building. (id:27476)

Property Highlights

MLS® Number
40615257
Type
Office
Ownership Type
Freehold
Land Size
2.77 ac|2 - 4.99 acres
Parking Space Total
160

Building

Storeys
3.00
Square Footage
49322 sqft
Amenities
Public Transit
Exterior Finish
Brick Veneer
Fireplace Present
No
Basement Type
Full
Basement Features
Building Heating Type
Heating Fuel
Building Cooling Type

Utilities

Water
Municipal water
Utility Sewer
Municipal sewage system

Location