100 Colborne Street W Unit# 300, Orillia, Ontario L3V 2Y9

Listed for:
$16
0 beds
0 baths
Listed 31 days ago
100 Colborne Street W Unit# 300, Orillia, Ontario L3V 2Y9

View all 21 photos

Learn more about this property
Listing provided by:
Maven Commercial Real Estate Brokerage
MLS® number:
40689201
Agent:
Stephanie Maye
*Indicates required field
Name is required
Email is required
Please enter a valid phone number (e.g., 416-111-1111).

About

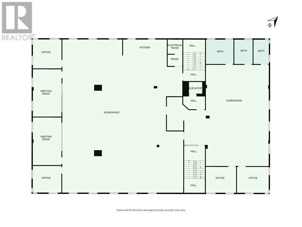
Highway 11 to Mississaga St W exit. Mississaga St W to Dunlop St, right on Dunlop St, subject property will be on the left side 6,834SF of office space near the hospital - fully furnished and ready for you to plug and go, eliminating down time for your operations. This unit features a large cubicle office layout with 52 cubicles, 4 private offices, 2 conference rooms, a kitchenette, 3 washrooms (including fully accessible washrooms meeting today's standards), a hydraulic elevator and secure key fob access. 76 parking spots on site (2.8 spots per 1,000 SF). The space comes fully furnished, ready for you to plug and go, eliminating down time during the move. A strategic opportunity combining location, functionality, and security to meet the high standards of professionals. Landlord willing to demise the space into 2 units of appx 4805sf and 2029sf. Additional 604sf unit also available on 4th floor. (id:27476)

Property Highlights

MLS® Number
40689201
Type
Office
Ownership Type
Freehold
Land Size
0.734 ac|1/2 - 1.99 acres

Building

Storeys
4.00
Square Footage
6834 sqft
Amenities
Hospital
Fireplace Present
No
Basement Type
Full
Basement Features
Building Heating Type
Heating Fuel
Building Cooling Type

Utilities

Water
Municipal water
Utility Sewer
Municipal sewage system

Location