26 Nelle Carter Court, Orillia, Ontario L3V 7S3

Listed for:
$17
0 beds
0 baths
Listed 34 days ago
26 Nelle Carter Court, Orillia, Ontario L3V 7S3

View all 14 photos

Learn more about this property
Listing provided by:
Ed Lowe Limited Brokerage
MLS® number:
40754352
Agent:
Phone:
*Indicates required field
Name is required
Email is required
Please enter a valid phone number (e.g., 416-111-1111).

About

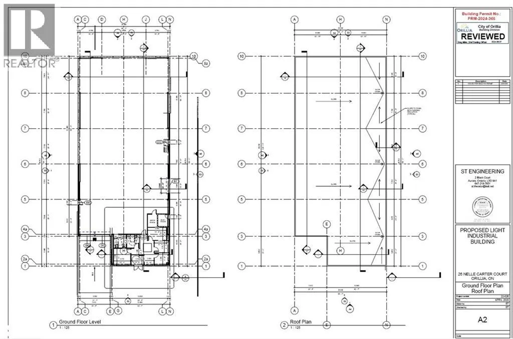
Hwy 11 exit Old Barrie Rd to University Ave to Nelle Carter Crt Brand new 9263 sf industrial building in new industrial subdivision in south Orillia. 2 dock level doors 10' x 10' powered and 1 drive-in door at side of building. Clear Height 27' 1 to 28' 1 to underside of joist. No a/c in office. Ideal for any manufacturing, or warehouse use. Easy access from Hwy 11 at Hwy 12. Off University Road and Old Barrie Road. Close to Laurentian university, West Orillia Sports Complex, Costco, restaurants and shopping. (id:27476)

Property Highlights

MLS® Number
40754352
Type
Industrial
Ownership Type
Freehold
Land Size
1/2 - 1.99 acres

Building

Storeys
1.00
Square Footage
9263 sqft
Amenities
Schools
Fireplace Present
No
Basement Type
None
Basement Features
Building Heating Type
Heating Fuel
Building Cooling Type

Utilities

Water
Municipal water
Utility Sewer
Municipal sewage system

Location