339 Gill Street, Orillia, Ontario L3V 4K3

Listed for:
$699,990
0 beds
0 baths
Listed 168 days ago
339 Gill Street, Orillia, Ontario L3V 4K3

View all 4 photos

Learn more about this property
Listing provided by:
RE/MAX EXPERTS
MLS® number:
S12307020
Agent:
Matthew Ablakan
*Indicates required field
Name is required
Email is required
Please enter a valid phone number (e.g., 416-111-1111).

About

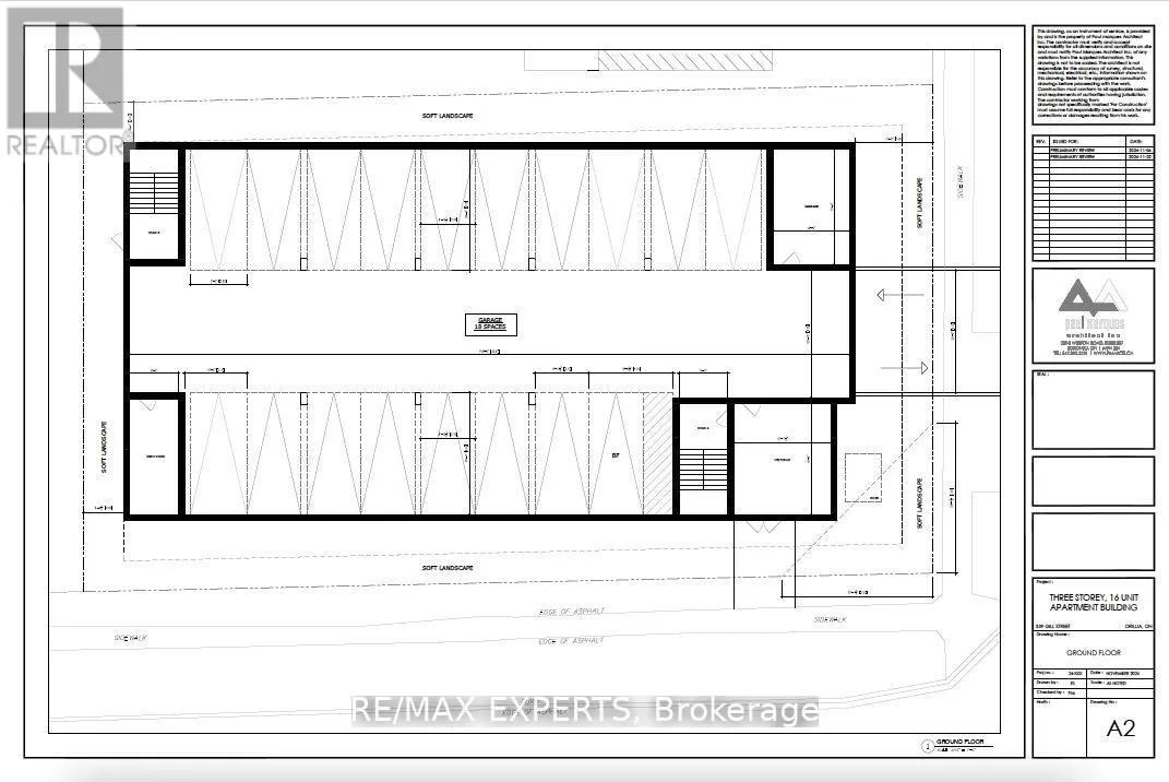
James Street & Gill Street Welcome To 339 Gill Street! This Corner Property Is One Of A Kind! Suitable For Many Uses Including A 12 - 15 Unit Apartment Building (See Attachments For Concept Plan). Water & Sewer Services At Lot Line. Conveniently Located In A Mature, Residential Neighborhood With Three-story Apartment Buildings That Are Fully Tenanted. Starbucks Is Right Around The Comer. Bus Line Right In Front Of The Property. Just Minutes Away From Downtown Orillia, Orillia's Waterfront, Plazas, Shops, Restaurants And Municipal Services! (id:27476)

Property Highlights

MLS® Number
S12307020
Type
Vacant Land
Community Name
Orillia
Land Size
80.01 x 139.27 FT
Parking Space Total
3

Building

Square Footage
11143 sqft
Amenities
Public Transit
Fireplace Present
No
Basement Type
Basement Features
Building Heating Type
Heating Fuel
Building Cooling Type
None

Utilities

Water
Municipal water

Location