3139 Orion Boulevard, Orillia, Ontario

Listed for:
$759,900
3 beds
3 baths
Listed 14 days ago
House for rent: 3139 Orion Boulevard, Orillia, Ontario

View all 2 photos

About

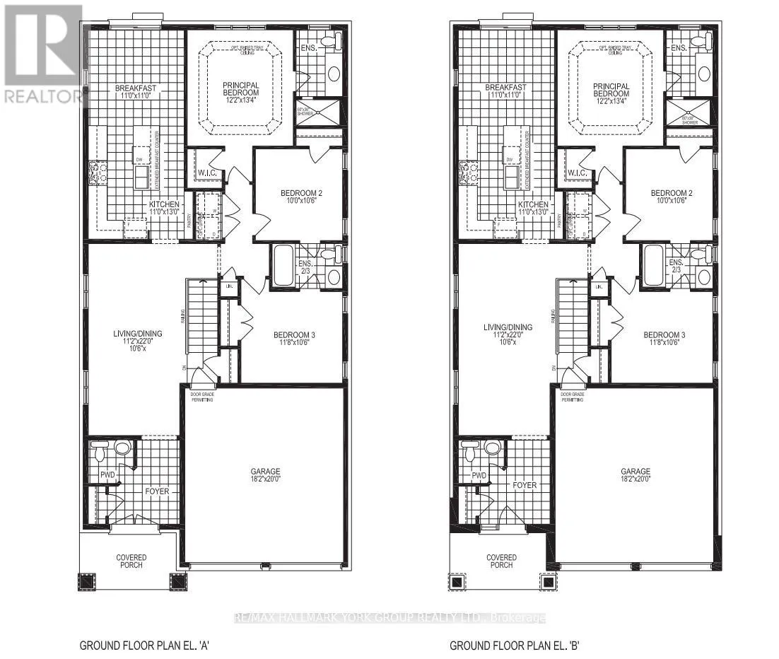
Cross Streets: Atlantis Dr & Orion Blvd. ** Directions: -. Take advantage of new rebates with revised pricing! The appeal of Orillia living truly comes to life in communities like Westridge Trailside. Set on a premium 40 ft x 131 ft lot, 3139 Orion Blvd presents the future Berkley model by respected local builder Dreamland Homes, an opportunity to own brand-new construction in one of the city's fastest growing neighbourhoods. Thoughtfully designed with both style and function in mind, this home offers over $20,000 in carefully selected upgrades, including 5" wide hardwood flooring throughout the main level, quartz kitchen countertops with a stainless steel undermount sink, a stained oak staircase, and smooth ceilings throughout. Central air conditioning and garage door openers add everyday comfort and convenience, creating a space that is truly move-in ready from day one. Perfectly positioned for both lifestyle and accessibility, you're just minutes from Costco, Lakehead University, Walter Henry Park, and a wide range of shopping and dining options. With quick connections to Highways 11 and 12, commuting to Toronto or escaping north to Muskoka is effortless, while Orillia itself continues to grow as a vibrant, well-connected city that still holds onto its small-town charm. Whether you're looking to settle into a modern, family-friendly community or invest in a growing area, this is a home that offers both immediate comfort and long-term value. With additional models and lots available, there's also the flexibility to build a home that truly fits your vision. (id:27476)

Property Highlights

MLS® Number
S12953246
Type
Single Family
Community Name
Orillia
Ownership Type
Freehold
Land Size
40 x 122 FT
Parking Space Total
4

Building

Building Type
House
Storeys
1.00
Square Footage
1500 - 2000 sqft
Bathrooms Total
3
Bedrooms Above Ground
3
Bedrooms Total
3
Amenities
Fireplace(s)
Exterior Finish
Brick
Fireplace Present
Yes
Basement Type
N/A (Unfinished)
Basement Features
Building Heating Type
Forced air
Heating Fuel
Natural gas
Building Cooling Type
Central air conditioning

Utilities

Water
Municipal water
Utility Sewer
Sanitary sewer

Room Layout

Living room
Main level
2210.6 m x 11.2 m
Kitchen
Main level
13 m x 11 m
Eating area
Main level
11 m x 11 m
Bedroom
Main level
12.2 m x 13.4 m
Bedroom 2
Main level
10 m x 10.6 m
Bedroom 3
Main level
10.6 m x 11.8 m

Location

Learn more about this property
Listing provided by:
RE/MAX HALLMARK YORK GROUP REALTY LTD.
MLS® number:
S12953246
Agent:
Mike Russo
*Indicates required field
Name is required
Email is required
Please enter a valid phone number (e.g., 416-111-1111).