Lt 225 Friesian Court, Oro-Medonte, Ontario L0K 1E0

Listed for:
$1,708,900
4 beds
4 baths
Listed 156 days ago
House for rent: Lt 225 Friesian Court, Oro-Medonte, Ontario L0K 1E0

View all 21 photos

Learn more about this property
Listing provided by:
RE/MAX HALLMARK CHAY REALTY
MLS® number:
S9077013
Agent:
Nigel Davies
*Indicates required field
Name is required
Email is required
Please enter a valid phone number (e.g., 416-111-1111).

About

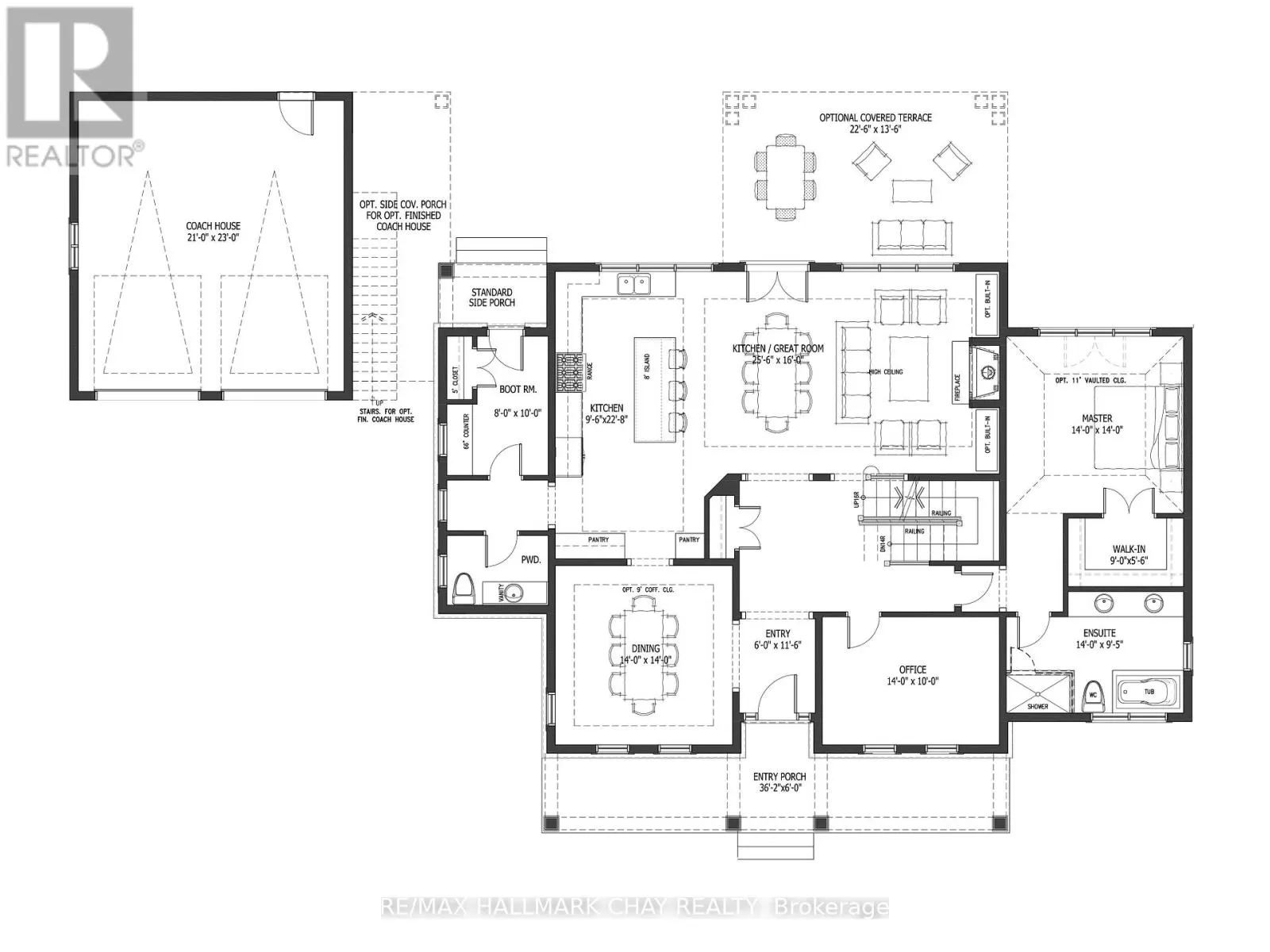
Horseshoe Valley Rd & Line #9 North LAST FEW LOTS AVAILABLE IN FINAL PHASE OF BRAESTONE ESTATES IN ORO-MEDONTE. Visit us today! This home can be built and ready for possession Summer 2025. Multiple Award Winning Builder, Georgian Communities, has just 10 lots remaining in this unique and beautiful community. Enjoy 566 stunning acres with 275-acre nature preserve and kms of trails meandering through. Minimum 1/2 acre country estate lots. List price reflects standard finishes and lot premium ($70,000). Featured here is the Oldenburg B 4 bedroom model, 3,263 sq ft 2 storey with 2 car garage. A sampling of Standard Finishes includes: Gas-burning copper coach lanterns, James Hardie Siding, Fiberglass shingles, Stone accent (model specific), Front porch w/composite decking, Dramatic open concept floorplans, 9' smooth ceilings on main, 35" Napoleon Gas fireplace in great room, 5" Engineered wood plank flooring in main hall/great room/dining room/office and kitchen, Stone countertops in kitchen, Tile enclosed showers with frameless glass, H/E gas furnace/HRV/Humidifier. Full list of Standards available. Many optional items available, example: 3rd Garage Bay, Finished basement, Coach house, Covered rear porch/decks, etc. Builder will allow floorplan modifications. Residents enjoy kms of walking trails and access to amenities on the Braestone Farm including, Pond Skating, Baseball, Seasonal fruits and vegetables, Maple sugar tapping, Small farm animals and many Community & Farm organized events. Located between Barrie and Orillia and approx. one hour from Toronto. Oro-Medonte is an outdoor enthusiast's playground. Skiing, Hiking, Biking, Golf & Dining at the Braestone Club, Horseshoe Resort and the new Vetta Spa are minutes away. (id:27476)

Property Highlights

MLS® Number
S9077013
Type
Single Family
Community Name
Rural Oro-Medonte
Ownership Type
Freehold
Land Size
98.5 x 234.5 FT|1/2 - 1.99 acres
Parking Space Total
6

Building

Building Type
House
Storeys
2.00
Square Footage
3000 - 3500 sqft
Bathrooms Total
4
Bedrooms Above Ground
4
Bedrooms Total
4
Amenities
Fireplace(s) Ski area, Golf Nearby
Exterior Finish
Stone
Fireplace Present
Yes
Basement Type
Full (Unfinished)
Basement Features
Building Heating Type
Forced air
Heating Fuel
Natural gas
Building Cooling Type
None

Utilities

Water
Municipal water
Utility Sewer
Septic System

Room Layout

Laundry room
Second level
4.52 m x 2.31 m
Bedroom 2
Second level
4.57 m x 3.96 m
Bedroom 3
Second level
4.57 m x 3.66 m
Bedroom 4
Second level
4.27 m x 3.81 m
Foyer
Main level
3.51 m x 1.83 m
Kitchen
Main level
6.91 m x 2.9 m
Great room
Main level
7.77 m x 4.88 m
Dining room
Main level
4.27 m x 4.27 m
Office
Main level
4.27 m x 3.05 m
Primary Bedroom
Main level
4.27 m x 4.27 m
Mud room
Main level
3.05 m x 2.44 m

Location

Street Spotlight - For sale