2344 11 Highway S, Oro-Medonte, Ontario L0L 2L0

Listed for:
$485,000
2 beds
1 baths
Listed 4 days ago
House for rent: 2344 11 Highway S, Oro-Medonte, Ontario L0L 2L0

View all 41 photos

Learn more about this property
Listing provided by:
RE/MAX HALLMARK CHAY REALTY
MLS® number:
S12553034
Agent:
Scott Woolsey
*Indicates required field
Name is required
Email is required
Please enter a valid phone number (e.g., 416-111-1111).

About

Cross Streets: Hwy 11 / Line 5. ** Directions: HWY 11 S of LINE 5 / USE LINE 5 TURN AROUND IF GOING NB. Incredible Opportunity! Detached home (2 bedroom, 1 bath - with potential for 3rd bedroom in lower level) on an oversized 75' x 200' lot with room to add your own garage, shop, etc. Home-based business? This property offers plenty of parking on the newly paved asphalt driveway (2024) - guests, visitors - cars, vehicles, work trucks, RVs, etc. Newer 9' x 12' Duratemp Garden Gable shed (2021) for your outdoor tools and accessories. Front steps (2024), side steps and walk way (2023). Situated in Oro-Medonte - conveniently located between Barrie and Orillia on Hwy 11 - providing easy access to schools, shops, services, fine and casual dining, entertainment, and the four season recreation Simcoe County is known for such as parks, trails, golf, skiing, lake fun, and more! Just a short 10 mins drive to RVH, Georgian College, as well as a local airport located at Line 7. This detached bungalow offers ~1,600 sq.ft. of living space on the main and lower levels with a large living room on the main level and also a large rec room in the lower level. Side entrance to lower level for easy conversion to a separate suite for multi-generational living, home office or self-contained secondary suite. Large ticket items have been addressed for you - newer furnace (2017), newer windows, Generac generator (2021). 44' drilled well (1990) 2025 inspection passed. Septic design is concrete and can be provided (3600L tank inspected June 18, 2025 as per Oro-Medonte Twp / passed). Please note that this property is being sold "as is" with no warranties or representations. (id:27476)

Property Highlights

MLS® Number
S12553034
Type
Single Family
Community Name
Guthrie
Ownership Type
Freehold
Land Size
75 x 200 FT|under 1/2 acre
Parking Space Total
8

Building

Building Type
House
Storeys
1.00
Square Footage
700 - 1100 sqft
Bathrooms Total
1
Bedrooms Above Ground
2
Bedrooms Total
2
Amenities
Schools
Fireplace Present
No
Basement Type
Full (Finished)
Basement Features
Building Heating Type
Forced air
Heating Fuel
Natural gas
Building Cooling Type
None

Utilities

Water
Drilled Well
Utility Sewer
Septic System

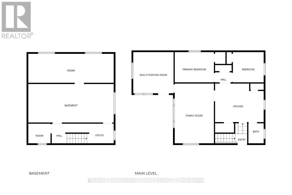
Room Layout

Utility room
Lower level
2.1 m x 1.7 m
Recreational, Games room
Lower level
7.9 m x 2.7 m
Recreational, Games room
Lower level
7.8 m x 3.2 m
Laundry room
Lower level
2.6 m x 1.7 m
Foyer
Main level
4 m x 3.6 m
Kitchen
Main level
4.4 m x 3.5 m
Living room
Main level
5.5 m x 3.6 m
Bedroom
Main level
3.7 m x 2.8 m
Bedroom 2
Main level
2.8 m x 2.8 m
Other
Main level
1.9 m x 1.7 m
Bathroom
Main level
1.9 m x 1.5 m

Location