Lt 221 Friesian Court, Oro-Medonte, Ontario L0K 1E0

Listed for:
$1,787,900
4 beds
4 baths
Listed 2 days ago
House for rent: Lt 221 Friesian Court, Oro-Medonte, Ontario L0K 1E0

View all 21 photos

About

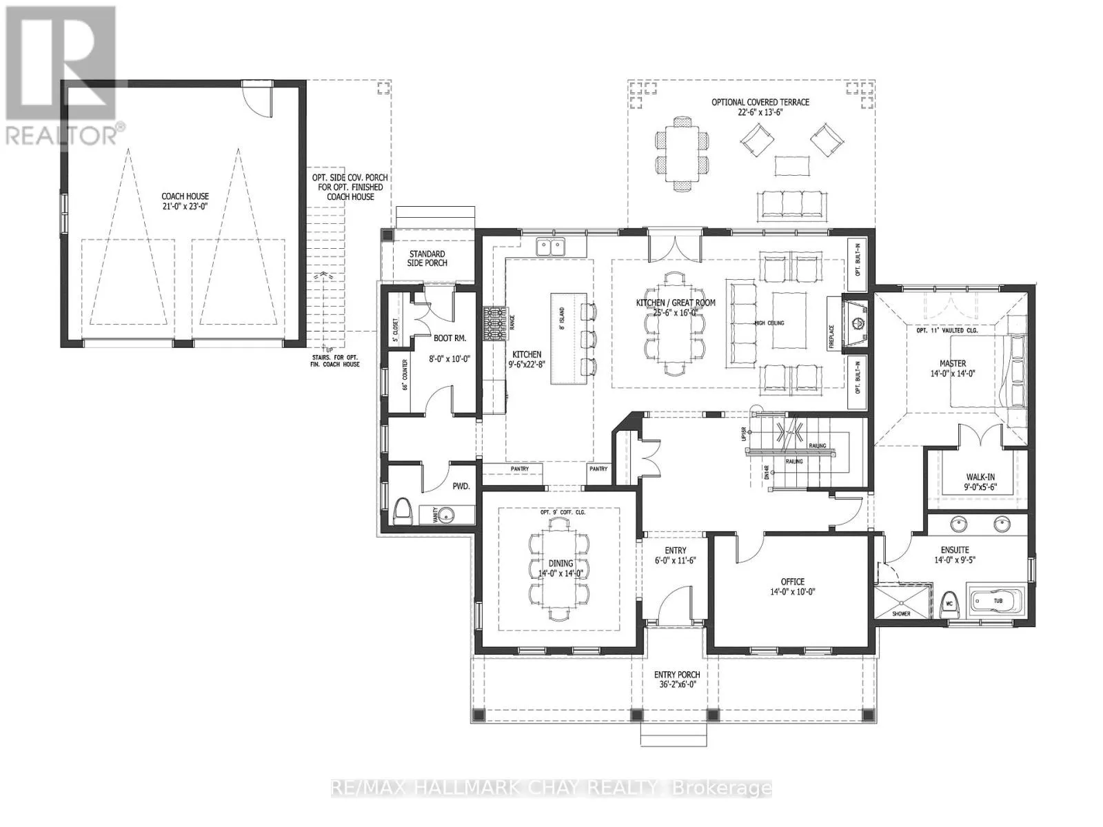
Cross Streets: Horseshoe Valley Road and Line #8. ** Directions: Between Craighurst & Orillia on Horseshoe Valley Rd, South on Line 8 North, Left on Friesian Court. No sign on property. Don't miss the opportunity to build your dream home in Oro-Medonte. Just eight premium estate lots remain in Braestone Estates, the nationally award-winning community by local builder and developer Georgian Communities. Today, nearly the entire community has been completed, with homeowners already enjoying what many call "Braestone Life." These homesites are set within a private enclave on generous estate lots of 1/2 acre or more, offering a peaceful countryside setting with nature nearby and access to the neighbouring Braestone Farm through the community trail network. Braestone is presently offering a substantial decor credit and is open to reviewing customization requests to help tailor your home to your needs. The list price reflects standard finishes and lot cost. Featured here is the Oldenburg model, a 3,235 sq. ft. 2 storey with a two-car garage. A sampling of standard finishes includes:Gas-burning copper coach lanterns, James Hardie siding, fiberglass shingles, stone accents (model specific), front porch with composite decking, dramatic open-concept floorplans, 9' smooth ceilings on the main floor, 35" Napoleon gas fireplace in the great room, 5" engineered wood plank flooring in the main hall, great room, dining room, office, and kitchen, stone countertops in the kitchen, tile-enclosed showers with frameless glass, and a high-efficiency gas furnace with HRV and humidifier. Full list of standards available. Many optional features are available, including a third garage bay, finished basement, coach house, covered rear porch or deck, and more. The builder will also consider floorplan modifications. Residents enjoy kilometres of walking trails and access to amenities at Braestone Farm, including pond skating, baseball, seasonal fruits and vegetables, maple syrup tapping, and numerous community and farm events throughout the year. Located between Barrie & Orillia, and approx 1 hr from Toronto. Skiing, hiking, biking, golf, dining, Horseshoe Resort minutes a (id:27476)

Property Highlights

MLS® Number
S12866328
Type
Single Family
Community Name
Rural Oro-Medonte
Ownership Type
Freehold
Land Size
63 x 191.9 FT ; 63ftx192ft x 226ft x 122.24ft x 198.7ft
Parking Space Total
6

Building

Building Type
House
Storeys
2.00
Square Footage
3000 - 3500 sqft
Bathrooms Total
4
Bedrooms Above Ground
4
Bedrooms Total
4
Amenities
Fireplace(s) Golf Nearby, Ski area
Exterior Finish
Stone
Fireplace Present
Yes
Basement Type
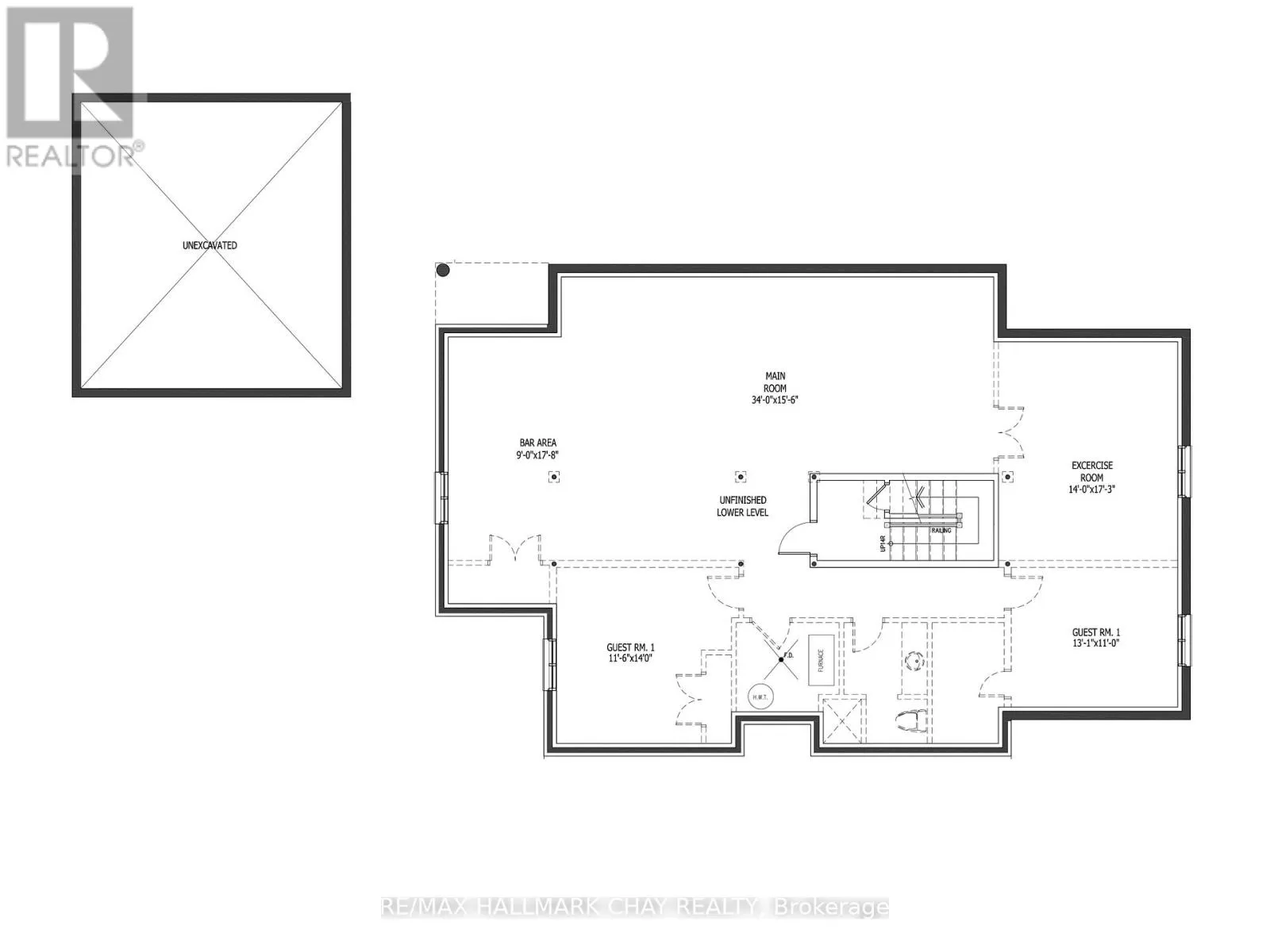
Full (Unfinished)
Basement Features
Building Heating Type
Forced air
Heating Fuel
Natural gas
Building Cooling Type
None

Utilities

Water
Municipal water
Utility Sewer
Septic System

Room Layout

Laundry room
Second level
4.52 m x 2.31 m
Bedroom 2
Second level
4.57 m x 3.96 m
Bedroom 3
Second level
4.57 m x 3.66 m
Bedroom 4
Second level
4.27 m x 3.81 m
Foyer
Main level
3.51 m x 1.83 m
Kitchen
Main level
6.91 m x 2.9 m
Great room
Main level
7.77 m x 4.88 m
Dining room
Main level
4.27 m x 4.27 m
Office
Main level
4.27 m x 3.05 m
Primary Bedroom
Main level
4.27 m x 4.27 m
Mud room
Main level
3.05 m x 2.44 m

Location

Learn more about this property
Listing provided by:
RE/MAX HALLMARK CHAY REALTY
MLS® number:
S12866328
Agent:
Nigel Davies
*Indicates required field
Name is required
Email is required
Please enter a valid phone number (e.g., 416-111-1111).