4737 12 Line N, Oro-Medonte, Ontario L0K 1E0

Listed for:
$979,000
4 beds
2 baths
Listed 2 days ago
House for rent: 4737 12 Line N, Oro-Medonte, Ontario L0K 1E0

View all 48 photos

About

Cross Streets: Mt St Louis E & Oro Line 12 N. ** Directions: Go to Mt St Louis Rd E/Oro Line 12 N. Oro-Medonte Gem/2.66 Acres (262 x 442 Ft)(about 50% Fenced)/Treed Ravine Lot/Real Natural Gas Heating/Real HIGH Speed Internet Via Bell/Drilled Well 10 GPM/All Brick Home/4 Level SS/Over 2500 Sq Ft Fin/Over $150,000 updates & upgrades since Sept 2023/Whole House Generator 22KW/New Windows/New Doors/New Garage Doors/New Shingles/Hardwood Floors/Upgraded Attic Insulation/Fencing/New Upstairs Full Bath/Kitchen Mini Island/Kitchen Quartz Counter Tops/Inside Window Shutters/Two(2) New Gas Fireplace Inserts/New Owned Gas HWH/New HRV/New Whole Home Humidifier/New Water Softener/New Driveway + House Lighting/Shed Wired to Hydro/New Appliances/All Fixtures & Chattels owned - NO Rentals./(Prior 3 Bed Up now 2)/Move-in ready/ Country Living w Upgrades Done/Just 5 Mins to Warminster & 10 Mins to Coldwater & 15-20 Mins to Orillia (id:27476)

Property Highlights

MLS® Number
S13006376
Type
Single Family
Community Name
Rural Oro-Medonte
Ownership Type
Freehold
Land Size
262.4 x 442.8 FT ; Rectangular 262 x 443 Feet|2 - 4.99 acres
Parking Space Total
12

Building

Building Type
House
Square Footage
1500 - 2000 sqft
Bathrooms Total
2
Bedrooms Above Ground
2
Bedrooms Total
4
Amenities
Fireplace(s)
Exterior Finish
Brick, Vinyl siding
Fireplace Present
Yes
Basement Type
N/A (Finished)
Basement Features
Building Heating Type
Forced air
Heating Fuel
Natural gas
Building Cooling Type
Central air conditioning

Utilities

Water
Drilled Well
Power
Generator
Utility Sewer
Septic System

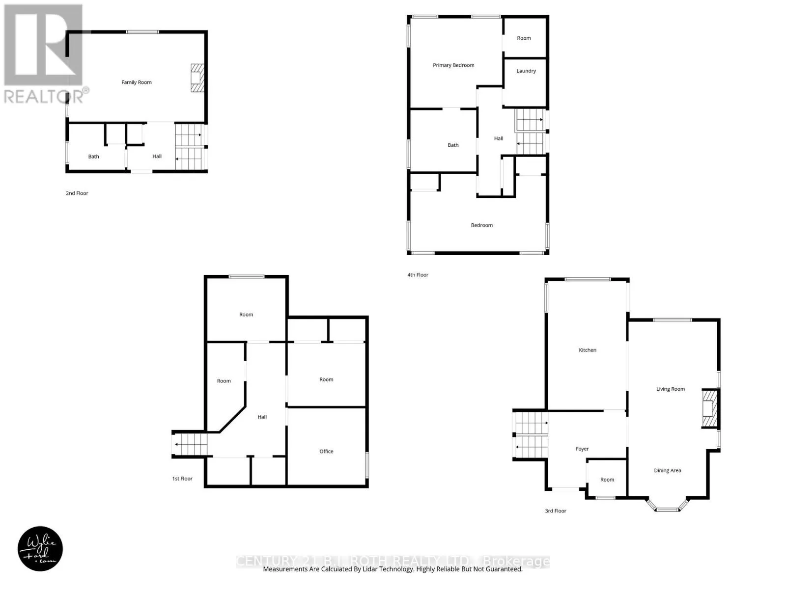
Room Layout

Bedroom 3
Basement
3.57 m x 3.52 m
Bedroom 4
Basement
3.57 m x 2.89 m
Other
Basement
3.57 m x 3.52 m
Utility room
Basement
4.04 m x 1.7 m
Foyer
Lower level
2.19 m x 2.12 m
Family room
Lower level
6.22 m x 4.05 m
Bathroom
Lower level
2.58 m x 2.11 m
Living room
Main level
5.86 m x 4.07 m
Dining room
Main level
3.57 m x 2.16 m
Kitchen
Main level
5.92 m x 3.59 m
Mud room
Main level
1.73 m x 1.66 m
Foyer
Main level
3.59 m x 3.47 m
Primary Bedroom
Upper Level
4.21 m x 4.11 m
Bathroom
Upper Level
3.03 m x 5.92 m
Bedroom 2
Upper Level
6.22 m x 3.57 m

Location

Learn more about this property
Listing provided by:
CENTURY 21 B.J. ROTH REALTY LTD.
MLS® number:
S13006376
Agent:
Ron Northmore
*Indicates required field
Name is required
Email is required
Please enter a valid phone number (e.g., 416-111-1111).