1400 Ritson Road N, Oshawa, Ontario L1G 7W4

Listed for:
$25
0 beds
0 baths
Listed 35 days ago
Offices for rent: 1400 Ritson Road N, Oshawa, Ontario L1G 7W4

View all 32 photos

Learn more about this property
Listing provided by:
RE/MAX COMMUNITY REALTY INC.
MLS® number:
E12055358
Agent:
Sri Lankeswaran
*Indicates required field
Name is required
Email is required
Please enter a valid phone number (e.g., 416-111-1111).

About

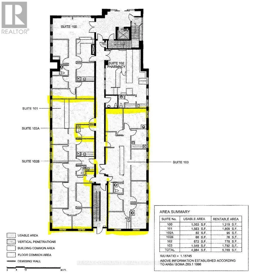
Cross Streets: Ormond Dr. ** Directions: Head North on Ritson past Taunton; 1400 Bond St W will be on your left. Calling all FAMILY MEDICINE CLINICS! $25/sq ft + HST ALL IN!! Take advantage of the prime opportunity to move into a turnkey clinic at a MASSIVE DISCOUNT! 4 separate units on First and Second floors totaling approximately 7000sq ft. Use as much space as you need - First come First serve! Suite 101 - 1,809 sq. ft. Suite 103 - 1,792 sq. ft. Suite 202 - 493 sq. ft. Suite 205 - 2,855 sq. ft. Other Medical Professionals and Retailers also welcome! TMI Includes all Utilities, all common area expenses, Janitorial, and Ground Maintenance. Take advantage of this special rate until January 2026! Other tenants in the building include Pharmacy, Physiotherapy, Dental, Orthodontics, Pediatrics and Hearing Clinic. PRIME location in North Oshawa, just around the corner from the University, College and Brand New Sub Divisions. Steps to Taunton and Public Transit. Huge Patient Population. (id:27476)

Property Highlights

MLS® Number
E12055358
Type
Office
Community Name
Samac
Land Size
1.13 ac
Parking Space Total
54

Building

Building Type
Offices
Square Footage
1 ac
Fireplace Present
No
Basement Type
Basement Features
Building Heating Type
Forced air
Heating Fuel
Natural gas
Building Cooling Type
Fully air conditioned

Utilities

Water
Municipal water

Location