Basement - 640 King Street E, Oshawa, Ontario L1H 1G5

Listed for:
$5
0 beds
0 baths
Listed 149 days ago
Basement - 640 King Street E, Oshawa, Ontario L1H 1G5

View all 2 photos

Learn more about this property
Listing provided by:
CPPI REALTY INC.
MLS® number:
E12240784
Agent:
Michael K. Poon
*Indicates required field
Name is required
Email is required
Please enter a valid phone number (e.g., 416-111-1111).

About

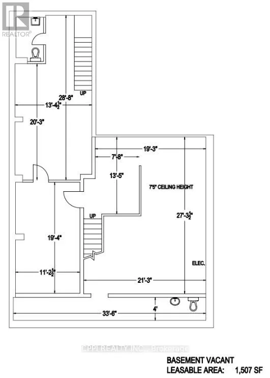
Cross Streets: King St E & Bond St E. ** Directions: 0. Presenting a prestigious leasing opportunity in the heart of Downtown Oshawa. This 1,507 sq. ft. retail space has its own front entrance. It is on high-traffic King Street East and is ideally suited for various retail purposes. Surrounded by prominent landmarks including the Durham Courthouse, YMCA, Holiday Inn, and the Tribute Communities Centre, and with ample street parking on two sides In this plaza. Estimated TMI @ $8 per sq. ft. (id:27476)

Property Highlights

MLS® Number
E12240784
Type
Retail
Community Name
Eastdale

Building

Square Footage
1507 sqft
Fireplace Present
No
Basement Type
Basement Features
Building Heating Type
Forced air
Heating Fuel
Natural gas
Building Cooling Type
None

Utilities

Water
Municipal water

Location