110 - 454 Centre Street S, Oshawa, Ontario L1H 4C2

Listed for:
$368,800
4 beds
2 baths
Listed 46 days ago
Apartment for rent: 110 - 454 Centre Street S, Oshawa, Ontario L1H 4C2

View all 49 photos

Learn more about this property
Listing provided by:
RIGHT AT HOME REALTY
MLS® number:
E12435904
Agent:
Janet Dowson
*Indicates required field
Name is required
Email is required
Please enter a valid phone number (e.g., 416-111-1111).

About

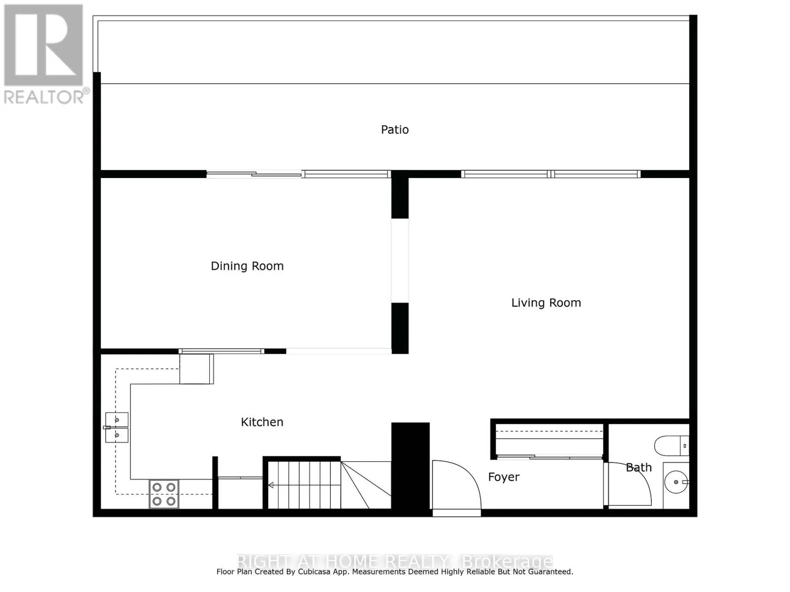
Cross Streets: Simcoe St S./Mill St/Centre St. S. ** Directions: Simcoe St.S/Mill St/Centre St. S. Priced to Sell! Freshly Painted. Rare 4 bedrooms! Almost 2,000 sq ft (1,954 per MPAC). Like Townhouse living!..ground floor open concept with patio, plus accessible 2nd level. Building recently upgraded incl windows/balconies/sliding doors. Main floor of #110 features sliding door walkout to landscaped Terrace (approx 400 sq ft) & garden gate (no need to take your dog through the lobby to go for a walk). Condo fees include *ALL UTILTIES* Garage Parking & Locker. Large closets on both floors= lots of storage space! Elevator to lower level Locker & Parking garage with accessible door openers in basement & at secure front lobby entrance. Very rare to find this sq footage & 4 bedrooms in a condo apt. building in Durham Region! Also unique: 2 Bedrooms face East & 2 Bedrms face West (overlooking green space). 2nd floor features an additional (open concept) family/den/ sitting/ TV/games room & retractable safety gate at stairs. Great for extended family/private spaces! Plus full-sized, newer washer & dryer-2nd floor. Washrooms on both floors. Upper bath has safety grab bars. All appliances included. Building backs onto City of Oshawa-maintained Oshawa Creek walking/bike trail; south to Lakeview Park Beach & new Ed Broadbent Park; or north to Oshawa's Botannical Gardens. Not far from the new Rotary Park (pool) Project. Short walk to planned new Go Train terminal, churches, & Royal Cdn Legion Branch 43. Low traffic street. A few minutes drive to Hwy 401. Close to Oshawa Shopping Centre, Plublic transit bus routes & current Oshawa Go Station for commuting to Toronto OR: this 4 bedroom unit makes creating home office(s) easy! The buildng is very accessible (ramped entry) & the unit features a chairlift. Downsizers may age in place & still keep many of their favourite treasures....enjoying a patio for relaxing &/or pot gardening...but no grass to cut or snow to shovel! Oshawa is a College/University/Health Centre garden award-winning City. Lots to do! (id:27476)

Property Highlights

MLS® Number
E12435904
Type
Single Family
Community Name
Central
Maintenance Fee
1753.18
Ownership Type
Condominium/Strata
Parking Space Total
1

Building

Building Type
Apartment
Storeys
2.00
Square Footage
1800 - 1999 sqft
Bathrooms Total
2
Bedrooms Above Ground
4
Bedrooms Total
4
Amenities
Visitor Parking, Separate Heating Controls, Storage - Locker Park, Place of Worship, Public Transit, Schools
Exterior Finish
Concrete
Fireplace Present
No
Basement Type
N/A (Other, See Remarks)
Basement Features
Building Heating Type
Baseboard heaters
Heating Fuel
Electric
Building Cooling Type

Location