282 Haig Street, Oshawa, Ontario L1G 5N8

Listed for:
$550,000
2 beds
1 baths
Listed 1 day ago
House for rent: 282 Haig Street, Oshawa, Ontario L1G 5N8

View all 38 photos

Learn more about this property
Listing provided by:
ELITE CAPITAL REALTY INC.
MLS® number:
E12448434
Agent:
Phyllis Cheung
*Indicates required field
Name is required
Email is required
Please enter a valid phone number (e.g., 416-111-1111).

About

Cross Streets: Adelaide Ave. E. & Ritson Rd. N. ** Directions: North of Adelaide Ave. E. & West of Ritson Rd. N. Welcome to 282 Haig Street - NEWLY RENOVATED with NEW KITCHEN APPLICANCES and PARTIAL FURNISHED BASEMENT! An inviting, well-maintained home offering bright living spaces, a practical kitchen, and a private backyard perfect for relaxing or entertaining. Nestled on a quiet street with convenient access to parks, schools, transit, shopping, and major highways, this location makes everyday living a breeze. Ideal for first-time buyers, downsizers, or investors seeking a turnkey opportunity in Oshawa. A MUST-SEE! (id:27476)

Property Highlights

MLS® Number
E12448434
Type
Single Family
Community Name
O'Neill
Ownership Type
Freehold
Land Size
31.5 x 111.6 FT
Parking Space Total
2

Building

Building Type
House
Storeys
1.00
Square Footage
0 - 699 sqft
Bathrooms Total
1
Bedrooms Above Ground
2
Bedrooms Total
2
Exterior Finish
Brick
Fireplace Present
No
Basement Type
N/A (Partially finished)
Basement Features
Building Heating Type
Forced air
Heating Fuel
Natural gas
Building Cooling Type
None

Utilities

Water
Municipal water
Utility Sewer
Sanitary sewer

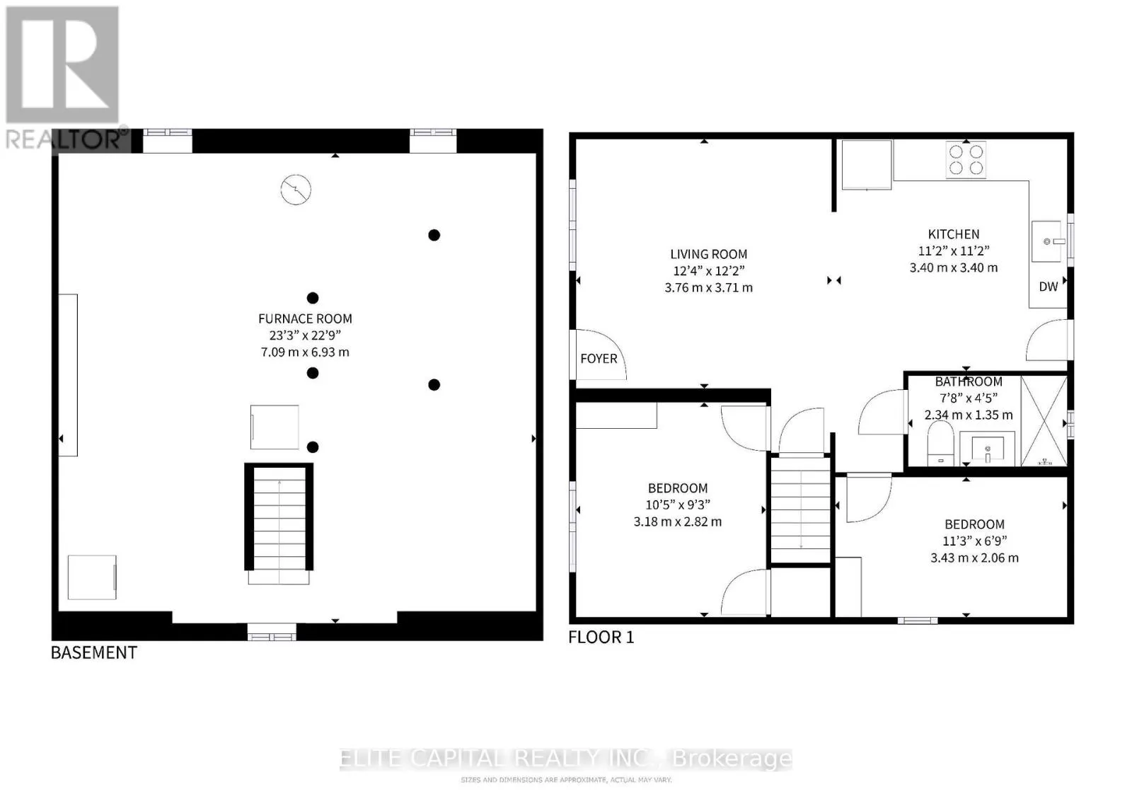
Room Layout

Living room
Main level
3.71 m x 3.76 m
Bedroom
Main level
2.82 m x 3.18 m
Bedroom 2
Main level
3.43 m x 2.06 m
Kitchen
Main level
3.4 m x 3.4 m

Location

Community Spotlight: Homes For sale in Your Neighborhood