Main - 629 Park Road N, Oshawa, Ontario L1J 5Y8

Listed for:
$2,500
3 beds
1 baths
Listed 46 days ago
House for rent: Main - 629 Park Road N, Oshawa, Ontario L1J 5Y8

View all 47 photos

Learn more about this property
Listing provided by:
HOMELIFE GALAXY BALU'S REALTY LTD.
MLS® number:
E12480003
Agent:
Balu Shanmuga
*Indicates required field
Name is required
Email is required
Please enter a valid phone number (e.g., 416-111-1111).

About

Cross Streets: Rossland/Stevenson Rd. N. ** Directions: Turn right onto Park Rd N/Durham Regional Rd 54. Great Location !!! A Bright and Spacious Detached Bangalow Located In of the Oshawa, Spacious 3 Bedrooms With Granite Counter Paired With A Gorgeous Eat-In Kitchen, Large Living room and dining area, Attached Garage W/Auto Door Opener, Separate Laundry On Main Floor, Large Spacious Backyard, Great For Children And Social Events, Close to To All Amenities, Schools, Go Station, Costco, Groceries, Hwy 401,407, Park, Hospital, Shopping, Banks etc (id:27476)

Property Highlights

MLS® Number
E12480003
Type
Single Family
Community Name
McLaughlin
Ownership Type
Freehold
Land Size
50 x 110 FT
Parking Space Total
2

Building

Building Type
House
Storeys
1.00
Square Footage
1100 - 1500 sqft
Bathrooms Total
1
Bedrooms Above Ground
3
Bedrooms Total
3
Exterior Finish
Brick
Fireplace Present
No
Basement Type
N/A (Other, See Remarks)
Basement Features
Building Heating Type
Forced air
Heating Fuel
Natural gas
Building Cooling Type
Central air conditioning

Utilities

Water
Municipal water
Utility Sewer
Sanitary sewer

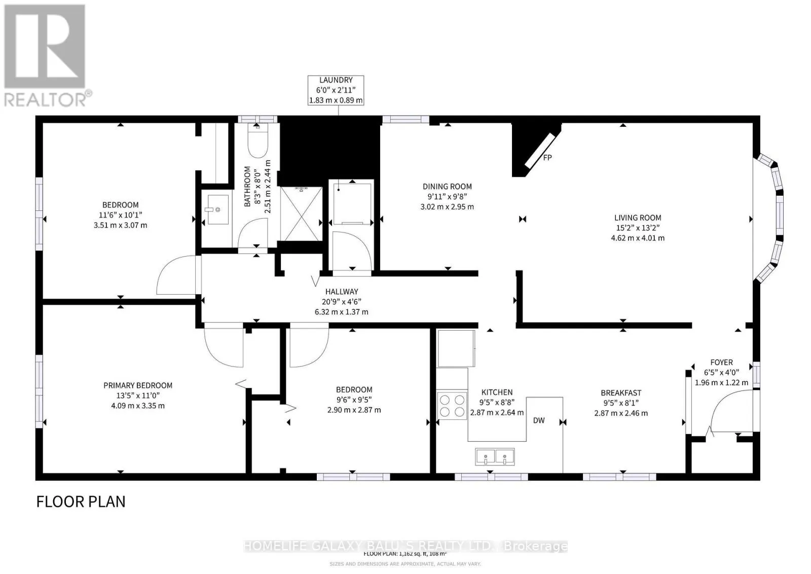
Room Layout

Living room
Main level
4.02 m x 4.29 m
Dining room
Main level
2.98 m x 2.68 m
Kitchen
Main level
2.86 m x 2.43 m
Eating area
Main level
2.86 m x 2.53 m
Primary Bedroom
Main level
3.08 m x 4.05 m
Bedroom 2
Main level
2.77 m x 3.5 m
Bedroom 3
Main level
2.86 m x 2.89 m

Location

Street Spotlight - For rent