193 Bloor Street W, Oshawa, Ontario L1J 1P5

Listed for:
$849,000
0 beds
0 baths
Listed 1 day ago
193 Bloor Street W, Oshawa, Ontario L1J 1P5

View all 6 photos

Learn more about this property
Listing provided by:
KELLER WILLIAMS ENERGY REAL ESTATE
MLS® number:
E12606422
Agent:
Stephen Jones
*Indicates required field
Name is required
Email is required
Please enter a valid phone number (e.g., 416-111-1111).

About

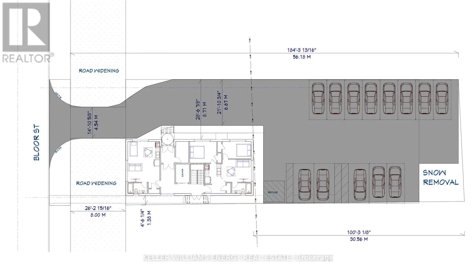
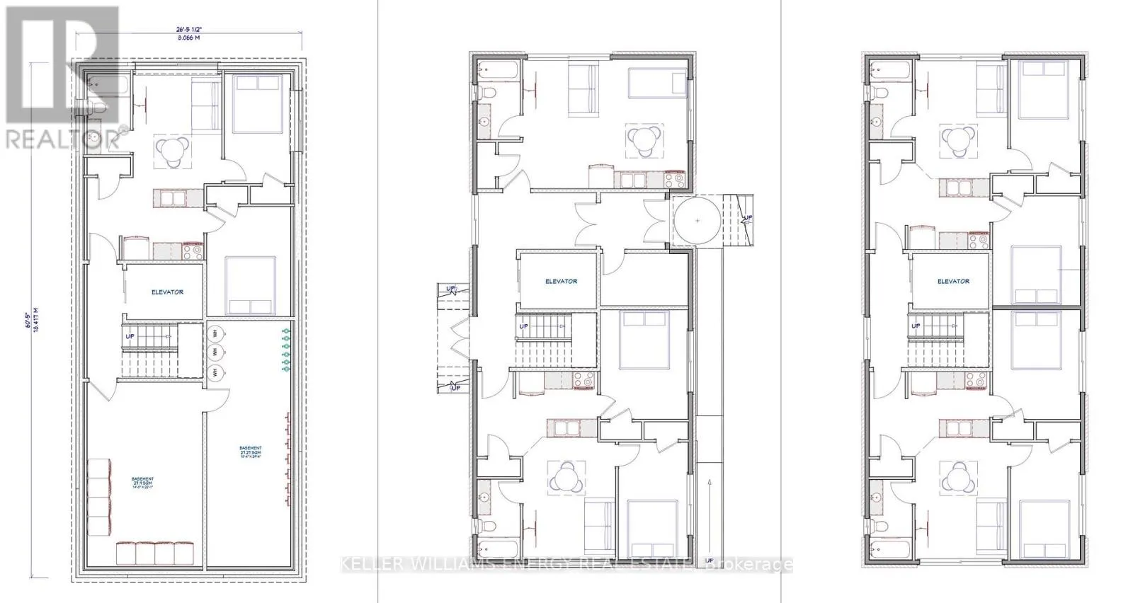
Cross Streets: Park & Bloor. ** Directions: East of Stevenson on Bloor, property on South side. Location, Location, Location! Huge Opportunity To Hold For Future Investment Or Development. With R6-C Zoning Develop Into An Apartment Building, Long Term Care Facility, Nursing Home Or Retirement Home. Surrounded By Large High Rise Multi-family Properties. Currently Used As A 2 Bedroom, 2 Bathroom Home With 2nd Floor Bonus Room. Survey And Topographical Map Available. **EXTRAS** Detached Garage With Power, Newer Gas Furnace, 200 Amp Service. Sold As-Is-Where-Is. Some renovations required to make existing structure liveable. (id:27476)

Property Highlights

MLS® Number
E12606422
Type
Business
Community Name
Lakeview
Land Size
59.86 x 184.52 FT
Parking Space Total
6

Building

Square Footage
11535 sqft
Fireplace Present
No
Basement Type
Basement Features
Building Heating Type
Forced air
Heating Fuel
Natural gas
Building Cooling Type
None

Utilities

Water
Municipal water

Location