491 Ritson Road S, Oshawa, Ontario L1H 5K1

Listed for:
$1,872,000
0 beds
2 baths
Listed 61 days ago
491 Ritson Road S, Oshawa, Ontario L1H 5K1

View all 27 photos

About

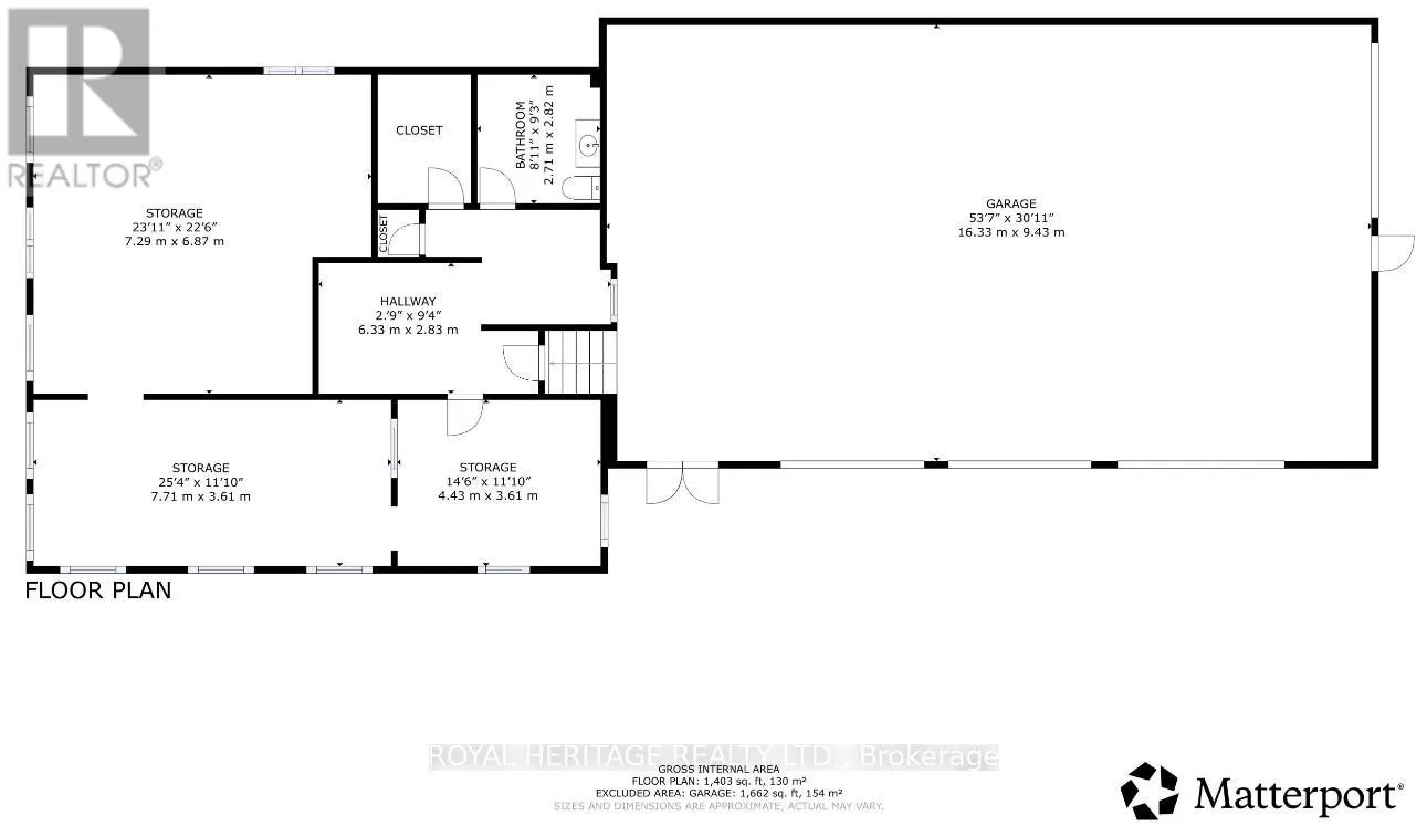
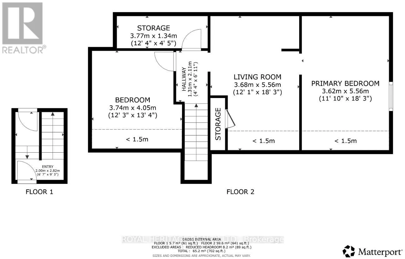
Ritson Rd S & Hwy 401 Please see Interactive Virtual Tour Link & Floor Plans 491 Ritson Rd S, a prime commercial property strategically situated on a major throughway in Oshawa. Positioned adjacent to McDonald's Restaurant, Circle K, and other established commercial enterprises. Everything is almost new. This property offers a total area of 4,991 sq ft. Features include a 1,660 sq ft four-bay automotive space, a finished retail area of 1420 sq ft, and an additional 641 sq ft finished upper level with a separate entrance, providing potential for residential quarters. The lower level encompasses 616 sq ft dedicated to storage. Zoned SPC-A (refer to the attachment for a comprehensive list of permitted uses), the property is currently operating as a tire service center. Exterior storage is available (three sea containers, two 8x20 one 8x40) alongside ample customer parking. Please see Interactive Virtual Tour Link & Floor Plans (id:27476)

Property Highlights

MLS® Number
E12889556
Type
Retail
Community Name
Central
Land Size
Bldg=40 x 135.13 FT ; 35.03x81.14x100.09x40.04x135.13x121.14
Parking Space Total
4

Building

Square Footage
4991 sqft
Bathrooms Total
2
Amenities
Highway, Public Transit
Fireplace Present
No
Basement Type
Basement Features
Building Heating Type
Forced air
Heating Fuel
Natural gas
Building Cooling Type
None

Utilities

Water
Municipal water

Location

Learn more about this property
Listing provided by:
ROYAL HERITAGE REALTY LTD.
MLS® number:
E12889556
Agent:
Jason Abbott
*Indicates required field
Name is required
Email is required
Please enter a valid phone number (e.g., 416-111-1111).

Community Spotlight: Homes For sale in Your Neighborhood