193 Bloor Street W, Oshawa, Ontario L1J 1P5

Listed for:
$849,000
0 beds
0 baths
Listed 58 days ago
193 Bloor Street W, Oshawa, Ontario L1J 1P5

View all 6 photos

About

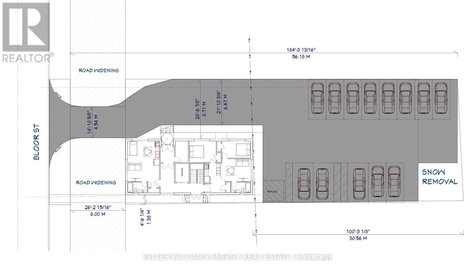
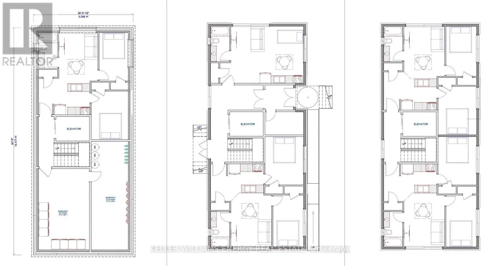
Cross Streets: Park & Bloor. ** Directions: East of Stevenson on Bloor, property on South side. Location, Location, Location! Huge Opportunity To Hold For Future Investment Or Development. With R6-C Zoning Develop Into An Apartment Building, Long Term Care Facility, Nursing Home Or Retirement Home. Surrounded By Large High Rise Multi-family Properties. Currently Used As A 2 Bedroom, 2 Bathroom Home With 2nd Floor Bonus Room. **EXTRAS** Detached Garage With Power, Newer Gas Furnace, 200 Amp Service. Sold As-Is-Where-Is. Some renovations required to make existing structure liveable. (id:27476)

Property Highlights

MLS® Number
E12903778
Type
Business
Community Name
Lakeview
Land Size
59.86 x 184.52 FT
Parking Space Total
6

Building

Square Footage
11535 sqft
Fireplace Present
No
Basement Type
Basement Features
Building Heating Type
Forced air
Heating Fuel
Natural gas
Building Cooling Type
None

Utilities

Water
Municipal water

Location

Learn more about this property
Listing provided by:
KELLER WILLIAMS ENERGY REAL ESTATE
MLS® number:
E12903778
Agent:
Stephen Jones
*Indicates required field
Name is required
Email is required
Please enter a valid phone number (e.g., 416-111-1111).