00 Harmony Road, Oshawa, Ontario L1K 2B3

Listed for:
$2,400,000
0 beds
0 baths
Listed 52 days ago
00 Harmony Road, Oshawa, Ontario L1K 2B3

View all 3 photos

About

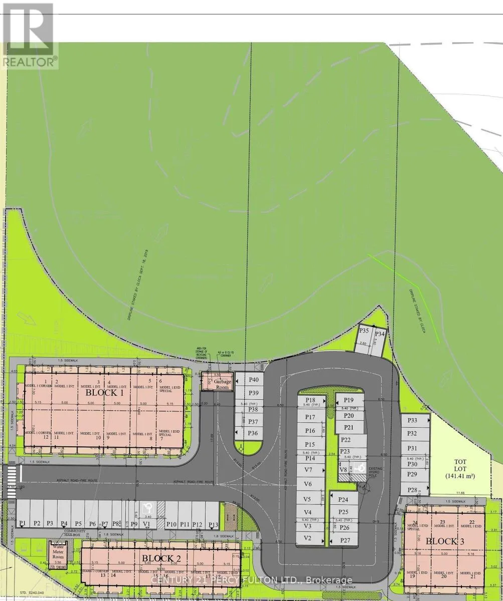
Cross Streets: Harmony Rd & Beatrice St. ** Directions: Harmony Rd & Beatrice St. Enclaved community, Draft & Site Plan approved for Twenty Four Town Homes . Six row and eighteen back to back three story towns. Water and sewer connections at the property line. (id:27476)

Property Highlights

MLS® Number
E12930128
Type
Vacant Land
Community Name
Pinecrest
Land Size
264.1 x 204.5 FT|2 - 4.99 acres

Building

Fireplace Present
No
Basement Type
Basement Features
Building Heating Type
Heating Fuel
Building Cooling Type

Location

Learn more about this property
Listing provided by:
CENTURY 21 PERCY FULTON LTD.
MLS® number:
E12930128
Agent:
Asma Nasir
*Indicates required field
Name is required
Email is required
Please enter a valid phone number (e.g., 416-111-1111).