1281 Oxford Street, Oshawa, Ontario L1J 3W5

Listed for:
$675,000
4 beds
2 baths
Listed 1 day ago
House for rent: 1281 Oxford Street, Oshawa, Ontario L1J 3W5

View all 23 photos

About

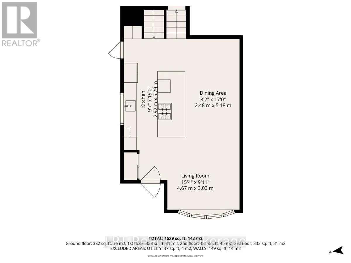
Cross Streets: Oxford and Phillip Murray. ** Directions: Oxford, North of Phillip Murray. Extensively Renovated Brick Backsplit Located In Oshawa's Desirable Lakeview Neighbourhood Offering A Thoughtfully Designed Layout With Exceptional Functionality And Generous Living Space Throughout. The Main Level Features A Bright Open-Concept Kitchen, Dining And Living Area Ideal For Everyday Living And Entertaining. The Kitchen Is Appointed With Quartz Countertops, A Large Centre Island With Cooktop, Built-In Wall Ovens And Brand-New Stainless Steel Appliances. Sleek Cabinetry And Tile Backsplash Add A Clean Contemporary Finish While A Large Front Window Brings In Natural Light. The Upper Level Includes Two Well-Proportioned Bedrooms And A Full Bathroom. The Top Level Adds Two Additional Bedrooms Including A Spacious Primary Bedroom With Walk-In Closet Providing Separation And Privacy For Family Living. The Lower Level Offers A Recreation Room Along With A Utility And Storage Area With Built-In Cabinetry And Sink. Mechanical Features Include A Whole-Home Water Treatment System With Filtration, Softener And UV Purification. The Home Has Also Been Extensively Rewired With New Switches And Modern Light Fixtures Throughout. Exterior Features Include A Fully Resodded Backyard With A Concrete Pad Off The Kitchen For Outdoor Use, New Wood Fencing, A Storage Shed And A Long Private Driveway Accommodating Up To Four Vehicles. The Primary Attic Has Also Been Upgraded With Added Insulation And Certificate. Located On A Level Lot In A Well-Established Community Close To Schools, Parks, Shopping And Transit. According To MPAC The Home Offers Approximately 877 Sq Ft Above Grade Plus 587 Sq Ft Of Finished Basement Space. Floorplans Show Approximately 1,529 Sq Ft Total Interior Space. Measurements May Vary And Buyers Should Verify. (id:27476)

Property Highlights

MLS® Number
E12942086
Type
Single Family
Community Name
Lakeview
Ownership Type
Freehold
Land Size
35.2 x 110.1 FT ; Lot size irregular
Parking Space Total
4

Building

Building Type
House
Square Footage
700 - 1100 sqft
Bathrooms Total
2
Bedrooms Above Ground
4
Bedrooms Total
4
Amenities
Public Transit
Exterior Finish
Brick, Vinyl siding
Fireplace Present
No
Basement Type
N/A (Finished)
Basement Features
Building Heating Type
Heat Pump
Heating Fuel
Electric
Building Cooling Type
Central air conditioning

Utilities

Water
Municipal water
Utility Sewer
Sanitary sewer

Room Layout

Primary Bedroom
Second level
3.55 m x 2.9 m
Bedroom 2
Second level
3.55 m x 2.4 m
Recreational, Games room
Basement
5.85 m x 3.41 m
Bedroom 3
Lower level
3.29 m x 2.92 m
Bedroom 4
Lower level
3.3 m x 2.38 m
Laundry room
Lower level
6.59 m x 1.88 m
Kitchen
Main level
5.79 m x 2.92 m
Living room
Main level
4.67 m x 3.03 m
Dining room
Main level
5.18 m x 2.48 m

Location

Learn more about this property
Listing provided by:
LPT Realty
MLS® number:
E12942086
Agent:
Stuart Douglas G Smith
*Indicates required field
Name is required
Email is required
Please enter a valid phone number (e.g., 416-111-1111).