236 Stonewalk Way, Ottawa, Ontario K0A 2H0

Listed for:
$1,638,000
3 beds
2 baths
Listed 392 days ago
House for rent: 236 Stonewalk Way, Ottawa, Ontario K0A 2H0

View all 4 photos

About

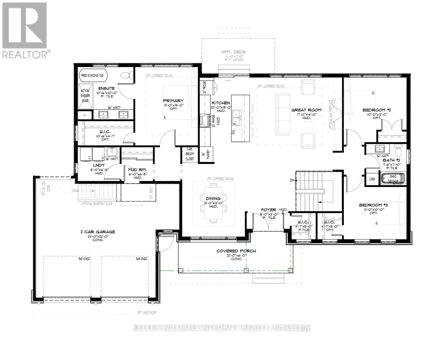
Panmure & 417 Stonewalk Estates welcomes GOHBA Award-winning builder Sunter Homes to complete this highly sought-after community. Offering Craftsman style home with low-pitched roofs, natural materials & exposed beam features for your pride of ownership every time you pull into your driveway. Our Evergreen model (designed by Bell & Associate Architects) offers 1850 sf of main-level living space featuring three spacious bedrooms with large windows and closest, spa-like ensuite, large chef-style kitchen, dining room, and central great room. Guests enter a large foyer with lines of sight to the kitchen, a great room, and large windows to the backyard. Convenient daily entrance into the mudroom with plenty of space for coats, boots, and those large lacrosse or hockey bags. Customization is available with selections of kitchen, flooring, and interior design supported by award-winning designer, Tanya Collins Interior Designs. Ask Team Big Guys to secure your lot and build with Sunter Homes., Flooring: Ceramic, Flooring: Laminate (id:27476)

Property Highlights

MLS® Number
X11952728
Type
Single Family
Community Name
9403 - Fitzroy Ward (South West)
Ownership Type
Freehold
Land Size
204.7 x 435.2 FT|2 - 4.99 acres
Parking Space Total
12

Building

Building Type
House
Storeys
1.00
Square Footage
1500 - 2000 sqft
Bathrooms Total
2
Bedrooms Above Ground
3
Bedrooms Total
3
Exterior Finish
Stone, Wood
Fireplace Present
No
Basement Type
N/A (Unfinished)
Basement Features
Building Heating Type
Heat Pump, Not known
Heating Fuel
Electric, Natural gas
Building Cooling Type
Central air conditioning

Utilities

Utility Sewer
Septic System

Room Layout

Great room
Main level
4.88 m x 4.57 m
Dining room
Main level
3.66 m x 3.66 m
Kitchen
Main level
4.57 m x 2.74 m
Primary Bedroom
Main level
4.57 m x 3.66 m
Bedroom 2
Main level
3.66 m x 3.05 m
Bedroom 3
Main level
3.66 m x 3.05 m
Foyer
Main level
3.35 m x 2.44 m
Laundry room
Main level
2.44 m x 1.52 m
Bathroom
Main level
3.2 m x 3.05 m
Bathroom
Main level
2.39 m x 2.34 m

Location

Learn more about this property
Listing provided by:
ROYAL LEPAGE INTEGRITY REALTY
MLS® number:
X11952728
Agent:
Aud Eimantas
*Indicates required field
Name is required
Email is required
Please enter a valid phone number (e.g., 416-111-1111).