Block 6 Thomas Argue Road, Ottawa, Ontario K0A 1L0

Listed for:
$499,900
0 beds
0 baths
Listed 249 days ago
Block 6 Thomas Argue Road, Ottawa, Ontario K0A 1L0

View all 8 photos

About

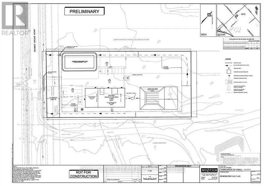
Cross Streets: From March Road, turn south onto Thomas Argue Road. Subject property is on the left hand side, just before Wingover Private. ** Directions: Head south on Thomas Argue Road from March Road. Located at the Carp Airport. Prime commercial lot! Highly sought after green field land with approximately 1.6 acres. The T1B zoning has many light industrial uses including warehouse, trucking terminal, storage, heavy equipment vehicle sales and service, office, restaurant, retail (factory outlet) and many more. Ideal location, only 2.5 kms from the 417 and 10 minutes to the Kanata North technology hub. The site is flat, dry, clear and ready for your development. Come and join the 300+ businesses in Ottawa's largest and fastest growing light industrial park - The Carp Road Corridor. This property is subject to an Airport Maintenance Charge (AMC), a fee paid by all users at the airport, including land owners and tenants. The fee is calculated annually and would be approximately $214 per month for this property for 2025. (id:27476)

Property Highlights

MLS® Number
X11979975
Type
Vacant Land
Community Name
9104 - Huntley Ward (South East)
Land Size
1.57 ac

Building

Square Footage
2 ac
Fireplace Present
No
Basement Type
Basement Features
Building Heating Type
Heating Fuel
Building Cooling Type

Location

Learn more about this property
Listing provided by:
ROYAL LEPAGE TEAM REALTY
MLS® number:
X11979975
Agent:
Sean Downey
*Indicates required field
Name is required
Email is required
Please enter a valid phone number (e.g., 416-111-1111).