2061 Prince Of Wales Drive S, Ottawa, Ontario K2E 7A4

Listed for:
$1,174,900
3 beds
3 baths
Listed 174 days ago
House for rent: 2061 Prince Of Wales Drive S, Ottawa, Ontario K2E 7A4

View all 36 photos

Learn more about this property
Listing provided by:
ROYAL LEPAGE INTEGRITY REALTY
MLS® number:
X12118600
Agent:
Brent Bennett
*Indicates required field
Name is required
Email is required
Please enter a valid phone number (e.g., 416-111-1111).

About

Cross Streets: Rideau Heights Lane. ** Directions: From Hunt Club and Prince of Wales head North on Prince of Wales, Property will be on your Right. Location! Location! Location! Waterfront lot on the Rideau River. Only minutes to downtown Ottawa. Why drive to Mooney's bay when you can take your boat instead? 7 minutes to the Ottawa Airport, 13 minutes to Westboro, 17 minutes to Parliament. Golf close by. Let you imagination go wild! Choose to either renovate the existing 3 bedroom home complete with hardwood flooring throughout, custom kitchen with granite counters and under cabinet lighting. Take in the view on your interlock patio. Custom shed with 4@330w solar panels act as back up power if there's a power outage. Or build your new dream home! Property is serviced with Hydro, Municipal Water, Natural Gas and Bell/Rogers. Currently on septic however there is a possibility of connecting to the municipal sewers with a new build. Book your showing today! (id:27476)

Property Highlights

MLS® Number
X12118600
Type
Single Family
Community Name
7404 - Rideau Heights/Rideau River
Ownership Type
Freehold
Land Size
30 x 263 FT ; Irregular Lot
Parking Space Total
12

Building

Building Type
House
Storeys
2.00
Square Footage
1500 - 2000 sqft
Bathrooms Total
3
Bedrooms Above Ground
3
Bedrooms Total
3
Amenities
Fireplace(s)
Exterior Finish
Wood, Brick
Fireplace Present
Yes
Basement Type
N/A (Unfinished)
Basement Features
Building Heating Type
Forced air
Heating Fuel
Wood
Building Cooling Type
Central air conditioning

Utilities

Water
Municipal water
Utility Sewer
Septic System

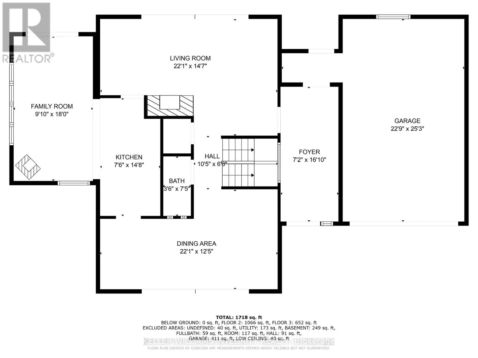
Room Layout

Primary Bedroom
Second level
4.9784 m x 3.3782 m
Bedroom
Second level
3.302 m x 3.048 m
Bedroom
Second level
3.3274 m x 3.048 m
Bathroom
Second level
2.4892 m x 2.1336 m
Utility room
Basement
7.0104 m x 3.4544 m
Bathroom
Basement
1.4224 m x 2.6924 m
Other
Basement
2.9464 m x 3.81 m
Foyer
Main level
4.88 m x 2.13 m
Living room
Main level
6.731 m x 4.445 m
Dining room
Main level
6.731 m x 3.7846 m
Kitchen
Main level
4.4704 m x 2.286 m
Family room
Main level
5.4864 m x 2.9972 m

Location

Street Spotlight - For sale