507 - 108 Richmond Road, Ottawa, Ontario K1Z 6V9

Listed for:
$499,000
1 beds
2 baths
Listed 115 days ago
Apartment for rent: 507 - 108 Richmond Road, Ottawa, Ontario K1Z 6V9

View all 37 photos

Learn more about this property
Listing provided by:
RE/MAX HALLMARK REALTY GROUP
MLS® number:
X12304151
Agent:
Leo Alvarenga
*Indicates required field
Name is required
Email is required
Please enter a valid phone number (e.g., 416-111-1111).

About

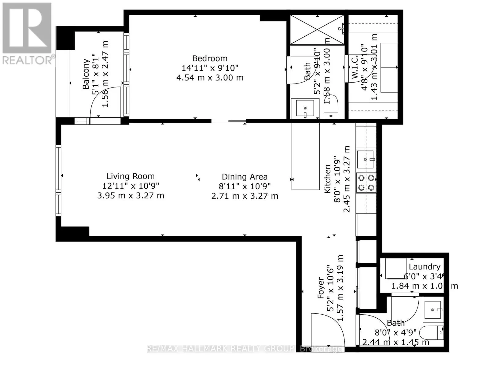
Cross Streets: Richmond Rd & Island Park Dr. ** Directions: Take Richmond Rd towards Island Park Dr, it will be on your right before the intersection. Ideally located in the heart of Westboro, this OVERSIZED bright and stylish 1-bedroom, TWO BATHROOM condo offers spacious living with 785 square feet + balcony, in a sought-after building with exceptional amenities. The open-concept layout features hardwood flooring and floor-to-ceiling windows that flood the space with natural light. The modern kitchen boasts quartz countertops, stainless steel appliances, generous cabinetry, and a breakfast bar, with a separate dining area perfect for entertaining. The large primary bedroom includes a walk-in closet with built-in organizers and a private en-suite. Additional highlights include in-unit laundry, a balcony, and tile flooring in key areas. Comes with 1 UNDERGROUND PARKING space and a storage locker. Building amenities include a fitness centre, theatre room, party rooms, and a ROOFTOP TERRACE with BBQs. Close to the LRT, shops, restaurants, and more. (id:27476)

Property Highlights

MLS® Number
X12304151
Type
Single Family
Community Name
5003 - Westboro/Hampton Park
Maintenance Fee
536.22
Ownership Type
Condominium/Strata
Parking Space Total
1

Building

Building Type
Apartment
Square Footage
700 - 799 sqft
Bathrooms Total
2
Bedrooms Above Ground
1
Bedrooms Total
1
Amenities
Exercise Centre, Party Room, Storage - Locker
Exterior Finish
Concrete
Fireplace Present
No
Basement Type
None
Basement Features
Building Heating Type
Forced air
Heating Fuel
Natural gas
Building Cooling Type
Central air conditioning

Location

Street Spotlight - For sale