1&8 - 155 Terence Matthews Crescent, Ottawa, Ontario K2M 2A8

Listed for:
$13
0 beds
0 baths
Listed 95 days ago
Offices for rent: 1&8 - 155 Terence Matthews Crescent, Ottawa, Ontario K2M 2A8

View all 35 photos

Learn more about this property
Listing provided by:
COLDWELL BANKER SARAZEN REALTY
MLS® number:
X12342977
Agent:
Ryan Holmes
*Indicates required field
Name is required
Email is required
Please enter a valid phone number (e.g., 416-111-1111).

About

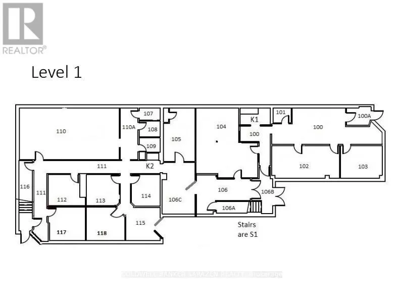
Cross Streets: Eagleson & Michael Cowpland Dr. ** Directions: Take Hwy 417 West, exit for Eagleson Rd and turn left. Follow to Michael Cowpland and turn right, another right onto Terence Matthews and the property will be on your left. Great leasing opportunity in the Kanata South business park off of Eagleson Rd. Conveniently located at 155 Terence Matthews, this office condo features 2 units, #1 and #8, which offers approximately 7,200 square feet of versatile space. Featuring 15 offices, a meeting room, open concept working area on the 2nd level, 4 bathrooms and 4 roof top units for heating and cooling. The space has a storage/loading area with double door access and a total of 15 parking spaces allocated to the 2 units. The total space of both units is 7,200 sqft, which consist mainly offices and open working areas. The main level measures approx 4,000 sqft and the second level is 3,200 sqft approx. IP4 Zoning. Base rent: $13.5.sqft. Operating cost: 12.25/sqft (id:27476)

Property Highlights

MLS® Number
X12342977
Type
Office
Community Name
9010 - Kanata - Emerald Meadows/Trailwest
Land Size
167 x 412 FT

Building

Building Type
Offices
Square Footage
7200 sqft
Fireplace Present
No
Basement Type
Basement Features
Building Heating Type
Forced air
Heating Fuel
Natural gas
Building Cooling Type
Fully air conditioned

Utilities

Water
Municipal water

Location