1285 Fellows Road, Ottawa, Ontario K2C 2V8

Listed for:
$649,900
5 beds
2 baths
Listed 110 days ago
House for rent: 1285 Fellows Road, Ottawa, Ontario K2C 2V8

View all 29 photos

Learn more about this property
Listing provided by:
ROYAL LEPAGE TEAM REALTY
MLS® number:
X12417486
Agent:
Georges Tayar
*Indicates required field
Name is required
Email is required
Please enter a valid phone number (e.g., 416-111-1111).

About

Cross Streets: Iris Street at Parkway Drive. ** Directions: East on Iris to Parkway. Left on Drury. Drury becomes Fellows. Property will be on your left. Prime Location! Ideal for Investors and Families alike! This expansive bungalow is situated on an impressive city lot spanning over 8200 sq. ft., offering exceptional development potential. This property is an excellent student rental property, and can generate impressive rental income. Adjacent to Terre Des Jeunes Catholic Elementary School, and with easy access to Algonquin College, transit, and shopping amenities, this property is perfectly positioned. Featuring five bedrooms, two full baths, main floor laundry, and a bright sunroom, it also includes a fully fenced yard for added privacy and security. Expand your investment portfolio with this excellent property. Schedule a showing today! (id:27476)

Property Highlights

MLS® Number
X12417486
Type
Single Family
Community Name
6304 - Parkway Park
Ownership Type
Freehold
Land Size
50 x 157 FT
Parking Space Total
3

Building

Building Type
House
Storeys
1.00
Square Footage
1100 - 1500 sqft
Bathrooms Total
2
Bedrooms Above Ground
3
Bedrooms Total
5
Exterior Finish
Brick, Stone
Fireplace Present
No
Basement Type
Full (Finished)
Basement Features
Building Heating Type
Forced air
Heating Fuel
Natural gas
Building Cooling Type
Central air conditioning

Utilities

Water
Municipal water
Utility Sewer
Sanitary sewer

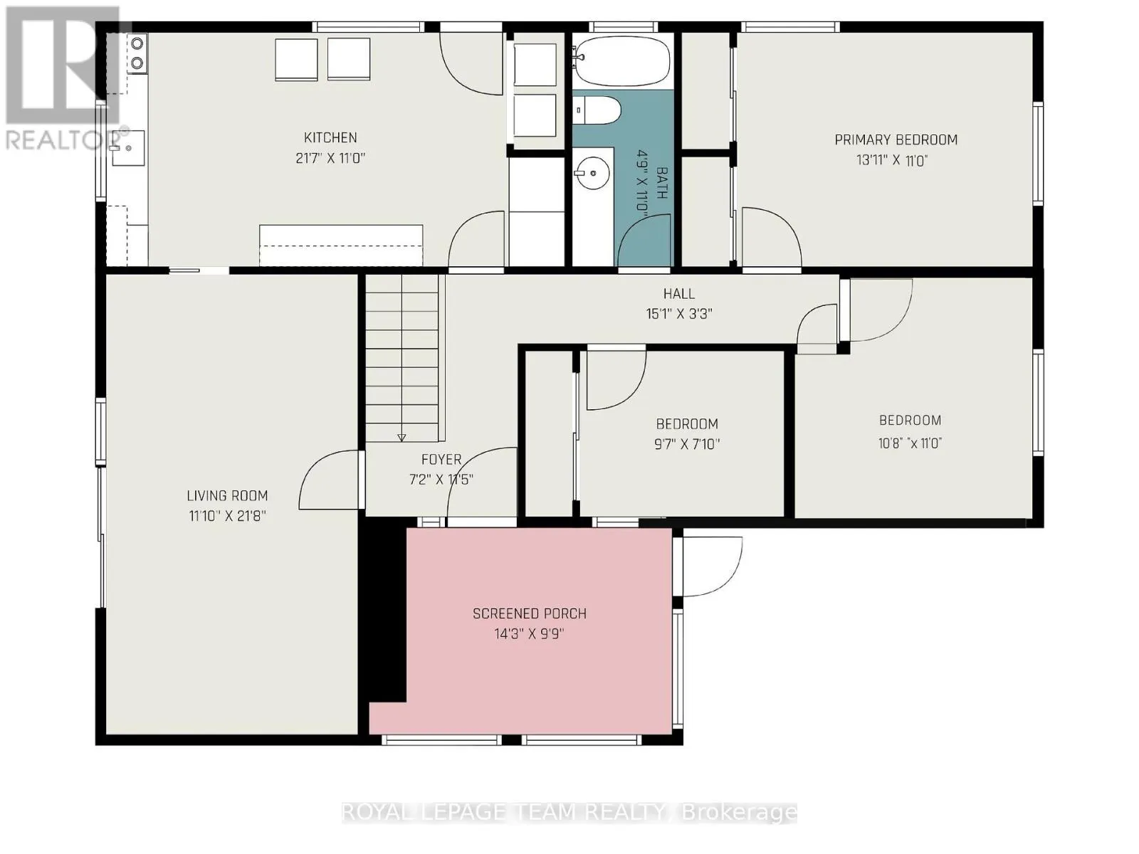
Room Layout

Recreational, Games room
Basement
7.31 m x 3.55 m
Bedroom 4
Basement
4.62 m x 2.64 m
Bedroom 5
Basement
6.24 m x 2.94 m
Den
Basement
3.78 m x 1.98 m
Sunroom
Main level
3.96 m x 2.94 m
Living room
Main level
6.7 m x 3.53 m
Kitchen
Main level
6.57 m x 3.35 m
Primary Bedroom
Main level
4.26 m x 3.35 m
Bedroom 2
Main level
2.94 m x 2.28 m
Bedroom 3
Main level
3.47 m x 2.51 m

Location