West Side - 67 Springhurst Avenue, Ottawa, Ontario K1S 0E2

Listed for:
$895,000
0 beds
0 baths
Listed 50 days ago
West Side - 67 Springhurst Avenue, Ottawa, Ontario K1S 0E2

View all 11 photos

Learn more about this property
Listing provided by:
RE/MAX HALLMARK REALTY GROUP
MLS® number:
X12433204
Agent:
Nancy Benson
*Indicates required field
Name is required
Email is required
Please enter a valid phone number (e.g., 416-111-1111).

About

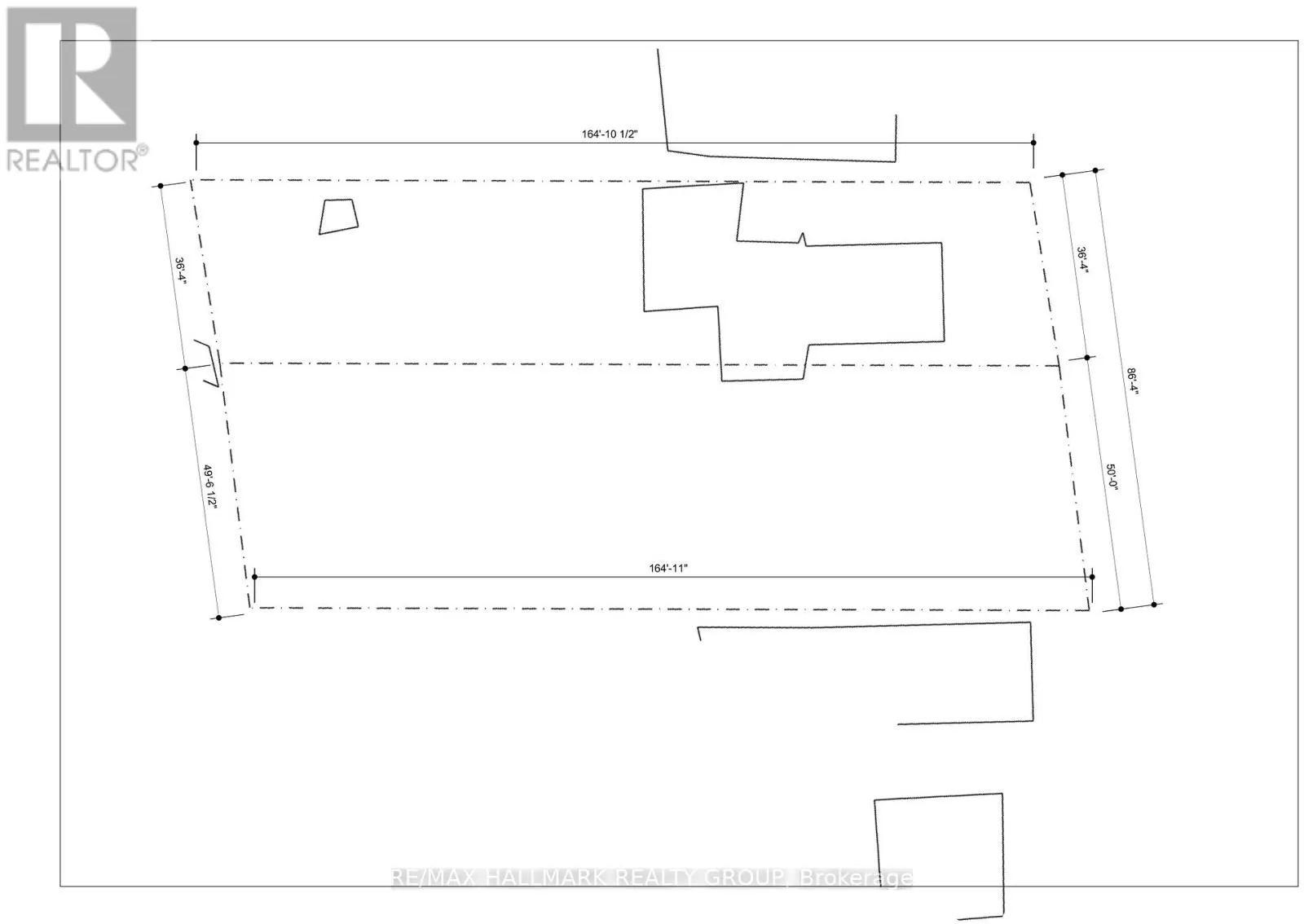
Cross Streets: Springhurst and Rosemere. ** Directions: Take Main St. from either Riverside or Hawthorne, then Springhurst is a one way (East) from Main Street. A rare opportunity to build custom homes on this 9,100 sq. ft. lot just off Main Street in the vibrant Ottawa East community. Steps from the Rideau River and surrounded by parkland, this location offers a perfect balance of city living and natural beauty. Walk to an array of independent shops, restaurants, and cafés along Main Street or enjoy the quick access to the Rideau Canal pathways and the Flora Footbridge connecting to the Glebe. Ottawa East is a neighbourhood rich in history and character, known for its mature tree-lined streets, established homes, and welcoming sense of community. With excellent schools, community centres, and recreational facilities nearby, it is a highly sought-after area for both families and professionals. Proximity to transit routes, Highway 417, and downtown Ottawa makes commuting simple and convenient. This wonderful lot sits on a quiet one-way street with mature landscaping, services at the street, and zoning (R3P [N4B]) that allows for a high-density infill project. The R-Plan for severance has been submitted so applications can begin immediately. A level lot bordered by single family homes and luxury condominiums, it provides numerous possibilities in a prime central location. An outstanding opportunity to create a signature project in one of Ottawa's most desirable downtown neighbourhoods. (id:27476)

Property Highlights

MLS® Number
X12433204
Type
Vacant Land
Community Name
4407 - Ottawa East
Land Size
50 x 165 FT|under 1/2 acre

Building

Amenities
Park
Fireplace Present
No
Basement Type
Basement Features
Building Heating Type
Heating Fuel
Building Cooling Type

Utilities

Water
Municipal water
Utility Sewer
Sanitary sewer

Location