634 David Manchester Road, Ottawa, Ontario K0A 1L0

Listed for:
$1,074,900
3 beds
3 baths
Listed 92 days ago
House for rent: 634 David Manchester Road, Ottawa, Ontario K0A 1L0

View all 50 photos

Learn more about this property
Listing provided by:
ROYAL LEPAGE TEAM REALTY
MLS® number:
X12435811
Agent:
Brittany Saikaley
*Indicates required field
Name is required
Email is required
Please enter a valid phone number (e.g., 416-111-1111).

About

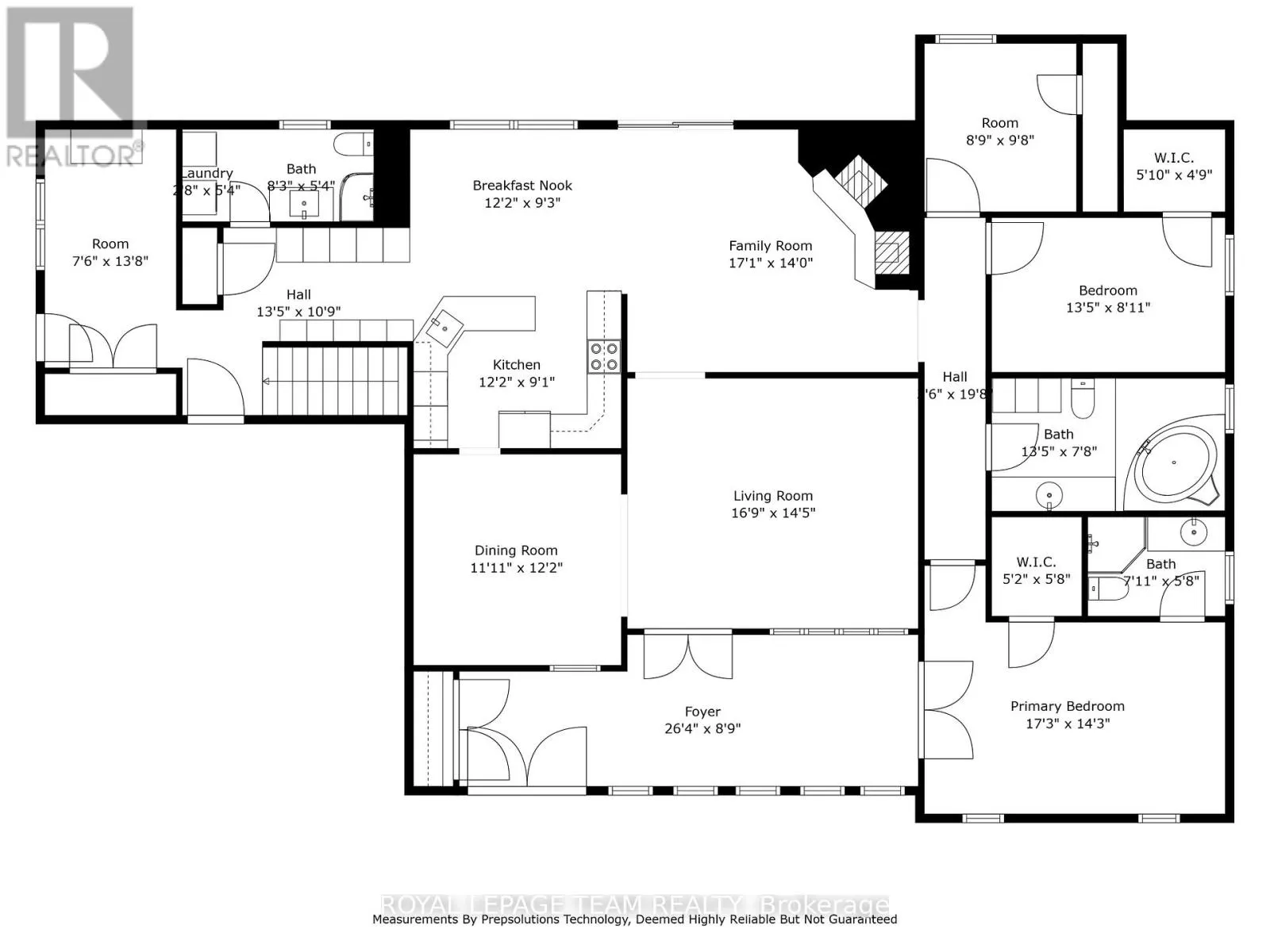
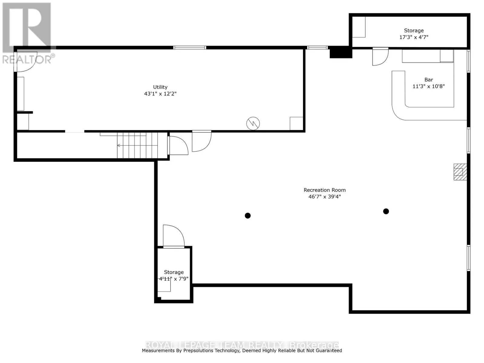
Cross Streets: Richardson Side & David Manchester. ** Directions: Carp Rd to Richardson Side Rd to David Manchester. Custom 2,541 Sq Ft All-Brick Bungalow above grade, on a nearly 2 acres property perfect for Contractors & Entertainers alike! Welcome to this spacious and solidly built home, positioned for endless sun offering great potential to create your dream home. Set on a private, tree-lined lot just under 2 acres, this property features extensive driveways throughout ideal for contractors, hobbyists, or anyone needing space for equipment, trailers, or toys. Inside, you'll find 3 generously sized bedrooms, each with walk-in closets, and a layout designed for comfortable family living and entertaining. A charming solarium sitting area greets you at the entrance, leading into a large formal living and dining room. The heart of the home is the solid oak kitchen with abundant cabinetry, an eat-in area, and an open connection to the cozy family room with a stone fireplace and direct access to the backyard. Perfect for those working from home, the side entrance leads directly into a private office space ideal for client visits with a full bathroom and nearby laundry for added convenience. The primary room features a 3pc ensuite, large closest and 2 entries from the solarium with double doors and another entry from the hallway that brings you to two spacious bedrooms and a 3pc full bathroom with soaker tub. The nearly 1,800 sq ft finished basement was once the talk of the neighbourhood and still holds incredible potential. Designed for entertaining, it features a spacious bar, pool table area, stage, and gas fireplace plus a workshop, utility room, and cold storage. This incredible layout must be seen to be fully appreciated. The driveway leading to the home is fully interlocked that leads you to the front door and wraps around the back of the home with a large patio for entertaining outside. Enjoy peaceful country-style living while staying just minutes from Carp, Stittsville, the highway, and all major amenities. (id:27476)

Property Highlights

MLS® Number
X12435811
Type
Single Family
Community Name
9105 - Huntley Ward (South West)
Ownership Type
Freehold
Land Size
200 x 419.1 FT|1/2 - 1.99 acres
Parking Space Total
22

Building

Building Type
House
Storeys
1.00
Square Footage
2500 - 3000 sqft
Bathrooms Total
3
Bedrooms Above Ground
3
Bedrooms Total
3
Amenities
Fireplace(s)
Exterior Finish
Brick
Fireplace Present
Yes
Basement Type
Full (Finished)
Basement Features
Building Heating Type
Forced air
Heating Fuel
Natural gas
Building Cooling Type
Central air conditioning

Utilities

Power
Generator
Utility Sewer
Septic System

Room Layout

Recreational, Games room
Basement
14.193 m x 7.873 m
Other
Basement
7.592 m x 3.737 m
Workshop
Basement
13.143 m x 3.606 m
Solarium
Main level
8.579 m x 2.732 m
Bathroom
Main level
3.966 m x 2.318 m
Bathroom
Main level
3.924 m x 1.83 m
Den
Main level
4.44 m x 2.456 m
Living room
Main level
5.455 m x 4.544 m
Dining room
Main level
3.712 m x 3.658 m
Family room
Main level
5.501 m x 4.366 m
Eating area
Main level
3.668 m x 3.046 m
Kitchen
Main level
5.808 m x 3.9 m
Primary Bedroom
Main level
5.155 m x 3.654 m
Bathroom
Main level
2.119 m x 1.66 m
Bedroom 2
Main level
3.957 m x 2.742 m
Bedroom 3
Main level
3.55 m x 3.017 m

Location