8 - 1267 Summerville Avenue, Ottawa, Ontario K1Z 8G6

Listed for:
$2,350
2 beds
2 baths
Listed 104 days ago
House for rent: 8 - 1267 Summerville Avenue, Ottawa, Ontario K1Z 8G6

View all 26 photos

About

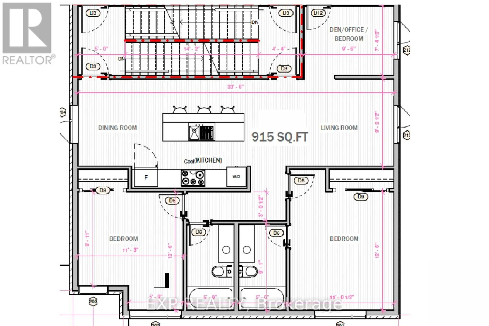
Cross Streets: Silver Street and Summerville Ave. ** Directions: From baseline, right on Fisher, left on Trent turns to Chevrier, turn left in Summerville. Welcome to 1267 Summerville - a brand-new, contemporary building nestled in one of Ottawa's most convenient and rapidly developing communities. Surrounded by parks, local amenities, and offering quick access to public transit and major routes, this location provides the perfect blend of urban accessibility and neighbourhood charm.This 2-bedroom + 1Den, 2-bath third-floor unit impresses with large windows that fill the space with natural light, creating an open and inviting atmosphere. The modern, open-concept layout showcases premium finishes, hardwood flooring throughout, and a sleek kitchen complete with stainless steel appliances, contemporary cabinetry, and ample counter space - ideal for cooking and entertaining.Each bedroom is spacious and bright, with the primary suite featuring a private ensuite bath and the other two bedrooms sharing a modern full bathroom. One bedroom easily doubles as a home office, offering flexibility for today's lifestyle. Residents will also appreciate the in-unit laundry, thoughtful craftsmanship, and attention to detail throughout.Parking available for an additional charge.1267 Summerville offers the best of modern living - stylish, functional, and perfectly located. (id:27476)

Property Highlights

MLS® Number
X12482585
Type
Single Family
Community Name
5303 - Carlington
Ownership Type
Freehold
Land Size
50 x 135 FT
Parking Space Total
1

Building

Building Type
House
Square Footage
700 - 1100 sqft
Bathrooms Total
2
Bedrooms Above Ground
2
Bedrooms Total
2
Exterior Finish
Aluminum siding, Brick
Fireplace Present
No
Basement Type
None
Basement Features
Building Heating Type
Forced air
Heating Fuel
Natural gas
Building Cooling Type
Central air conditioning

Utilities

Water
Municipal water
Utility Sewer
Sanitary sewer

Room Layout

Bedroom
Second level
3.81 m x 3.43 m
Bedroom 2
Second level
3.81 m x 3.35 m
Office
Second level
2.9 m x 2.3 m
Living room
Second level
4.5 m x 2.8 m
Dining room
Second level
2.5 m x 2.8 m
Kitchen
Second level
3 m x 2.8 m

Location

Learn more about this property
Listing provided by:
EXP REALTY
MLS® number:
X12482585
Agent:
Kevin Feely
*Indicates required field
Name is required
Email is required
Please enter a valid phone number (e.g., 416-111-1111).