1980 Phelan Road W, Ottawa, Ontario K0A 2T0

Listed for:
$10,000
0 beds
0 baths
Listed 126 days ago
1980 Phelan Road W, Ottawa, Ontario K0A 2T0

View all 44 photos

About

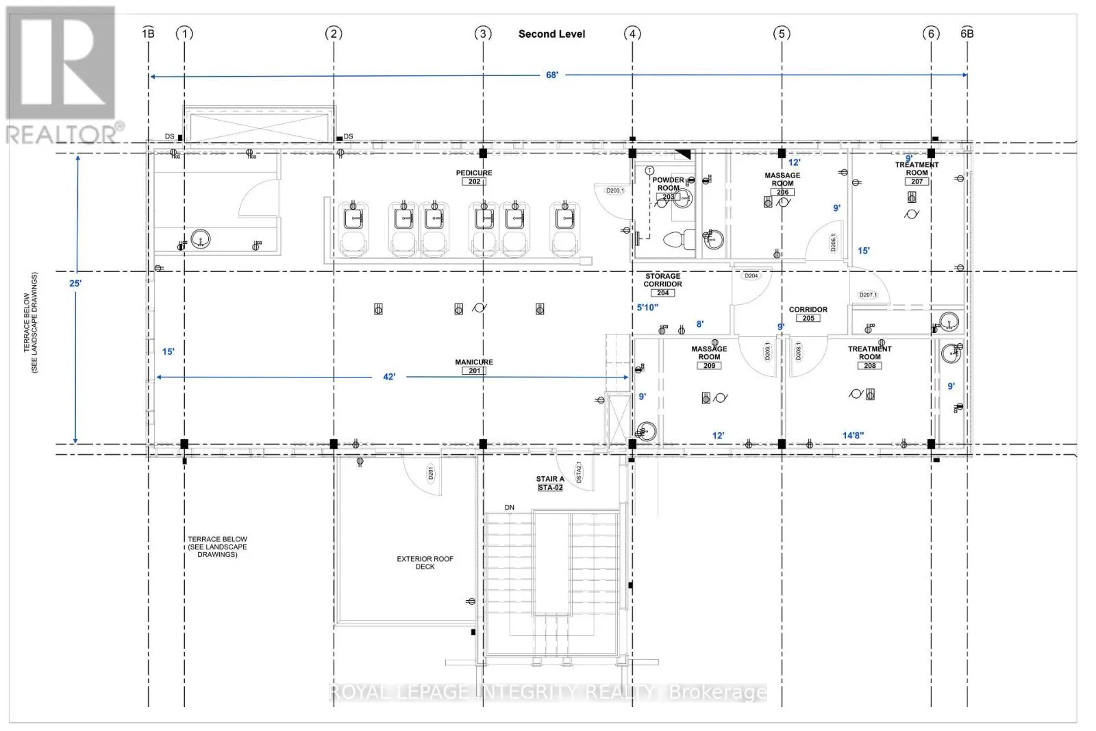
Cross Streets: Prince of Wales Drive. ** Directions: From Highway 416 take exit 73. Travel South West on Prince of Wales Drive. Turn West on Phelan Road. A stunning, fully equipped day spa facility is available for sublease on the beautiful Strathmere events venue estate in South Ottawa. Perfect for a growing beauty business or an entrepreneur seeking a ready-to-operate space with no start-up costs, this turn-key opportunity offers everything needed to begin operating immediately. The 1,700 sq. ft. second-floor spa features four private treatment rooms, a private washroom, a storage area, and a bright open-concept retail space with vaulted ceilings. All existing furniture and equipment are included at no additional cost, including manicure and pedicure stations, massage tables, and aesthetics equipment. A cozy client lounge area and private outdoor patio provide a relaxing atmosphere, while ample free on-site parking ensures convenience for guests. Set within a tranquil country estate just minutes from the city, the location also offers access to a charming café and day spa on the ground floor, where clients can enjoy food and refreshments before or after their treatments. The sublease runs until the end of 2028 with an option to extend, at a monthly rent of $10,000 inclusive of utilities and operating costs, plus HST. This is a rare and truly turn-key spa opportunity in one of Ottawa's most picturesque and desirable settings. (id:27476)

Property Highlights

MLS® Number
X12484328
Type
Retail
Community Name
8006 - Rideau Twp W of Hwy 16 North of Reg Rd 6
Land Size
622 x 691 FT

Building

Square Footage
1700 sqft
Fireplace Present
No
Basement Type
Basement Features
Building Heating Type
Forced air
Heating Fuel
Natural gas
Building Cooling Type
Fully air conditioned

Location

Learn more about this property
Listing provided by:
ROYAL LEPAGE INTEGRITY REALTY
MLS® number:
X12484328
Agent:
Mitch Gauzas
*Indicates required field
Name is required
Email is required
Please enter a valid phone number (e.g., 416-111-1111).