10 - 293 Aquaview Drive, Ottawa, Ontario K4A 0B6

Listed for:
$417,500
2 beds
3 baths
Listed 51 days ago
Row / Townhouse for rent: 10 - 293 Aquaview Drive, Ottawa, Ontario K4A 0B6

View all 37 photos

Learn more about this property
Listing provided by:
REAL BROKER ONTARIO LTD.
MLS® number:
X12535190
Agent:
Christine Bussieres
*Indicates required field
Name is required
Email is required
Please enter a valid phone number (e.g., 416-111-1111).

About

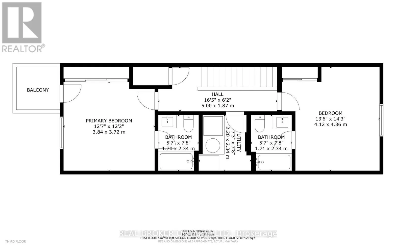
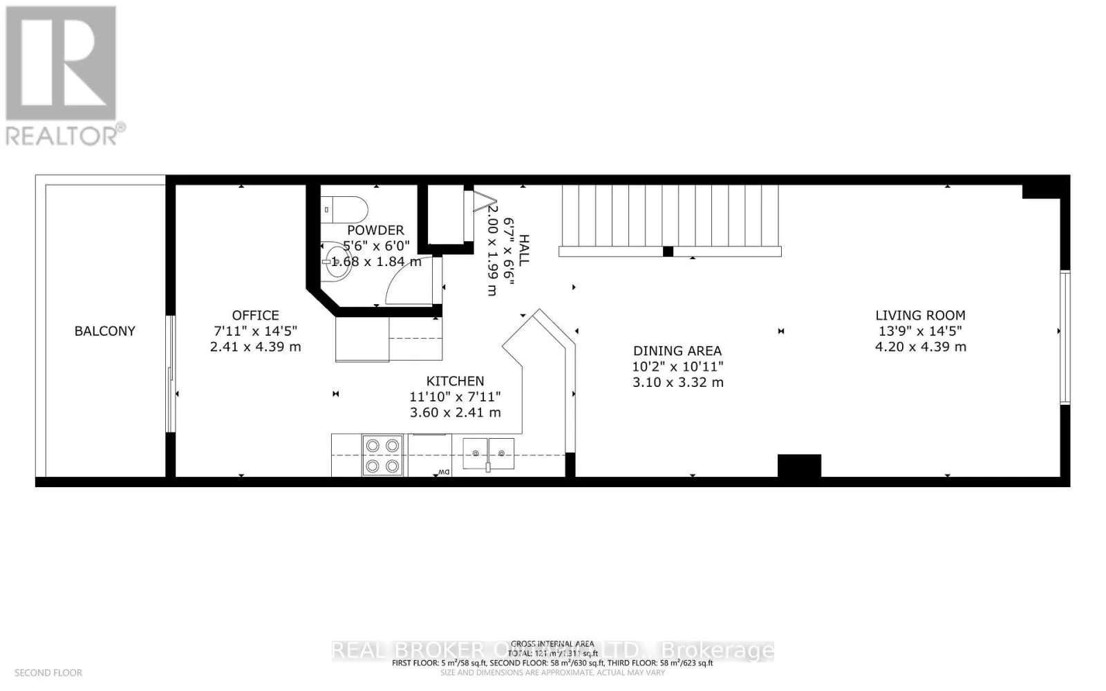
Cross Streets: Louis Toscano Drive. ** Directions: 10th Line Road to Brian Coburn Drive to Aquaview Drive. Immaculate 2-bedroom upper unit condominium with park views!! Welcome to this beautifully maintained 2-bedroom, 2-bathroom upper-level stacked condo in move-in ready condition. This home offers an inviting open-concept layout with a bright and airy feel throughout. Just off the kitchen, a cozy nook provides the perfect space for a home office or reading corner. Enjoy wonderful views overlooking a lovely park complete with play structures - an ideal setting for young families or those who appreciate a tranquil green space. The location cannot be beat - just steps to shopping, restaurants, bars, groceries, and convenient transportation options. Presented with top-quality finishes and attention to detail, this home will impress even your fussiest clients. Truly a must-see! Taxes (2025) $2895, heating $50/month, hydro $90/month, water & sewer $50/month Status Certificate ordered - parking number 20. (id:27476)

Property Highlights

MLS® Number
X12535190
Type
Single Family
Community Name
1118 - Avalon East
Maintenance Fee
241.61
Ownership Type
Condominium/Strata
Parking Space Total
1

Building

Building Type
Row / Townhouse
Storeys
2.00
Square Footage
1200 - 1399 sqft
Bathrooms Total
3
Bedrooms Above Ground
2
Bedrooms Total
2
Exterior Finish
Brick
Fireplace Present
No
Basement Type
None
Basement Features
Building Heating Type
Forced air
Heating Fuel
Natural gas
Building Cooling Type
Central air conditioning

Location