450 Tremblay Road, Ottawa, Ontario K1G 0C9

Listed for:
$825,000
4 beds
2 baths
Listed 27 days ago
Duplex for rent: 450 Tremblay Road, Ottawa, Ontario K1G 0C9

View all 17 photos

Learn more about this property
Listing provided by:
COLDWELL BANKER FIRST OTTAWA REALTY
MLS® number:
X12600192
Agent:
Raymond Chin
*Indicates required field
Name is required
Email is required
Please enter a valid phone number (e.g., 416-111-1111).

About

Cross Streets: St Laurent Blvd & Tremblay. ** Directions: 450 TREMBLAY RD, OTTAWA ON K1G 0C9. Permit ready and ready to build! A rare corner lot offering exceptional potential in a highly sought-after location. With severance already in place to build legal semi-detachedduplexes, this property presents an outstanding opportunity for builders, developers, or investors looking to capitalize on Ottawa's growing urbanmarket.This property is ideally situated steps from the Train Yards, offering access to a wide array of retail shops, restaurants, and services.Commuters will appreciate being within walking distance to the LRT, St Laurent shopping center, and just a short drive to downtown Ottawa,Costco, and Ottawa University, ensuring convenience and connectivity to all parts of the city.Included with the listing are survey, grading plan,and floorplans, providing a head start on your next project. The corner lot location enhances design flexibility, offering multiple frontages andexcellent exposure.Whether you're looking to build for resale, rental income, or long-term investment, 450 Tremblay Road delivers the ideal blendof location, infrastructure, and development readiness.Don't miss this rare opportunity in one of Ottawa's most accessible and amenity-rich neighbourhoods! R3 U Zoning. (id:27476)

Property Highlights

MLS® Number
X12600192
Type
Multi-family
Community Name
3601 - Eastway Gardens/Industrial Park
Land Size
60 x 99 FT
Parking Space Total
2

Building

Building Type
Duplex
Storeys
1.00
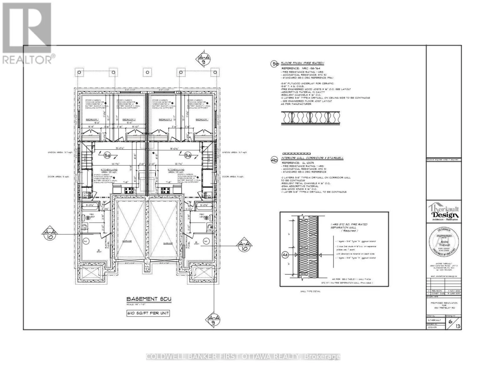
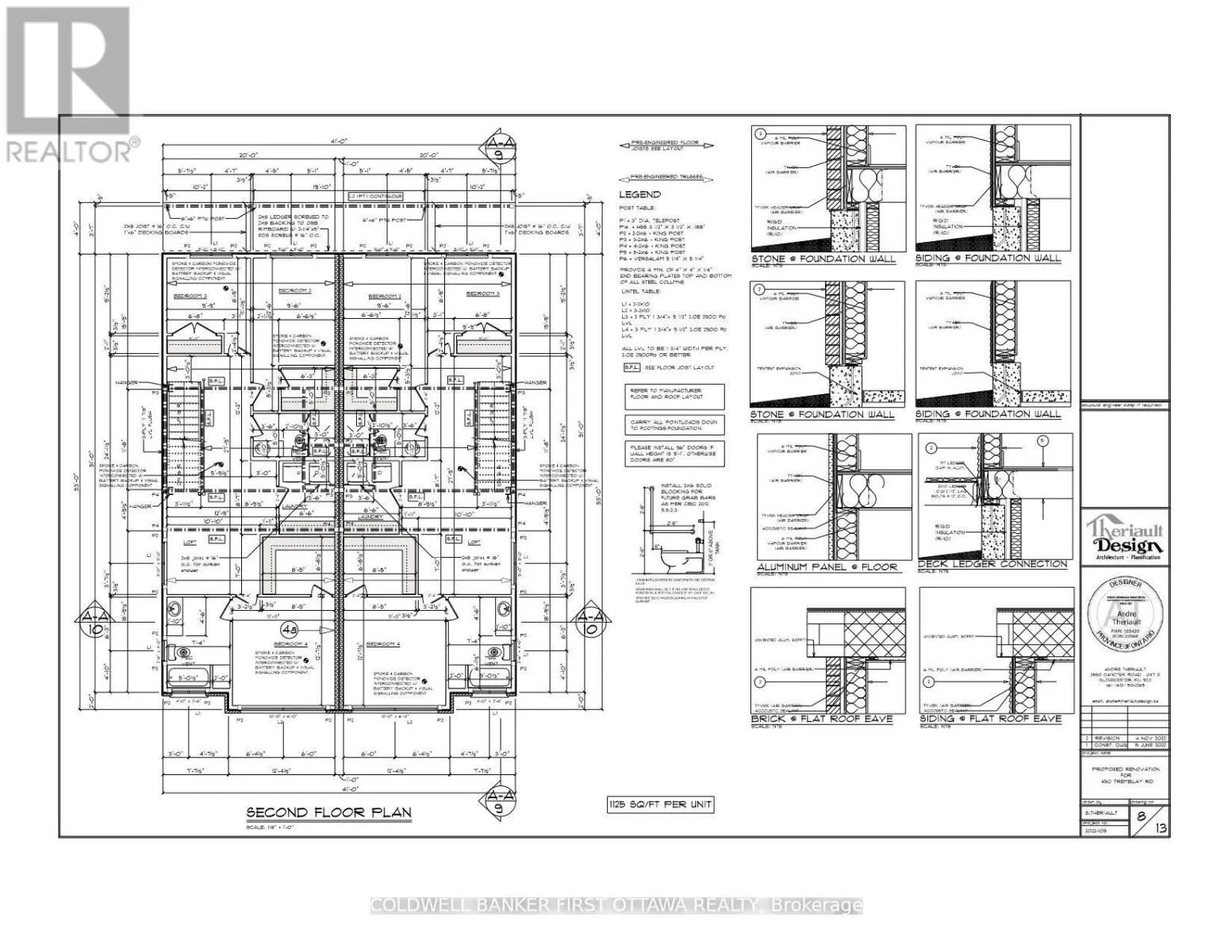
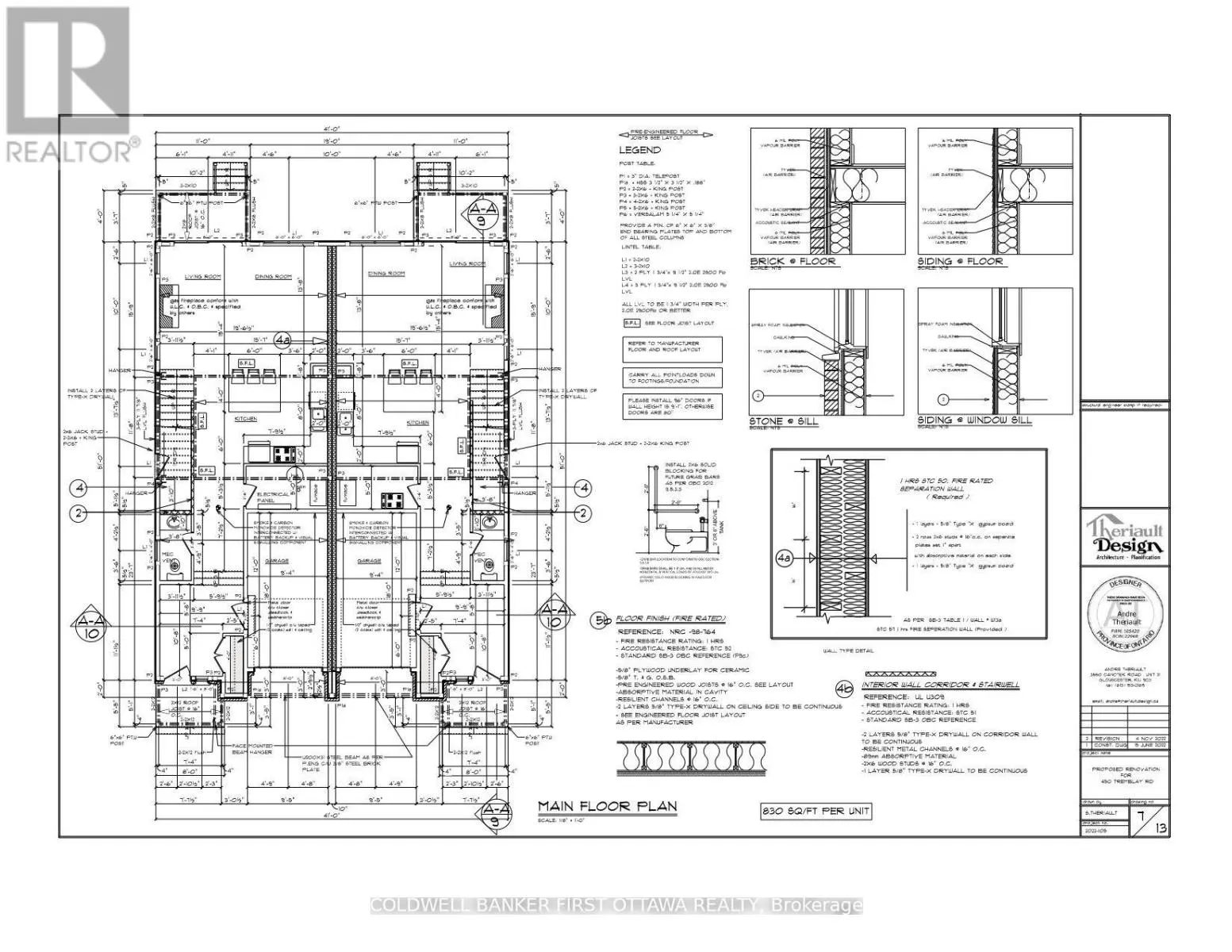
Square Footage
700 - 1100 sqft
Bathrooms Total
2
Bedrooms Above Ground
2
Bedrooms Total
4
Amenities
Fireplace(s)
Exterior Finish
Brick, Stone
Fireplace Present
Yes
Basement Type
N/A (Finished), N/A
Basement Features
Separate entrance
Building Heating Type
Forced air
Heating Fuel
Natural gas
Building Cooling Type
Central air conditioning

Utilities

Water
Municipal water
Utility Sewer
Sanitary sewer

Room Layout

Bathroom
Basement
1.91 m x 1.32 m
Laundry room
Basement
3.12 m x 3.68 m
Living room
Basement
4.5 m x 3.23 m
Kitchen
Basement
3.68 m x 3.23 m
Bedroom 3
Basement
3 m x 3.68 m
Bedroom 4
Basement
4.29 m x 2.92 m
Living room
Ground level
4.67 m x 4.62 m
Kitchen
Ground level
5.48 m x 4.14 m
Dining room
Ground level
3.98 m x 2.38 m
Primary Bedroom
Ground level
4.69 m x 3.37 m
Bedroom 2
Ground level
3.65 m x 2.74 m
Bathroom
Ground level
2.74 m x 2.13 m

Location