2606b Cleroux Crescent, Ottawa, Ontario K1W 1B5

Listed for:
$2,100
2 beds
1 baths
Listed 40 days ago
House for rent: 2606b Cleroux Crescent, Ottawa, Ontario K1W 1B5

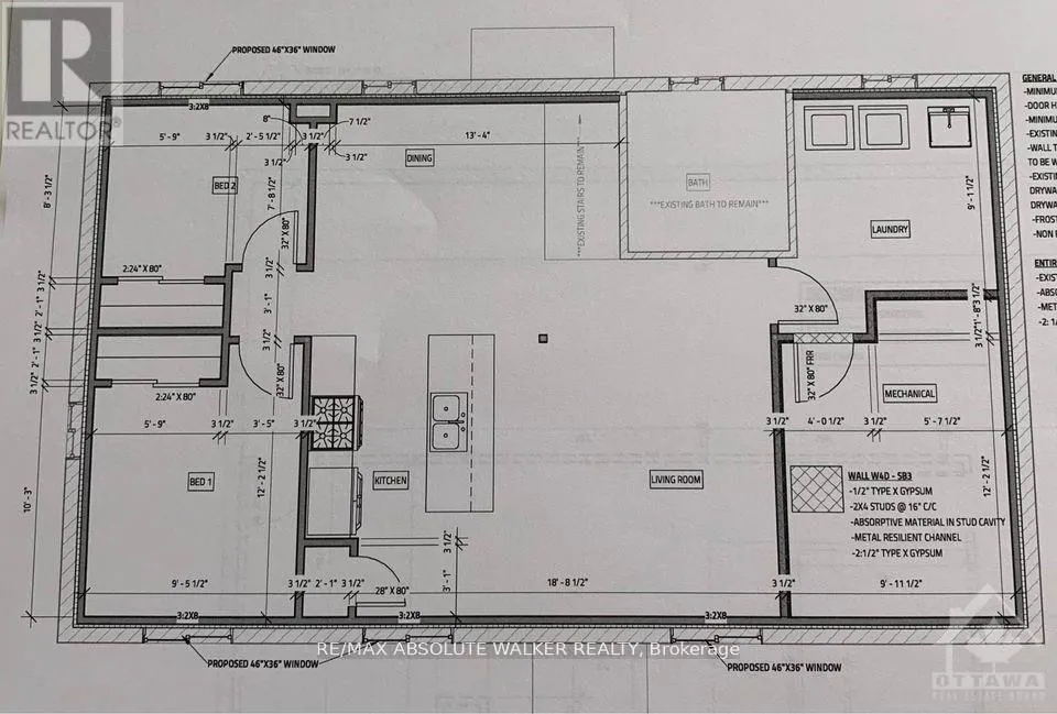
View all 17 photos

About

Innes to Cleroux LEGAL 2 BEDROOM LOWER LEVEL APARTMENT IN BLACKBURN HAMLET. Perfect for a professional couple, this beautifully finished apartment sits on an impressive 222-ft deep lot in the heart of Blackburn Hamlet. Enjoy a sun-filled, open-concept layout with high-end finishes throughout, including a stunning 8-foot kitchen island, newer appliances, and a modern 3-piece bathroom. Convenience is built in with a separate laundry room featuring an additional sink, newer washer and dryer, and plenty of storage. Extra windows have been added to enhance natural light, making the space feel bright and inviting. Step outside to a private backyard shared with the upper unit tenant. The unit includes a dedicated driveway parking area that can accommodate two cars, with ample street parking available. Tenant pays hydro. Landlord covers water, snow removal from the driveway, and grass cutting. If you love a quiet, nature-focused lifestyle, this location is unbeatable. Just a short walk to the grocery store, coffee shop, banks, parks, and more. All this, with only a minutes-long drive to downtown Ottawa. (id:27476)

Property Highlights

MLS® Number
X12631314
Type
Single Family
Community Name
2303 - Blackburn Hamlet (South)
Ownership Type
Freehold
Land Size
65 x 222 FT ; 0
Parking Space Total
2

Building

Building Type
House
Storeys
1.00
Square Footage
1100 - 1500 sqft
Bathrooms Total
1
Bedrooms Total
2
Amenities
Public Transit, Park
Exterior Finish
Brick
Fireplace Present
No
Basement Type
Full (Finished)
Basement Features
Building Heating Type
Baseboard heaters
Heating Fuel
Electric
Building Cooling Type
None

Utilities

Water
Municipal water
Utility Sewer
Sanitary sewer

Room Layout

Living room
Lower level
4.08 m x 3.83 m
Dining room
Lower level
2.87 m x 2.43 m
Kitchen
Lower level
3.83 m x 2.26 m
Primary Bedroom
Lower level
3.04 m x 2.81 m
Bedroom
Lower level
3.22 m x 2.26 m
Laundry room
Lower level
3.12 m x 2.94 m

Location

Learn more about this property
Listing provided by:
RE/MAX ABSOLUTE WALKER REALTY
MLS® number:
X12631314
Agent:
Sue Fox
*Indicates required field
Name is required
Email is required
Please enter a valid phone number (e.g., 416-111-1111).