3961 Kelly Farm Drive, Ottawa, Ontario K1T 0R7

Listed for:
$2,600
3 beds
4 baths
Listed 22 days ago
Row / Townhouse for rent: 3961 Kelly Farm Drive, Ottawa, Ontario K1T 0R7

View all 33 photos

Learn more about this property
Listing provided by:
FIRST CHOICE REALTY ONTARIO LTD.
MLS® number:
X12638292
Agent:
Marc Blais
*Indicates required field
Name is required
Email is required
Please enter a valid phone number (e.g., 416-111-1111).

About

Cross Streets: Leitrim rd. ** Directions: Leitrim to Kelly Farm. Available as early as January!! Built in 2019, this lovely executive Townhouse, with three spacious bedrooms, 4 bathrooms, fully finished basement with a gas fireplace can be yours now. Walking distance to schools, parks. In a great family oriented neighborhood. Showings will begin Dec 22. (id:27476)

Property Highlights

MLS® Number
X12638292
Type
Single Family
Community Name
2605 - Blossom Park/Kemp Park/Findlay Creek
Ownership Type
Freehold
Parking Space Total
2

Building

Building Type
Row / Townhouse
Storeys
2.00
Square Footage
1500 - 2000 sqft
Bathrooms Total
4
Bedrooms Above Ground
3
Bedrooms Total
3
Exterior Finish
Brick Veneer
Fireplace Present
Yes
Basement Type
N/A (Finished)
Basement Features
Building Heating Type
Forced air
Heating Fuel
Natural gas
Building Cooling Type
Central air conditioning

Utilities

Water
Municipal water
Utility Sewer
Sanitary sewer

Room Layout

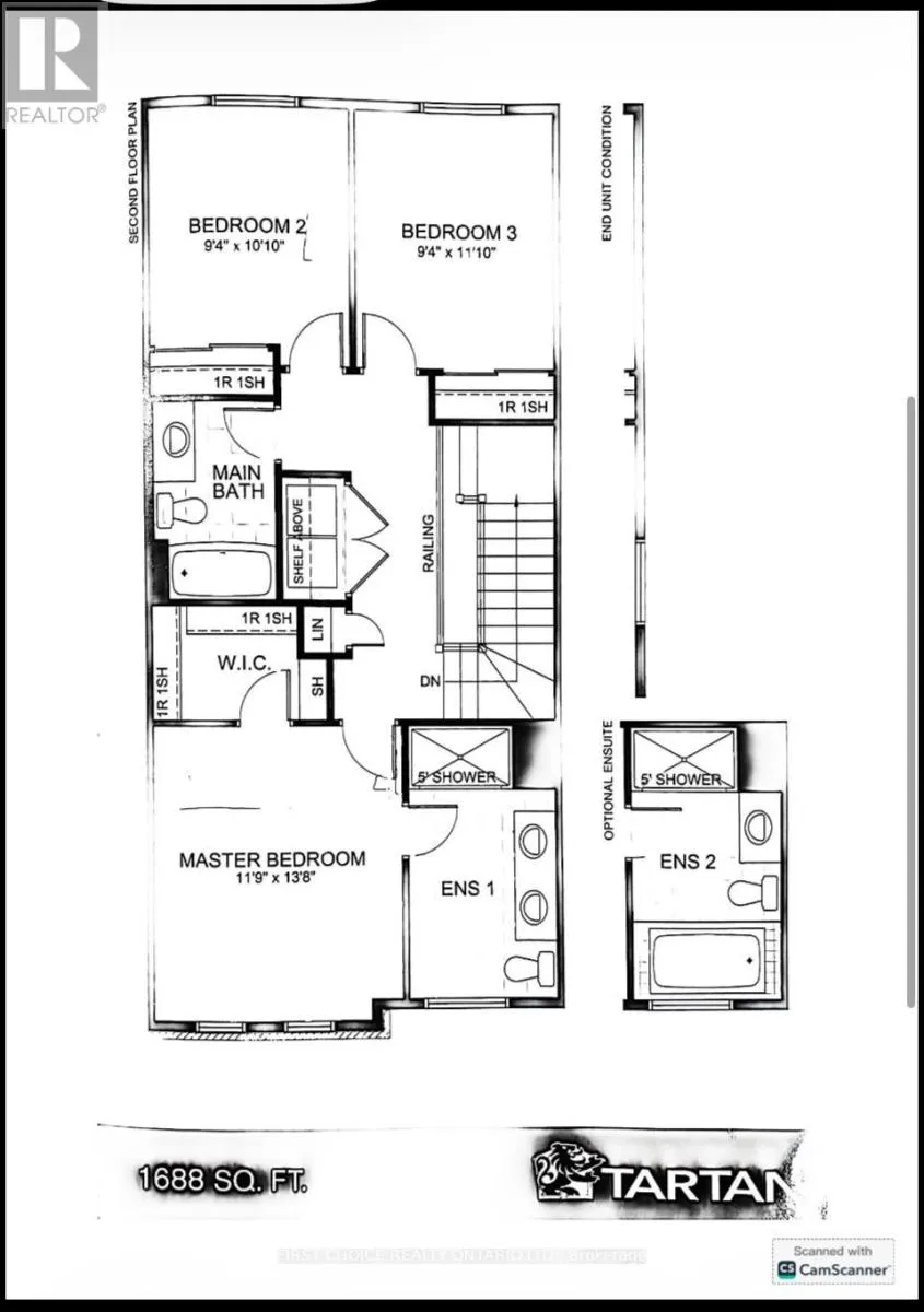
Primary Bedroom
Second level
3 m x 4 m
Bedroom 2
Second level
3.7 m x 3.1 m
Bedroom 3
Second level
3.7 m x 3.1 m
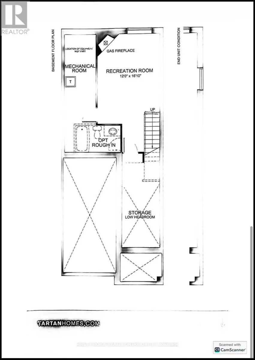
Family room
Basement
5 m x 4 m
Utility room
Basement
3 m x 3 m
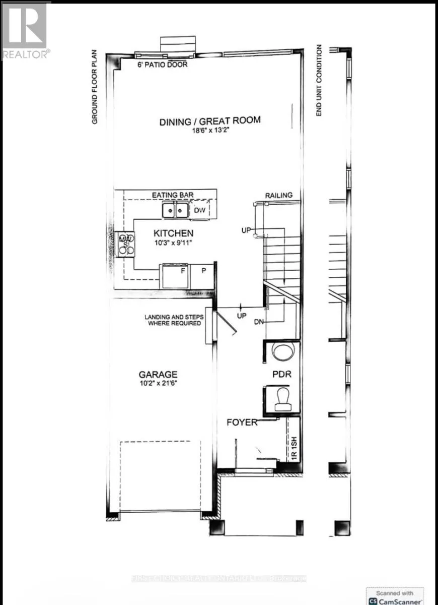
Kitchen
Main level
3.9 m x 3 m
Living room
Main level
6 m x 4 m

Location