185 York Street, Ottawa, Ontario K1N 5T7

Listed for:
$748,962
0 beds
0 baths
Listed 65 days ago
185 York Street, Ottawa, Ontario K1N 5T7

View all 5 photos

About

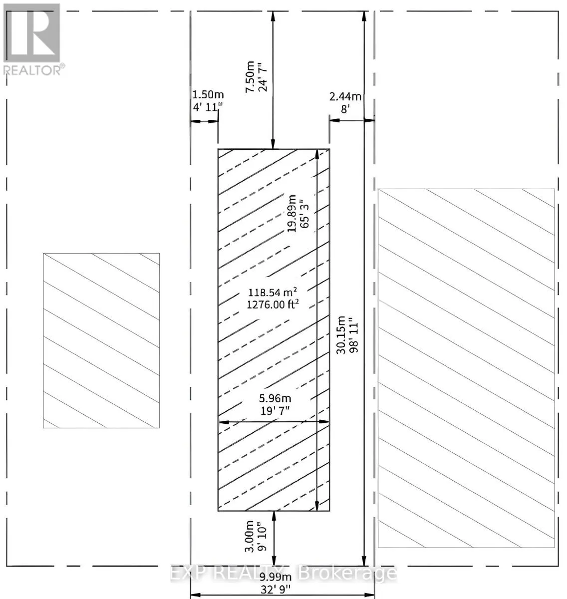
Cross Streets: York between Cumberland and King Edward. ** Directions: King Edward to York. Prime development site in Ottawa's ByWard Market. 185 York Street offers exceptional zoning flexibility with current R5S S77 zoning and future N6B S77 designation under Ottawa's New Zoning By-law. Permitted uses include low-rise, mid-rise, and high-rise apartment dwellings, with the ability to build up to 6 storeys (21.4 m height) by-right. A clean Phase 1 Environmental Site Assessment from 2022 is on file. Previously approved minor variances for lot width and area help streamline development without the need for public consultation. The property measures approximately 33 x 99 feet (3,209 sq ft). Ideally located steps to the Rideau Centre, University of Ottawa, Parliament Hill, O-Train station, and the ByWard Market, this site is well suited for boutique urban residential projects, purpose-built rentals, or luxury multi-unit development. Ground-floor commercial uses are permitted, including retail, office, or café-style activation, making it attractive for mixed-use development. Situated on York Street, slated for transformation into a pedestrian-priority shared promenade between 2025 and 2027 as part of the ByWard Market Public Realm Plan, the property offers strong exposure and long-term upside. No demolition required, providing immediate time and cost savings. Buyers to complete their own due diligence regarding development potential, building code compliance, and site planning. A rare opportunity to secure a premium lot in one of Ottawa's most vibrant downtown locations. (id:27476)

Property Highlights

MLS® Number
X12691852
Type
Vacant Land
Community Name
4001 - Lower Town/Byward Market
Land Size
32.38 x 99.7 FT

Building

Square Footage
3209 sqft
Fireplace Present
No
Basement Type
Basement Features
Building Heating Type
Heating Fuel
Building Cooling Type

Location

Learn more about this property
Listing provided by:
EXP REALTY
MLS® number:
X12691852
Agent:
Edmundo Roa
*Indicates required field
Name is required
Email is required
Please enter a valid phone number (e.g., 416-111-1111).