107 Panisset Avenue, Ottawa, Ontario K2T 0E2

Listed for:
$1,249,000
5 beds
4 baths
Listed 68 days ago
House for rent: 107 Panisset Avenue, Ottawa, Ontario K2T 0E2

View all 50 photos

About

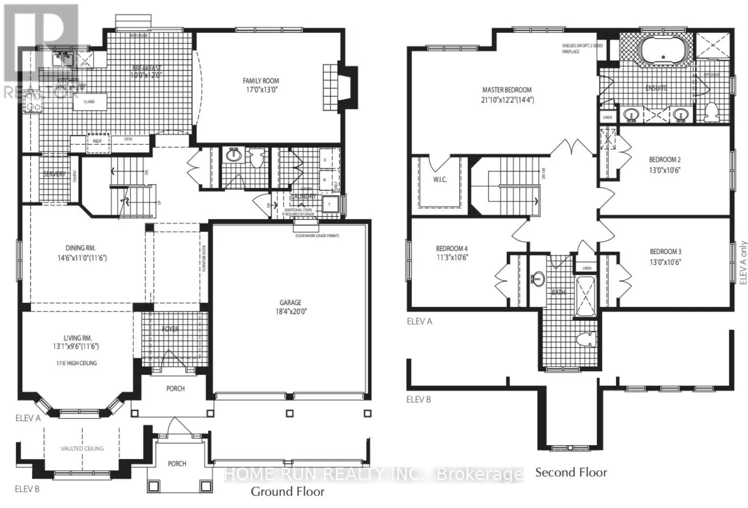
Cross Streets: Keyrock Dr. ** Directions: Exit HWY 417 onto Terry Fox north, right on Kanata Avenue, left at roundabout to Keyrock Dr, left on Laughlin Circle, right onto Panisset Ave, home is on the left. A Rare Offering in Kanata Lakes! Set on a prestigious oversized corner lot in Kanata Lakes, this grand Richcraft 50' Craftsman model is perched on a rocky escarpment within the protected South March Highlands, surrounded by nature and bordering the Kizell Pond wetlands. Offering approximately 2,700 sq. ft. above grade, the home impresses with its striking gables, stone-and-shake exterior, and a welcoming interior highlighted by soaring 11'6" ceilings in the formal living room.Designed for entertaining, the main floor features a formal dining room connected to a chef's kitchen via a dedicated servery and walk-in pantry. The kitchen is a true centerpiece with new quartz countertops, a large island, extensive cabinetry, and high-end stainless steel appliances, flowing seamlessly into a sun-filled 17-foot family room.Upstairs, the 21-foot primary suite offers a private retreat with a lounge area, walk-in closet, and spa-inspired ensuite with dual quartz vanities and a sunken Roman tub. Three additional oversized bedrooms, each accommodating king-sized beds-one featuring a built-in Murphy bed for flexible use-complete the upper level.The finished basement provides excellent versatility, offering a rec room, fifth bedroom, full bathroom, finished storage room, and a cozy wood pellet stove. An additional unfinished area includes extensive shelving, storage, and a dedicated utility room-ideal for organization or future customization.This ENERGY STAR certified home features an off-grid solar system, an independent rainwater system, a full irrigation system and a new 50-year roof (2021).With hiking trails at your doorstep, proximity to Kanata North's High-Tech Park and top schools, and everyday conveniences just minutes away-including Tanger Outlets, Costco, and Home Depot-this home delivers the rare balance of nature, space, and convenience. (id:27476)

Property Highlights

MLS® Number
X12726460
Type
Single Family
Community Name
9007 - Kanata - Kanata Lakes/Heritage Hills
Ownership Type
Freehold
Land Size
57.6 x 102 M ; Irregular lot
Parking Space Total
8

Building

Building Type
House
Storeys
2.00
Square Footage
2500 - 3000 sqft
Bathrooms Total
4
Bedrooms Above Ground
4
Bedrooms Total
5
Exterior Finish
Stone
Fireplace Present
Yes
Basement Type
Full (Finished)
Basement Features
Building Heating Type
Forced air
Heating Fuel
Natural gas
Building Cooling Type
Central air conditioning

Utilities

Water
Municipal water
Power
Generator
Utility Sewer
Sanitary sewer

Room Layout

Primary Bedroom
Second level
6.65 m x 3.71 m
Bedroom 2
Second level
3.96 m x 3.2 m
Bedroom 3
Second level
3.96 m x 3.2 m
Bedroom 4
Second level
3.43 m x 3.2 m
Living room
Ground level
3.99 m x 2.9 m
Dining room
Ground level
4.42 m x 3.35 m
Kitchen
Ground level
3.05 m x 3.66 m
Eating area
Ground level
3.05 m x 3.66 m
Family room
Ground level
5.18 m x 3.96 m

Location

Learn more about this property
Listing provided by:
HOME RUN REALTY INC.
MLS® number:
X12726460
Agent:
Guan Guan
*Indicates required field
Name is required
Email is required
Please enter a valid phone number (e.g., 416-111-1111).