6 - 3785 Canyon Walk Drive, Ottawa, Ontario K1V 2M4

Listed for:
$399,900
2 beds
2 baths
Listed 20 days ago
Apartment for rent: 6 - 3785 Canyon Walk Drive, Ottawa, Ontario K1V 2M4

View all 50 photos

About

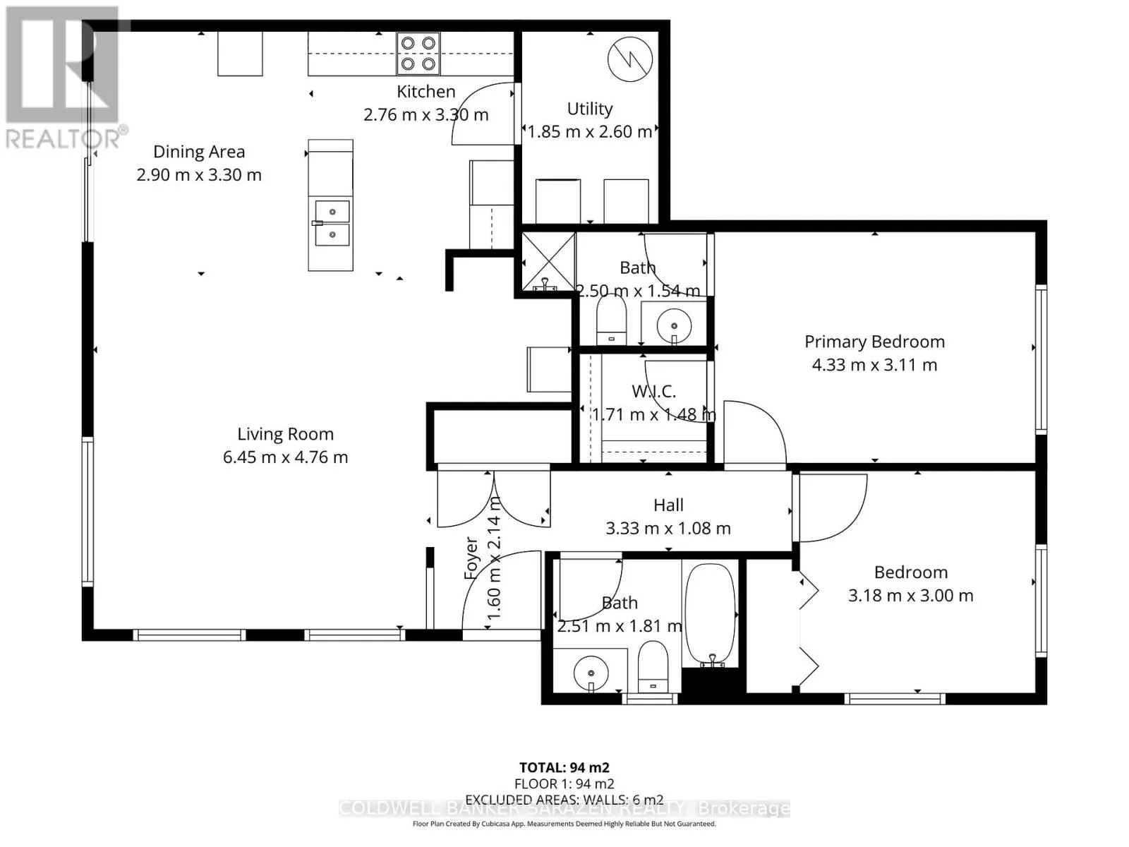
Cross Streets: Canyon Walk Drive & Beryl Private. ** Directions: Cross Vimy Bridge on Earl Armstrong Road Canyon Walk Drive. This spacious, turn-key 2-bedroom, 2-FULL BATH CORNER UNIT features a PRIVATE entrance, TWO PATIOS FOR OUTDOOR ENJOYMENT, & no directly adjacent neighbours. Enjoy carefree condo living with a freehold BUNGALOW VIBE offering the best of both worlds! This ~1135 sq ft (per plans)unit features a breezy open-concept main living space, principal bedroom with 3-PIECE ENSUITE and WALK-IN CLOSET, spacious second bedroom w/ 2 WINDOWS; full family bath. Tasteful fixtures & finishes in a NEUTRAL PALETTE, easy care HARDWOOD & TILE flooring, convenient PARKING AT THE UNIT ENTRANCE, plus visitor parking and BIKE STORAGE also included. Residents value a NEWER COMMUNITY surrounded by all needs & wants, including excellent schools, shops, transit, outdoor recreation, & efficient access to Riverside South, the neighbouring community of Barrhaven (across Vimy Memorial Bridge) & within minutes to the charming village of Manotick. Ideal access to the LRT, busses, schools, playgrounds, golf & the airport. Well suited for busy professionals, first-time buyers, downsizers & snowbirds alike. MOVE-IN READY! Call to view! (id:27476)

Property Highlights

MLS® Number
X12729962
Type
Single Family
Community Name
2602 - Riverside South/Gloucester Glen
Maintenance Fee
400.00
Ownership Type
Condominium/Strata
Parking Space Total
1

Building

Building Type
Apartment
Square Footage
1000 - 1199 sqft
Bathrooms Total
2
Bedrooms Above Ground
2
Bedrooms Total
2
Exterior Finish
Stone, Vinyl siding
Fireplace Present
No
Basement Type
None
Basement Features
Building Heating Type
Forced air
Heating Fuel
Natural gas
Building Cooling Type
Central air conditioning

Location

Learn more about this property
Listing provided by:
COLDWELL BANKER SARAZEN REALTY
MLS® number:
X12729962
Agent:
Vanessa Duplessis
*Indicates required field
Name is required
Email is required
Please enter a valid phone number (e.g., 416-111-1111).