3 Glencoe Street, Ottawa, Ontario K2H 8S5

Listed for:
$419,777
3 beds
2 baths
Listed 17 days ago
Row / Townhouse for rent: 3 Glencoe Street, Ottawa, Ontario K2H 8S5

View all 31 photos

About

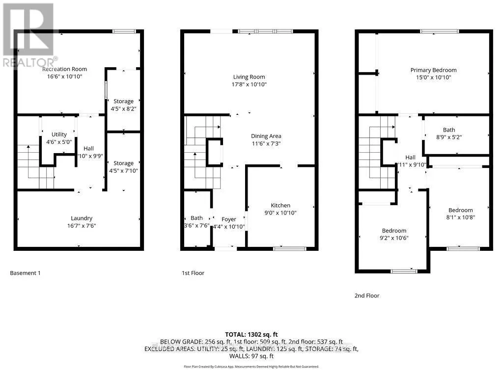
Cross Streets: Southbound on Greenbank Dr. from Baseline Rd. Right onto Bellman Dr. and First Left onto Glencoe St. ** Directions: Southbound on Greenbank Dr. from Baseline Rd. Right onto Bellman Dr. and First Left onto Glencoe St. Welcome to 3 Glencoe, where comfort, charm, and convenience come together in perfect harmony. This bright yet cozy 3-bedroom, 1.5-bathroom condo townhome has been thoughtfully refreshed and is ready to welcome its next chapter, ideal for first-time buyers, savvy investors, or downsizers seeking style and simplicity in one move-in-ready package. From the moment you arrive, the brand-new siding and inviting façade set the tone for what awaits inside. Step through the front door and you're greeted by a touch of urban flair where faux brick feature walls that add warmth and personality, creating an instant sense of home. The kitchen offers generous counter space and a newly installed ceramic tile floor, making it as practical as it is inviting. The open-concept living and dining area flows effortlessly together, filled with natural light, making it a perfect backdrop for morning coffee, dinner with friends, or quiet evenings in. Upstairs, the primary bedroom impresses with hardwood flooring and enough space for a king-size bed, a rare find at this price point. Two additional bedrooms offer versatility, ideal for family, guests, or a home office, all connected by a full bathroom and gleaming hardwood hallway. Downstairs, the finished lower level expands your living options, whether as a cozy family room, a kids' play area, or a home gym. Step outside to your fully fenced backyard, complete with a deck made for entertaining, where barbecues, morning sunshine, and evening unwind sessions await. Perfectly located near parks, schools, public transit, and quick routes to Highways 416 and 417, this home makes every commute or errand a breeze while keeping nature and community close by. With fresh finishes, timeless character, and unbeatable value, 3 Glencoe is more than just a home... it's your next smart move in Ottawa's thriving west end. (id:27476)

Property Highlights

MLS® Number
X12740190
Type
Single Family
Community Name
7605 - Arlington Woods
Maintenance Fee
498.00
Ownership Type
Condominium/Strata
Parking Space Total
1

Building

Building Type
Row / Townhouse
Storeys
2.00
Square Footage
1000 - 1199 sqft
Bathrooms Total
2
Bedrooms Above Ground
3
Bedrooms Total
3
Amenities
Public Transit, Schools
Exterior Finish
Brick
Fireplace Present
No
Basement Type
Full (Finished)
Basement Features
Building Heating Type
Forced air
Heating Fuel
Natural gas
Building Cooling Type
Central air conditioning

Location

Learn more about this property
Listing provided by:
ENGEL & VOLKERS OTTAWA
MLS® number:
X12740190
Agent:
Sean Mcrae
*Indicates required field
Name is required
Email is required
Please enter a valid phone number (e.g., 416-111-1111).