112 Greenfield Avenue, Ottawa, Ontario K1S 5H7

Listed for:
$4,100
2 beds
3 baths
Listed 15 days ago
Row / Townhouse for rent: 112 Greenfield Avenue, Ottawa, Ontario K1S 5H7

View all 28 photos

About

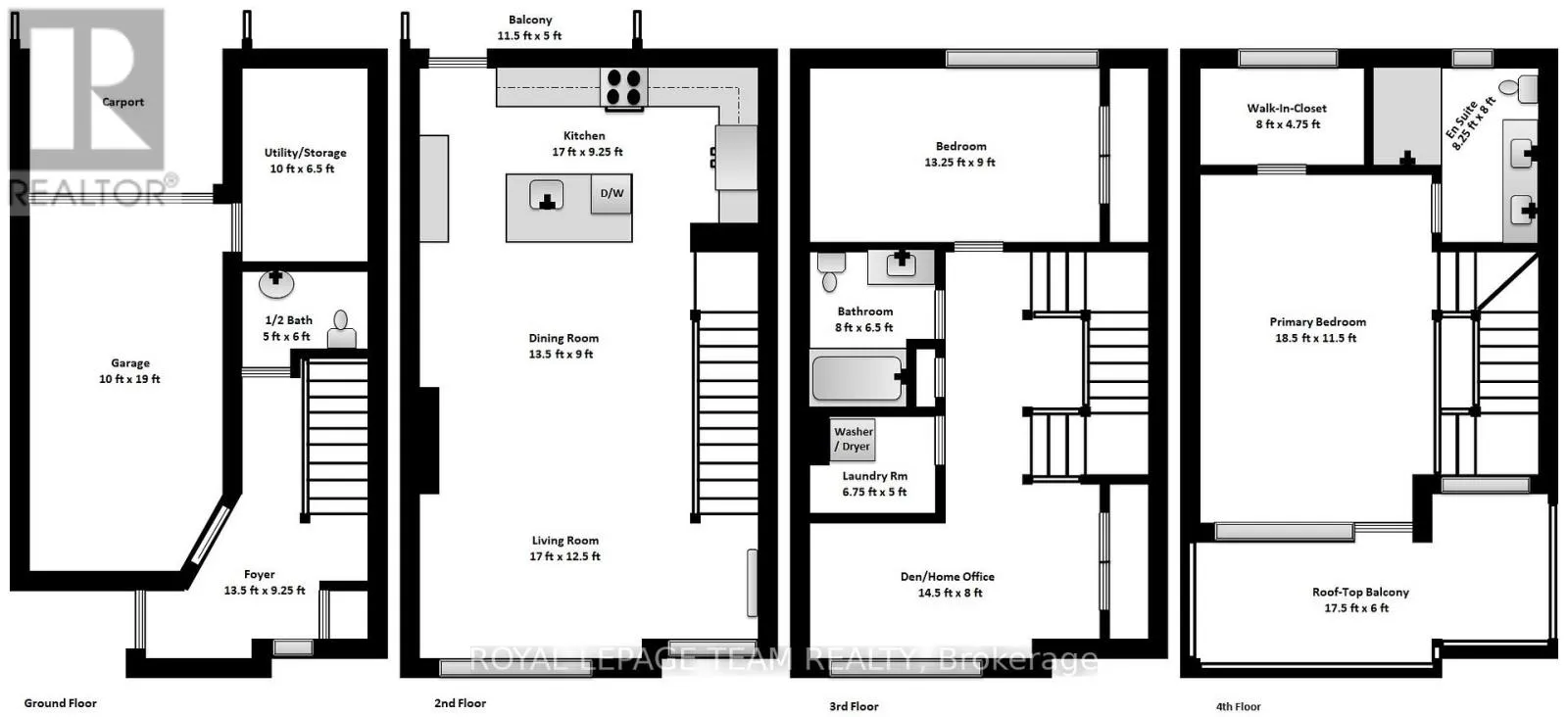
Cross Streets: Main St. ** Directions: Main St north, right on Greenfield Ave. Stunning 4-storey modern FREEHOLD executive row perfectly nestled in beautiful Old Ottawa East. Barry Hobin designed & EQ Homes built - this chic, STYLISH, 1,840 sq ft well-maintained home features 2 bdrs + DEN, 2.5 baths, garage & carport. Deceptively LARGE w/ 2 outdoor TERRACES that expand the living space. Floor-to-ceiling windows, in-floor heating, hardwood floors & main level 9-ft ceilings! OPEN-CONCEPT 2nd flr great room with f/p, kitchen w/ granite counters & over-sized centre island - perfect for entertaining. 3rd flr features bdr, bath, laundry & den - ideal for HOME OFFICE, 4th flr primary bdr retreat boasts en suite, W-I-C & balcony capturing the city skyline. Steps to Rideau Canal walking/bike paths, uOttawa/LRT & Elgin St & Main St amenities & eateries. Close to downtown, Glebe, Lansdowne, Market & Ottawa Hospitals. Available March 1, 2026. Unfurnished. Min 14 month lease. (id:27476)

Property Highlights

MLS® Number
X12742640
Type
Single Family
Community Name
4408 - Ottawa East
Ownership Type
Freehold
Land Size
17.9 FT
Parking Space Total
2

Building

Building Type
Row / Townhouse
Square Footage
1500 - 2000 sqft
Bathrooms Total
3
Bedrooms Above Ground
2
Bedrooms Total
2
Amenities
Fireplace(s)
Exterior Finish
Brick, Stone
Fireplace Present
Yes
Basement Type
None
Basement Features
Building Heating Type
Forced air
Heating Fuel
Natural gas
Building Cooling Type
Central air conditioning, Wall unit, Air exchanger

Utilities

Water
Municipal water
Utility Sewer
Sanitary sewer

Room Layout

Living room
Second level
5.18 m x 3.81 m
Dining room
Second level
4.11 m x 2.74 m
Kitchen
Second level
5.18 m x 2.81 m
Bedroom
Third level
4.04 m x 2.74 m
Den
Third level
4.42 m x 2.44 m
Bathroom
Third level
2.44 m x 1.98 m
Laundry room
Third level
2.05 m x 1.52 m
Primary Bedroom
Upper Level
5.64 m x 3.5 m
Bathroom
Upper Level
2.51 m x 2.44 m
Other
Upper Level
2.44 m x 1.45 m
Foyer
Ground level
4.11 m x 2.81 m
Bathroom
Ground level
1.83 m x 1.52 m
Utility room
Ground level
3.04 m x 1.98 m

Location

Learn more about this property
Listing provided by:
ROYAL LEPAGE TEAM REALTY
MLS® number:
X12742640
Agent:
Eric Ritterrath
*Indicates required field
Name is required
Email is required
Please enter a valid phone number (e.g., 416-111-1111).