2061 Prince Of Wales Drive, Ottawa, Ontario K2E 7A4

Listed for:
$1,149,900
3 beds
3 baths
Listed 12 days ago
House for rent: 2061 Prince Of Wales Drive, Ottawa, Ontario K2E 7A4

View all 35 photos

About

Cross Streets: Prince of Wales & Rideau Heights Lane. ** Directions: From Hunt Club and Prince of Wales head North on Prince of Wales, Property will be on your Right. Location! Location! Location! Waterfront on the Rideau River. Only minutes to downtown Ottawa. Why drive to Mooney's bay when you can take your boat instead? 7 minutes to the Ottawa Airport, 13 minutes to Westboro, 17 minutes to Parliament. Golf close by. Choose to either renovate the existing 3 bedroom home complete with hardwood flooring throughout, custom kitchen with granite counters and under cabinet lighting. Take in the view on your interlock patio. Custom shed with 4@330w solar panels act as back up power if there's a power outage. Or - Let your imagination run wild and BUILD your new DREAM home! Property is serviced with Hydro, Municipal Water, Natural Gas and Bell/Rogers. Currently on septic. Book your showing today! Room measurements are approximate. 24hrs irrevocable on all offers as per form 244. (id:27476)

Property Highlights

MLS® Number
X12754800
Type
Single Family
Community Name
7404 - Rideau Heights/Rideau River
Ownership Type
Freehold
Land Size
30 x 263 FT
Parking Space Total
12

Building

Building Type
House
Storeys
2.00
Square Footage
1500 - 2000 sqft
Bathrooms Total
3
Bedrooms Above Ground
3
Bedrooms Total
3
Exterior Finish
Brick Facing, Wood
Fireplace Present
Yes
Basement Type
Full
Basement Features
Building Heating Type
Forced air, Not known
Heating Fuel
Natural gas, Wood
Building Cooling Type
Central air conditioning

Utilities

Water
Municipal water
Utility Sewer
Septic System

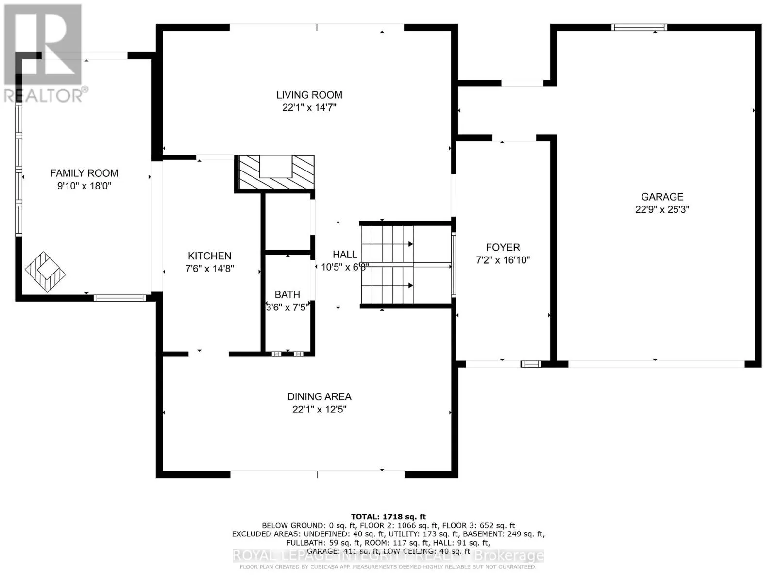
Room Layout

Primary Bedroom
Second level
4.98 m x 3.38 m
Bedroom 2
Second level
3.3 m x 3.05 m
Bedroom 3
Second level
3.33 m x 3.05 m
Other
Basement
2.95 m x 3.81 m
Utility room
Basement
7.01 m x 3.45 m
Foyer
Main level
4.88 m x 2.13 m
Living room
Main level
6.73 m x 4.45 m
Dining room
Main level
6.73 m x 3.78 m
Kitchen
Main level
4.47 m x 2.29 m
Family room
Main level
5.49 m x 3 m

Location

Learn more about this property
Listing provided by:
ROYAL LEPAGE INTEGRITY REALTY
MLS® number:
X12754800
Agent:
Brent Bennett
*Indicates required field
Name is required
Email is required
Please enter a valid phone number (e.g., 416-111-1111).

Street Spotlight - For sale