83 Saddle Crescent, Ottawa, Ontario K1G 5L3

Listed for:
$775,000
3 beds
4 baths
Listed 3 days ago
House for rent: 83 Saddle Crescent, Ottawa, Ontario K1G 5L3

View all 38 photos

About

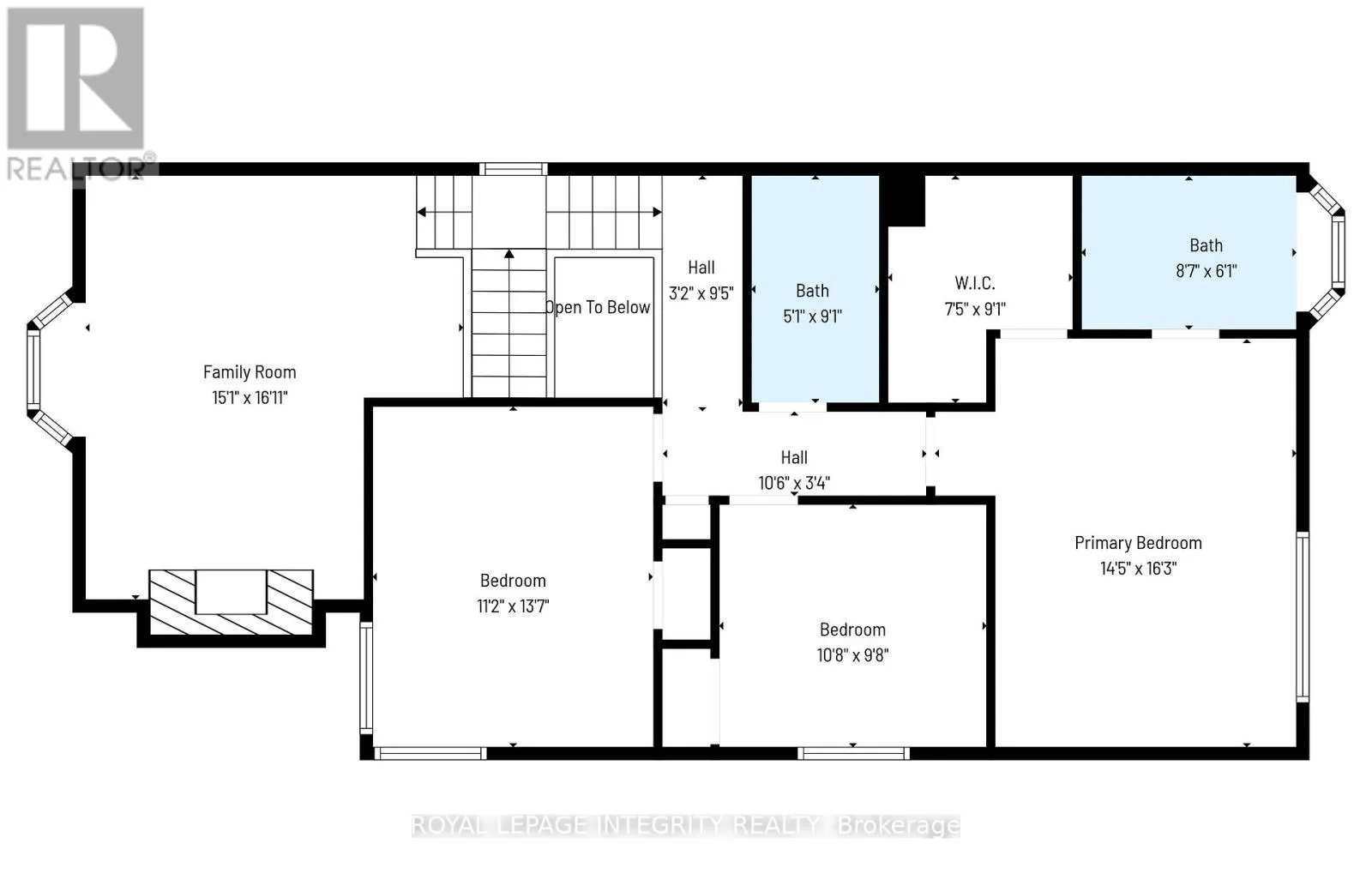
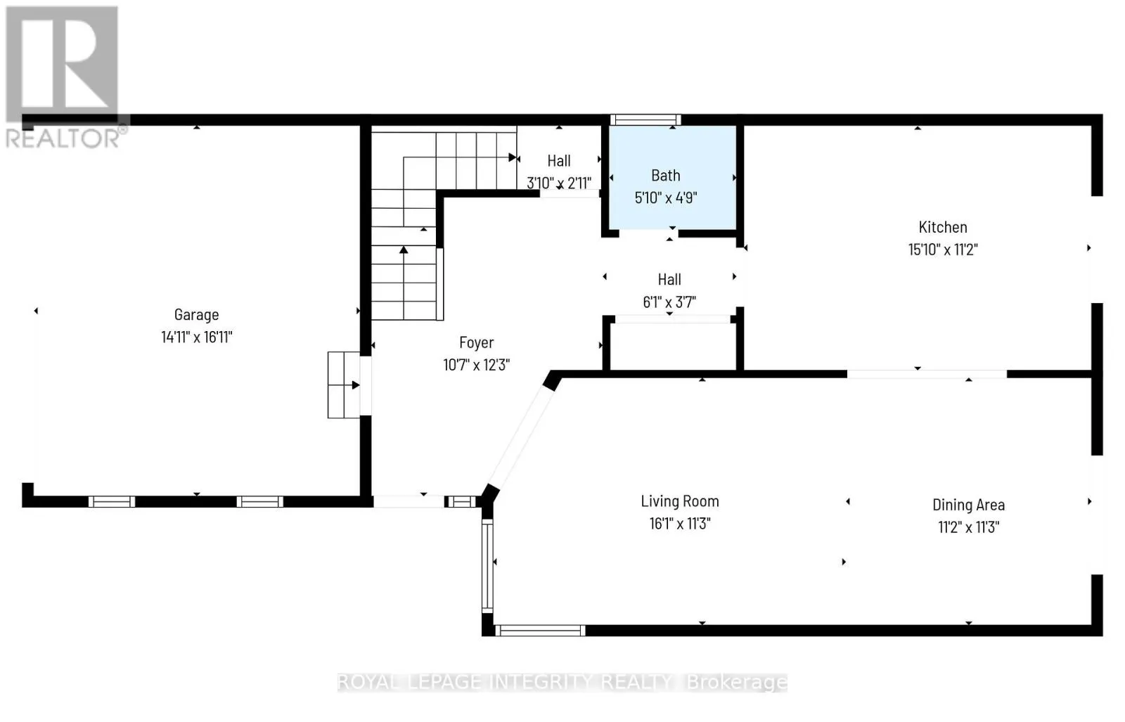
Cross Streets: Esson/ Saddle Crescent. ** Directions: Hunt Club to Esson to Saddle Crescent. Welcome to 83 Saddle Cres. a FULLY RENOVATED 3-bedroom, 3.5-bath detached home in the highly desirable Hunt Club Park neighborhood! This beautiful property combines modern finishes with functional design, offering a perfect blend of comfort and style. Step inside to discover an open-concept living and dining area, ideal for entertaining and everyday living. The brand-new kitchen features quartz countertops, stainless steel appliances, sleek cabinetry, and ample prep space truly the heart of the home. The second level showcases a sunken family room with a wood fireplace, perfect for relaxing or movie nights. The spacious primary bedroom boasts a walk-in closet and an ensuite bath with glass shower. Two additional bright bedrooms and a modern full bathroom complete the upper level. The fully finished basement offers even more living space, including a full bathroom and a versatile bonus room ideal for a home office, gym, or guest room. Enjoy the outdoors in the fully fenced, deep backyard perfect for children, pets, and summer gatherings. Carpet-free throughout, this home is move-in ready. Located in a family-friendly community, close to parks, schools, shopping, and transit, this is a home you wont want to miss! (id:27476)

Property Highlights

MLS® Number
X12785584
Type
Single Family
Community Name
3808 - Hunt Club Park
Ownership Type
Freehold
Land Size
35.7 x 143.1 FT
Parking Space Total
6

Building

Building Type
House
Storeys
2.00
Square Footage
1500 - 2000 sqft
Bathrooms Total
4
Bedrooms Above Ground
3
Bedrooms Total
3
Amenities
Fireplace(s) Public Transit, Schools
Exterior Finish
Brick, Vinyl siding
Fireplace Present
Yes
Basement Type
Full (Finished)
Basement Features
Building Heating Type
Forced air
Heating Fuel
Natural gas
Building Cooling Type
Central air conditioning

Utilities

Water
Municipal water
Utility Sewer
Sanitary sewer

Location

Learn more about this property
Listing provided by:
ROYAL LEPAGE INTEGRITY REALTY
MLS® number:
X12785584
Agent:
Moustafa Elgendy
*Indicates required field
Name is required
Email is required
Please enter a valid phone number (e.g., 416-111-1111).