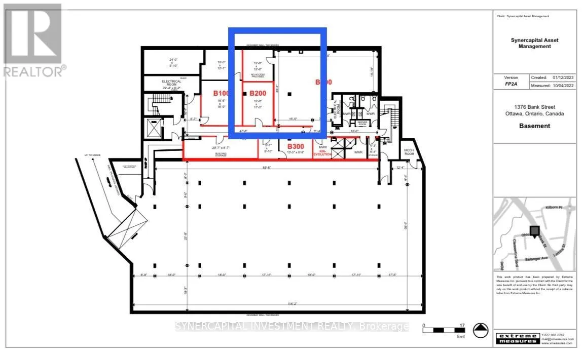
B500 - 1376 Bank Street, Ottawa, Ontario K1H 7Y3

Listed for:
$2,300
0 beds
0 baths
Listed 75 days ago
Offices for rent: B500 - 1376 Bank Street, Ottawa, Ontario K1H 7Y3

View all 10 photos

About

Cross Streets: Bank & Ohio. ** Directions: South from Billings Bridge to Ohio; right on Ohio. Approx 900 rentable square feet of turn-key office space in basement of well-managed office building! Currently divided into 3 large rooms, and can be divided further. Landlord can provide/organize desired fit-up at cost, pro-rated over the lease term! Space is currently used as physiotherapy/osteopathy/RMT wellness practitioners but has wide variety of applications.See marked-up floorplans in tandem with the following description: the proposed new space crops some of the (current) B400 open floor plan and closes it off for owner personal use; B200 is absorbed, and doors opened between spaces as tenant requires. There is some flexibility re: placement of walls; possible inclusion of all or some gym equipment in the rental. Equipment is not for sale unless tenant is leasing space. All utilities and operating expenses included in the rent - fully Gross Lease! Escalations of $50/mo/year. Excellent location close to 417, Riverside Drive,Bank Street, and Billings Bridge shopping plaza. Building is home to professional tenants such as law offices, mental wellness practitioners, not-for-profit, technology, etc. Video walk through is available upon request. (id:27476)

Property Highlights

MLS® Number
X12790926
Type
Office
Community Name
4601 - Billings Bridge
Land Size
142 x 70 FT

Building

Building Type
Offices
Square Footage
895 sqft
Fireplace Present
No
Basement Type
Basement Features
Building Heating Type
Baseboard heaters
Heating Fuel
Building Cooling Type
Fully air conditioned

Utilities

Water
Municipal water

Location

Learn more about this property
Listing provided by:
SYNERCAPITAL INVESTMENT REALTY
MLS® number:
X12790926
Agent:
Sarah Kirwan
*Indicates required field
Name is required
Email is required
Please enter a valid phone number (e.g., 416-111-1111).

Street Spotlight - For lease