5505 Osgoode Main Street, Ottawa, Ontario K0A 2W0

Listed for:
$524,800
2 beds
2 baths
Listed 17 days ago
Duplex for rent: 5505 Osgoode Main Street, Ottawa, Ontario K0A 2W0

View all 38 photos

About

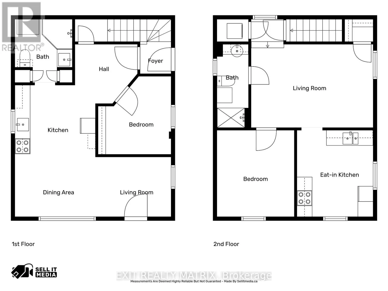
Cross Streets: Osgoode Main & Nixon Dr. ** Directions: Roger Stevens Dr., turn onto Nixon Dr., left on Osgoode Main. Own a true piece of Osgoode history with this charming century duplex, filled with character, warmth, and timeless appeal. Ideally located near the local library, schools, everyday amenities, and within walking distance to a local coffee shop and scenic walking trails, this unique property offers the best of small-town living. Enjoy being approximately 1 km from the river with a convenient boat launch - perfect for outdoor enthusiasts. Blending historic charm with modern-day convenience, this property is ideal for multi-generational living, rental income, or owner-occupancy with added revenue potential. Zoned Village Mixed-Use, it offers a wide range of possibilities, adding incredible flexibility and future upside. Dwelling 1 is currently rented at $1,500/month with an excellent tenant, with a lease secured until December 31, 2026, providing immediate and stable income. This unit features an inviting foyer, abundant natural light, an open-concept kitchen, dining, and cozy living space, along with a comfortable bedroom and well-appointed 3-piece bathroom. Dwelling 2 is bright and welcoming, offering a functional kitchen with an eating area, comfortable living room, spacious bedroom, and 3-piece bathroom. It is currently owner-occupied and will be delivered vacant upon possession, making it ideal for a buyer intending to occupy the unit or for securing a new tenant. Step outside to a peaceful backyard retreat where you can relax and unwind. A rare opportunity to own a historic gem in the heart of the community, surrounded by lifestyle, convenience, and exceptional potential. (id:27476)

Property Highlights

MLS® Number
X12812576
Type
Multi-family
Community Name
1603 - Osgoode
Land Size
37 x 264 FT
Parking Space Total
4

Building

Building Type
Duplex
Storeys
2.00
Square Footage
1100 - 1500 sqft
Bathrooms Total
2
Bedrooms Above Ground
2
Bedrooms Total
2
Amenities
Place of Worship, Schools
Exterior Finish
Brick
Fireplace Present
No
Basement Type
Full (Unfinished)
Basement Features
Building Heating Type
Forced air
Heating Fuel
Natural gas
Building Cooling Type
Central air conditioning

Utilities

Water
Sand point
Utility Sewer
Septic System

Room Layout

Kitchen
Second level
3 m x 3.41 m
Living room
Second level
4.81 m x 4.27 m
Bedroom
Second level
3.05 m x 3.41 m
Bathroom
Second level
1.24 m x 3.29 m
Foyer
Main level
1.22 m x 1.26 m
Kitchen
Main level
3.17 m x 2.83 m
Dining room
Main level
3.44 m x 2.35 m
Living room
Main level
2.71 m x 2.36 m
Bedroom
Main level
2.88 m x 3.06 m
Bathroom
Main level
2.26 m x 2.49 m

Location

Learn more about this property
Listing provided by:
EXIT REALTY MATRIX
MLS® number:
X12812576
Agent:
Maggie Tessier
*Indicates required field
Name is required
Email is required
Please enter a valid phone number (e.g., 416-111-1111).