3489 Galetta Side Road, Ottawa, Ontario K7S 3G7

Listed for:
$1,379,900
5 beds
4 baths
Listed 35 days ago
3489 Galetta Side Road, Ottawa, Ontario K7S 3G7

View all 47 photos

About

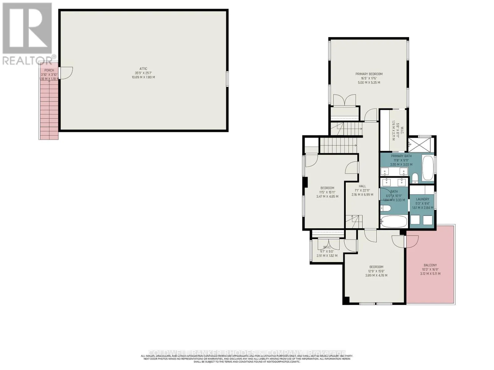
Cross Streets: Machardy Road. ** Directions: 417 to Exit 169 (Kinburn Side Rd/Regional Rd 20). First Left/North on Rt 17. Right onto Galetta Side Rd. Property at the north east corner of Machardy Rd. A once in a lifetime opportunity to steward this historic property into the next generation! Worthy of an interior design magazine, this circa 1897 limestone farm home has been extensively modernized & meticulously restored by local master craftsman, Maple Leaf Custom Homes. This incredible property is situated on almost 20 acres & lends itself to a variety of uses in its agriculture (AG) zoning. It is currently operated as a grand residence with an equestrian hobby farm. The main house features 5 bedrooms & 4 bathrooms over 3 storeys retaining the original refinished hardwood flooring and soaring ceilings. The main level features a spacious combo living/dining room with Napolean gas stove. A showstopping "country" kitchen includes marble countertops w/a central island, huge farm style sink, 8 burner propane gas stove w/custom hood fan built-in dishwasher and separate pantry. The family room features a wet bar and wine fridge with access to the back patio. Large main floor bedroom could be additional family room or well suited for a professional home office with adjacent direct entrance. Fully renovated three piece washroom also on the main level. A modern addition adds a foyer/mudroom with access to the attached double garage and main floor gym. Two staircases (front and back) lead to the 2nd level. Spacious primary bedroom w/walk-in closet & 5 piece luxury marble ensuite. 2nd floor laundry & additional full 5 piece washroom. Large bedrooms on the 2nd level and access to balcony through 4th bedroom. The 3rd floor features open staircase/loft space used as an office with sloped ceilings, a 5th bedroom, a play/rec room and a half bathroom. There is an unfinished attic space above the attached garage - perfect for an artisan workshop or art studio. The grounds include a stable with three horse stalls, a tac room, a full workshop, water and power. An additional barn is used for storage and horses graze in the paddocks. (id:27476)

Property Highlights

MLS® Number
X12818390
Type
Agriculture
Community Name
9402 - Kinburn
Land Size
750 x 589 FT|10 - 24.99 acres
Parking Space Total
8

Building

Storeys
3.00
Square Footage
3500 - 5000 sqft
Bathrooms Total
4
Bedrooms Above Ground
5
Bedrooms Total
5
Exterior Finish
Stone
Fireplace Present
Yes
Basement Type
Full (Unfinished)
Basement Features
Building Heating Type
Baseboard heaters, Forced air, Not known
Heating Fuel
Electric, Propane
Building Cooling Type
Central air conditioning

Utilities

Water
Drilled Well
Utility Sewer
Septic System

Room Layout

Laundry room
Second level
1.61 m x 2.84 m
Primary Bedroom
Second level
5 m x 5.35 m
Bedroom
Second level
3.47 m x 4.85 m
Bedroom
Second level
3.89 m x 4.78 m
Loft
Third level
3.84 m x 6.9 m
Bedroom
Third level
3.59 m x 4.51 m
Recreational, Games room
Third level
4.59 m x 5.35 m
Foyer
Main level
3.51 m x 3.44 m
Kitchen
Main level
5.98 m x 6.1 m
Pantry
Main level
2.07 m x 1.76 m
Family room
Main level
8.05 m x 4.08 m
Living room
Main level
4.85 m x 6.13 m
Dining room
Main level
3.66 m x 4.69 m
Bedroom
Main level
3.89 m x 4.78 m

Location

Learn more about this property
Listing provided by:
COLDWELL BANKER RHODES & COMPANY
MLS® number:
X12818390
Agent:
David Sugarman
*Indicates required field
Name is required
Email is required
Please enter a valid phone number (e.g., 416-111-1111).