266 Beechwood Avenue, Ottawa, Ontario K1L 8A6

Listed for:
$32
0 beds
1 baths
Listed 6 days ago
266 Beechwood Avenue, Ottawa, Ontario K1L 8A6

View all 16 photos

About

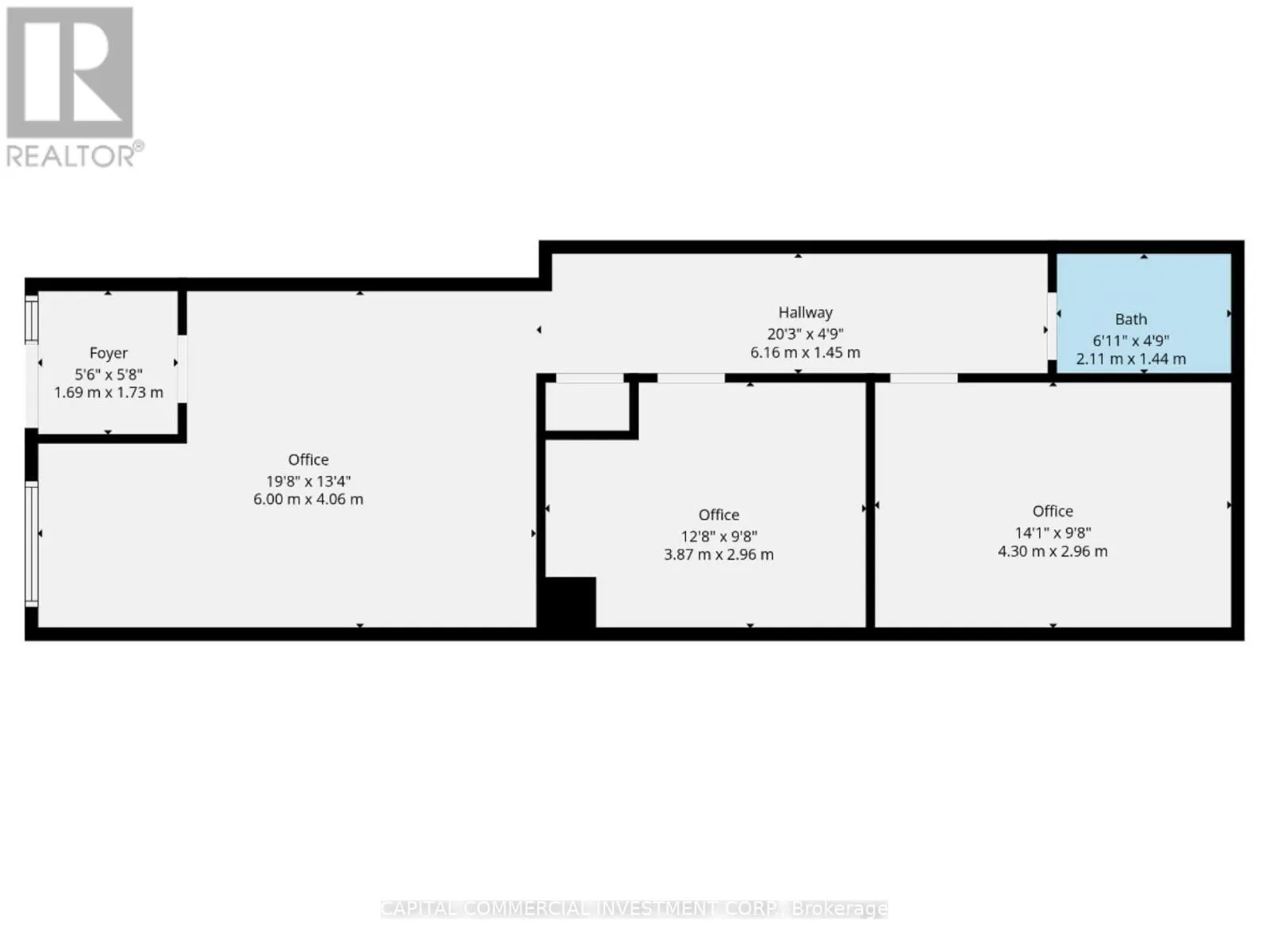
Cross Streets: Beechwood and Marier. ** Directions: North on Vanier Parkway from from Highway 417. Right on Beechwood Avenue. Property on the right. Prime retail opportunity in the heart of Ottawa's most established and affluent neighbourhood! Located along the high-traffic Beechwood Avenue corridor, this 700 sq. ft. storefront offers exceptional visibility, strong signage opportunities, and direct access to Rockcliffe Park, New Edinburgh, Manor Park, and Vanier. The property benefits from TM8 zoning, supporting a wide range of commercial uses, and is surrounded by long-standing service, medical, and boutique retail operators. With on-site parking and proximity to key local landmarks-including Ashbury College, Metro Grocery, Bridgehead, and Jacobson's-this location delivers consistent foot traffic and a stable customer base in one of the city's most desirable trade areas. 2026 additional rent budget is $22.96 per sq. ft. Gas and hydro shared with neighboring tenant and invoiced semi-annually. Tenant to coordinate their own garbage removal. Note that the entrance vestibule is shared with the neighbouring tenant. (id:27476)

Property Highlights

MLS® Number
X12852328
Type
Retail
Community Name
3402 - Vanier
Land Size
Unit=14 x 47 FT
Parking Space Total
2

Building

Square Footage
700 sqft
Bathrooms Total
1
Fireplace Present
No
Basement Type
Basement Features
Building Heating Type
Forced air
Heating Fuel
Natural gas
Building Cooling Type
Fully air conditioned

Utilities

Water
Municipal water

Location

Learn more about this property
Listing provided by:
CAPITAL COMMERCIAL INVESTMENT CORP.
MLS® number:
X12852328
Agent:
Florian Nagelschmitz
*Indicates required field
Name is required
Email is required
Please enter a valid phone number (e.g., 416-111-1111).