1196 Old Carp Road, Ottawa, Ontario K2W 0H0

Listed for:
$999,999
4 beds
3 baths
Listed 22 days ago
House for rent: 1196 Old Carp Road, Ottawa, Ontario K2W 0H0

View all 50 photos

About

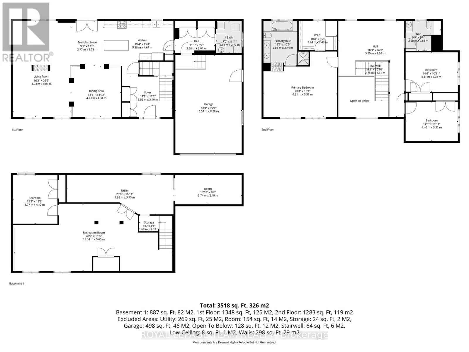
Cross Streets: MARCH RD WEST and OLD CARP RD. ** Directions: Take MARCH RD WEST to OLD CARP RD. Set on a private 100ft x 150ft lot, this striking stone-front custom home in Morgan's Grant offers over 3,500 sq ft of beautifully finished space. Rebuilt in 2013 (foundation retained), the 3+1 bedroom, 2.5 bathroom residence combines modern comfort, thoughtful design, and family-friendly functionality with the rare feel of tranquil country living, just minutes from Kanata. The welcoming front porch leads into a dramatic two-storey foyer with equally impressive windows. The bright main level features thoughtfully designed living spaces, highlighted by a double-sided gas fireplace shared between the living & family rooms. The Deslauriers crafted chef's kitchen is well equipped for both family meals & hosting, offering a gas cooktop, double wall ovens, stainless steel appliances, generous prep & storage space, a breakfast area & a formal dining space. Upstairs, the oversized primary suite offers a walk-in closet, infrared sauna & a striking double-sided fireplace shared with its ensuite that features double vanities, a separate shower & a tub overlooking the backyard. Two additional bedrooms, a full bathroom - and a versatile loft overlooking the foyer (providing the perfect reading nook, office, or flex space!) completes this upper level. The fully finished basement extends the living space with a large recreation room, electric fireplace, storage room & optional guest or teen space. Step outside to the rear deck with awning, overlooking the expansive landscaped backyard complete with fruit trees - perfect for outdoor dining, entertaining, or relaxing in the natural setting. Plus, an attached two-car garage with inside entry, a mudroom with ample storage, main-floor laundry with powder room, and a paved driveway with space for additional vehicles. Take advantage of this unique opportunity to enjoy space, nature & community living with transit, shops, schools, ponds, parks, hiking, walking, and ski trails nearby. Min 48hr irrevocable. (id:27476)

Property Highlights

MLS® Number
X12866582
Type
Single Family
Community Name
9008 - Kanata - Morgan's Grant/South March
Ownership Type
Freehold
Land Size
100 x 150 FT|under 1/2 acre
Parking Space Total
6

Building

Building Type
House
Storeys
2.00
Square Footage
2500 - 3000 sqft
Bathrooms Total
3
Bedrooms Above Ground
3
Bedrooms Total
4
Amenities
Fireplace(s) Park, Public Transit, Schools
Exterior Finish
Stone, Vinyl siding
Fireplace Present
Yes
Basement Type
Full (Finished)
Basement Features
Building Heating Type
Forced air
Heating Fuel
Natural gas
Building Cooling Type
Central air conditioning

Utilities

Water
Drilled Well
Utility Sewer
Septic System

Room Layout

Recreational, Games room
Lower level
13.34 m x 5.65 m
Bedroom
Lower level
3.77 m x 4.12 m
Utility room
Lower level
8.99 m x 3.33 m
Foyer
Main level
3.55 m x 3.4 m
Kitchen
Main level
5.88 m x 4.67 m
Dining room
Main level
4.23 m x 4.31 m
Living room
Main level
4.93 m x 8.08 m
Eating area
Main level
2.77 m x 3.78 m
Mud room
Main level
3.38 m x 2.01 m
Bathroom
Main level
2.14 m x 2.72 m
Loft
Upper Level
5.55 m x 8.09 m
Primary Bedroom
Upper Level
3.24 m x 2.48 m
Bathroom
Upper Level
3.81 m x 3.74 m
Bathroom
Upper Level
2.98 m x 2.55 m
Primary Bedroom
Upper Level
6.21 m x 5.51 m
Bedroom 2
Upper Level
4.4 m x 3.32 m
Bedroom 3
Upper Level
4.41 m x 3.34 m

Location

Learn more about this property
Listing provided by:
ROYAL LEPAGE TEAM REALTY
MLS® number:
X12866582
Agent:
Julia Forbes
*Indicates required field
Name is required
Email is required
Please enter a valid phone number (e.g., 416-111-1111).