2031 Devine Road, Ottawa, Ontario K0A 3H0

Listed for:
$959,900
3 beds
2 baths
Listed 22 days ago
House for rent: 2031 Devine Road, Ottawa, Ontario K0A 3H0

View all 42 photos

About

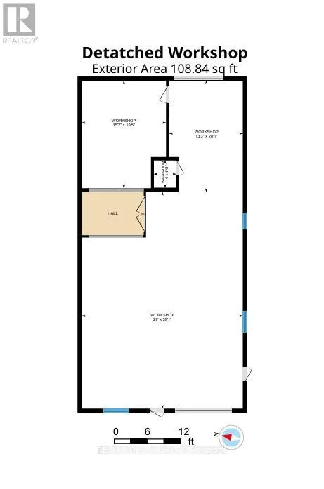
Cross Streets: Rockdale Road. ** Directions: From East or Westbound Hwy 417. Take Vars Exit. Head North on Rockdale Road. At Frank Kenny intersection stop sign, keep going. Turn Right on Devine Road. Property will be on your Left. Welcome to 2031 Devine Road in Vars!. Welcome to 2031 Devine Road in Vars, where country living meets convenience just minutes from the city. Situated on a spacious 0.66-acre lot, this well-designed raised bungalow offers the perfect blend of comfort, functionality, and great for a home-based business and hobbies. The home features 2+1 bedrooms, 2 bathrooms, and a bright open living space with a kitchen, eating area, and a bright living room designed for easy everyday living. The finished lower level provides additional living space with a large family room, bedroom, and bathroom w/built-in laundry. A gas fireplace insert upstairs and a freestanding unit downstairs add warmth and character throughout the home. There is also a heated mudroom at the back of the single attached garage for added convenience. One of the standout features of this property is the impressive 30' x 60' heated workshop, ideal for entrepreneurs, tradespeople, hobbyists, or anyone needing extra workspace or storage. And with over 5 covered and 15 open parking spaces, there is more than enough room to park the entire family and/or business fleet of vehicles plus any additional recreational vehicles, equipment, trailers, and toys. Enjoy landscaped outdoor living and tons of space for gardening while the fenced-in backyard keeps pets and little ones safe and uninvited ones out. Nothing but pure enjoyment and relaxation while comtemplating peaceful rural surroundings on your zero maintenance aluminum deck and spacious gazebo. Located in the welcoming Vars community, you'll appreciate the quiet village lifestyle while being only minutes to Highway 417 and a short drive to Ottawa and Orleans for easy commuting while still enjoying the space and tranquility of country living. A broader range and greater quantity of amenities are just 7 minutes away in Embrun. This versatile property offers exceptional flexibility, space, functionality, and location all in one which is rarely found so close to the city. 24-hr irrevocable on all offers. (id:27476)

Property Highlights

MLS® Number
X12869296
Type
Single Family
Community Name
1112 - Vars Village
Ownership Type
Freehold
Land Size
132.8 x 219 FT
Parking Space Total
20

Building

Building Type
House
Storeys
1.00
Square Footage
1100 - 1500 sqft
Bathrooms Total
2
Bedrooms Above Ground
2
Bedrooms Total
3
Amenities
Fireplace(s) Park, Place of Worship, Public Transit, Schools
Exterior Finish
Brick, Vinyl siding
Fireplace Present
Yes
Basement Type
Full (Finished)
Basement Features
Building Heating Type
Forced air
Heating Fuel
Natural gas
Building Cooling Type
Central air conditioning, Air exchanger

Utilities

Water
Municipal water
Utility Sewer
Septic System

Room Layout

Family room
Basement
7.62 m x 4.26 m
Bedroom 3
Basement
7.62 m x 4.26 m
Bathroom
Basement
1.82 m x 3.04 m
Utility room
Basement
1.82 m x 0.91 m
Kitchen
Ground level
3.35 m x 2.43 m
Dining room
Ground level
3.04 m x 3.04 m
Living room
Ground level
4.57 m x 5.79 m
Primary Bedroom
Ground level
3.65 m x 3.65 m
Bedroom 2
Ground level
3.04 m x 3.65 m
Bathroom
Ground level
3.65 m x 1.52 m

Location

Learn more about this property
Listing provided by:
RE/MAX DELTA REALTY
MLS® number:
X12869296
Agent:
Marie-jo Shapiro
*Indicates required field
Name is required
Email is required
Please enter a valid phone number (e.g., 416-111-1111).