501 Wilbrod Street, Ottawa, Ontario K1N 5R4

Listed for:
$1,295,000
3 beds
4 baths
Listed 21 days ago
Row / Townhouse for rent: 501 Wilbrod Street, Ottawa, Ontario K1N 5R4

View all 47 photos

About

Cross Streets: Charlotte St. & Wilbrod St.. ** Directions: From Rideau Street, South on Charlotte Street, Left on Wilbrod Street. Fully renovated END UNIT townhome that lives like a semi-detached, steps away from the river, set on a 30 x 99 ft lot - exceptionally wide for a Sandy Hill townhouse - in the heart of one of Ottawa's most coveted and historic neighbourhoods. Perfectly positioned within walking distance to Strathcona Park, the University of Ottawa, Rideau Centre, Rideau Canal, scenic walking and biking paths, & countless trendy cafés and restaurants, this home offers an exceptional blend of urban convenience & timeless charm - complete with a large private and fully fenced backyard oasis that is truly rare in the inner city. From the moment you step inside, you are immediately captivated by the home's architectural elegance and modern design. Dramatic soaring ceilings, striking open-riser staircases, and expansive windows fill the space with natural light, creating a bright and airy atmosphere throughout. The chef-inspired kitchen is a true showpiece, thoughtfully designed with both style and functionality in mind. Featuring sleek cabinetry, premium countertops, high-end stainless steel appliances and the rare convenience of dual dishwashers, the space is perfectly suited for both everyday living and entertaining. Featuring three generously sized bedrooms - each with its own private ensuite, including a luxurious primary bathroom that delivers a refined, spa-like experience - the home offers a level of comfort and privacy rarely found in central Ottawa. Each level is carefully laid out to combine functionality with contemporary elegance. A spectacular rooftop terrace on the third level is perfect for relaxing evenings, morning coffee, or soaking in the sun - a premium outdoor retreat above the city. Completing the home is a spacious attached heated garage with automatic door opener, offering secure parking & valuable storage space. Additional upgrades include: backyard sod, wall mounted AC unit in the master bedroom, dishwashers, washer/dryer, blackout blinds in 2 main bedrooms. (id:27476)

Property Highlights

MLS® Number
X12872488
Type
Single Family
Community Name
4003 - Sandy Hill
Ownership Type
Freehold
Land Size
30.2 x 99.1 FT
Parking Space Total
2

Building

Building Type
Row / Townhouse
Storeys
3.00
Square Footage
2500 - 3000 sqft
Bathrooms Total
4
Bedrooms Above Ground
2
Bedrooms Total
3
Amenities
Public Transit, Place of Worship, Schools
Exterior Finish
Stone, Wood
Fireplace Present
Yes
Basement Type
Full (Finished)
Basement Features
Building Heating Type
Forced air
Heating Fuel
Natural gas
Building Cooling Type
Central air conditioning

Utilities

Water
Municipal water
Utility Sewer
Sanitary sewer

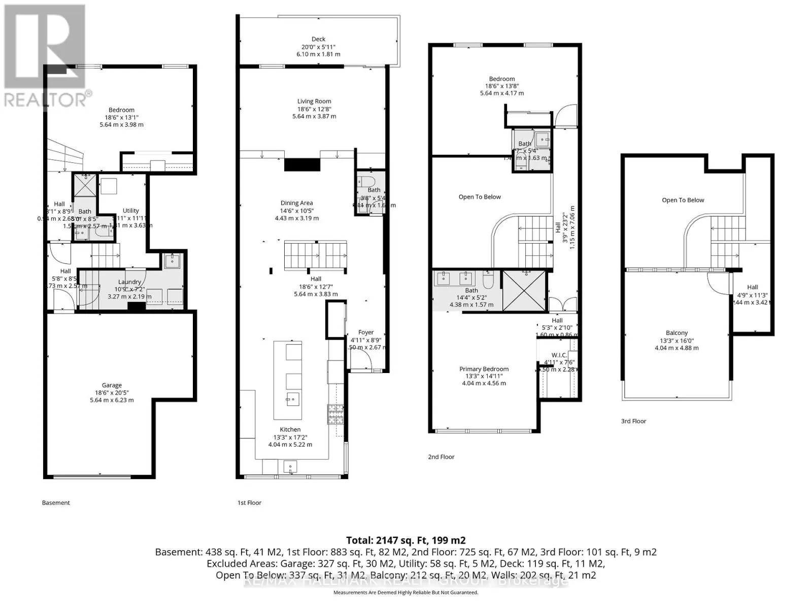
Room Layout

Primary Bedroom
Second level
4.56 m x 4.04 m
Bathroom
Second level
4.38 m x 1.57 m
Bedroom 2
Second level
5.64 m x 4.17 m
Bathroom
Second level
1.63 m x 1.47 m
Other
Third level
4.88 m x 4.04 m
Bedroom 3
Basement
5.64 m x 3.98 m
Bathroom
Basement
2.57 m x 1.51 m
Laundry room
Basement
3.27 m x 2.19 m
Utility room
Basement
3.63 m x 1.81 m
Foyer
Main level
2.67 m x 0.5 m
Living room
Main level
5.64 m x 3.87 m
Dining room
Main level
4.43 m x 3.19 m
Kitchen
Main level
4.04 m x 5.22 m
Bathroom
Main level
1.6 m x 1.11 m

Location

Learn more about this property
Listing provided by:
RE/MAX HALLMARK REALTY GROUP
MLS® number:
X12872488
Agent:
Jeffrey Gauthier
*Indicates required field
Name is required
Email is required
Please enter a valid phone number (e.g., 416-111-1111).