17 - 1838 Summerfields Crescent, Ottawa, Ontario K1C 7B7

Listed for:
$500,000
3 beds
3 baths
Listed 21 days ago
Row / Townhouse for rent: 17 - 1838 Summerfields Crescent, Ottawa, Ontario K1C 7B7

View all 30 photos

About

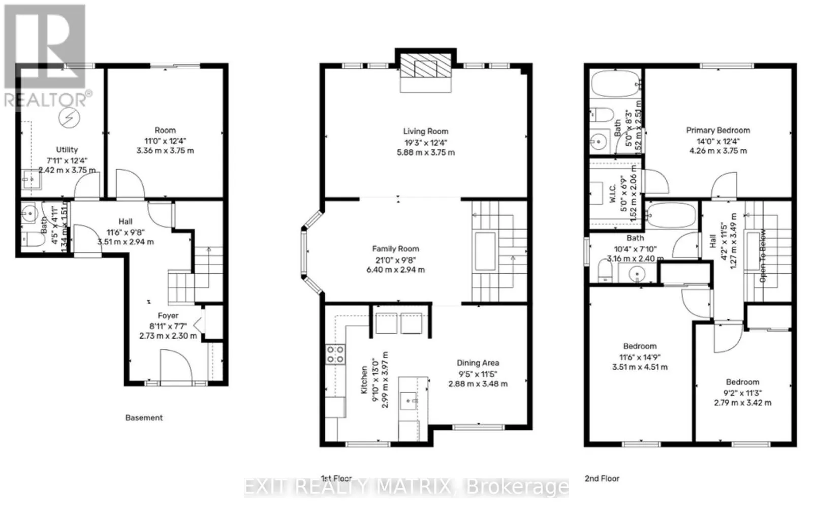
Cross Streets: Orleans Blvd and Meadowglen Dr. ** Directions: Heading east on Innes Rd, turn left onto Orleans Blvd. Turn right onto Promenade Meadowglen Dr. Turn left onto Summerfields Crescent and the destination will be on your right. Welcome to this spacious 3 storey end unit condo townhome located in the highly sought after Chapel Hill neighbourhood of Orléans. Offering over 1900 sq ft of living space, this freshly painted home features 3 bedrooms and 3 bathrooms and provides a comfortable and functional layout ideal for families or anyone looking for modern living in a convenient location. The main level offers a bright and spacious living and dining area with a cozy fireplace, creating the perfect space for relaxing or entertaining. The eat in kitchen features classic oak cabinetry, updated flooring (2023), and a double oven stove that makes meal preparation and hosting large gatherings easy and convenient. The refrigerator was replaced in late 2024 and almost all appliances in the home are newer. Upstairs you will find three well appointed bedrooms including a primary suite with a walk in closet and private 3 piece ensuite offering excellent storage and privacy. The lower level family room opens directly to the backyard and also provides convenient inside access to the attached garage making daily living easy and practical. Recent updates include furnace (2023), front entrance tiles (2023), second level flooring (2023), and stove (2022). Located in a quiet and established community known for its parks, walking trails, and green spaces, this home is also close to excellent schools, shopping, dining, recreation facilities, public transit, and offers quick access to Highway 417 for an easy commute. This is a fantastic opportunity to enjoy comfortable living in one of Orléans most desirable neighbourhoods. (id:27476)

Property Highlights

MLS® Number
X12872804
Type
Single Family
Community Name
2009 - Chapel Hill
Maintenance Fee
442.00
Ownership Type
Condominium/Strata
Parking Space Total
2

Building

Building Type
Row / Townhouse
Storeys
3.00
Square Footage
1800 - 1999 sqft
Bathrooms Total
3
Bedrooms Above Ground
3
Bedrooms Total
3
Exterior Finish
Brick Facing, Vinyl siding
Fireplace Present
Yes
Basement Type
None
Basement Features
Building Heating Type
Forced air
Heating Fuel
Natural gas
Building Cooling Type
Central air conditioning

Location

Learn more about this property
Listing provided by:
EXIT REALTY MATRIX
MLS® number:
X12872804
Agent:
Cale Botha
*Indicates required field
Name is required
Email is required
Please enter a valid phone number (e.g., 416-111-1111).